结构工程施工方案.docx

上传人:p** 文档编号:1123838 上传时间:2024-08-04 格式:DOCX 页数:16 大小:207.46KB
下载 相关 举报
结构工程施工方案.docx_第1页
第1页 / 共16页
结构工程施工方案.docx_第2页
第2页 / 共16页
结构工程施工方案.docx_第3页
第3页 / 共16页
结构工程施工方案.docx_第4页
第4页 / 共16页
结构工程施工方案.docx_第5页
第5页 / 共16页
结构工程施工方案.docx_第6页
第6页 / 共16页
结构工程施工方案.docx_第7页
第7页 / 共16页
结构工程施工方案.docx_第8页
第8页 / 共16页
结构工程施工方案.docx_第9页
第9页 / 共16页
结构工程施工方案.docx_第10页
第10页 / 共16页
亲,该文档总共16页,到这儿已超出免费预览范围,如果喜欢就下载吧!
资源描述

《结构工程施工方案.docx》由会员分享,可在线阅读,更多相关《结构工程施工方案.docx(16页珍藏版)》请在第壹文秘上搜索。

1、结构工程施工方案本工程结构类型采用钢筋混凝土框架结构01模板工程对于本工程结构施工,我们针对不同的结构部位特点,采用不同的支模方案,对高支模梁板采用钢管满堂架支撑体系,对一般梁板采用工具式钢支撑体系,梁板、柱、墙模板均采用普通股合板。按施工进度要求,为了保证连续施工,施工用模板配置不少于3套。模板工顺序:支掾体系-梁模板一顶板模板T柱模板梁、柱头模板其中各部位施工工艺流程为:墙柱:弹柱位置线一找平J3做定位墩一安装柱箍筋一安装墙柱模板一安拉杆及加固-预检梁模板:弹出梁轴线及标高线并更核搭设梁模板支架安装梁底-梁底起拱一安装梁侧模一绑扎钢筋-安装上、下锁口楞、对拉螺栓复核梁模板尺寸位置一加固后验

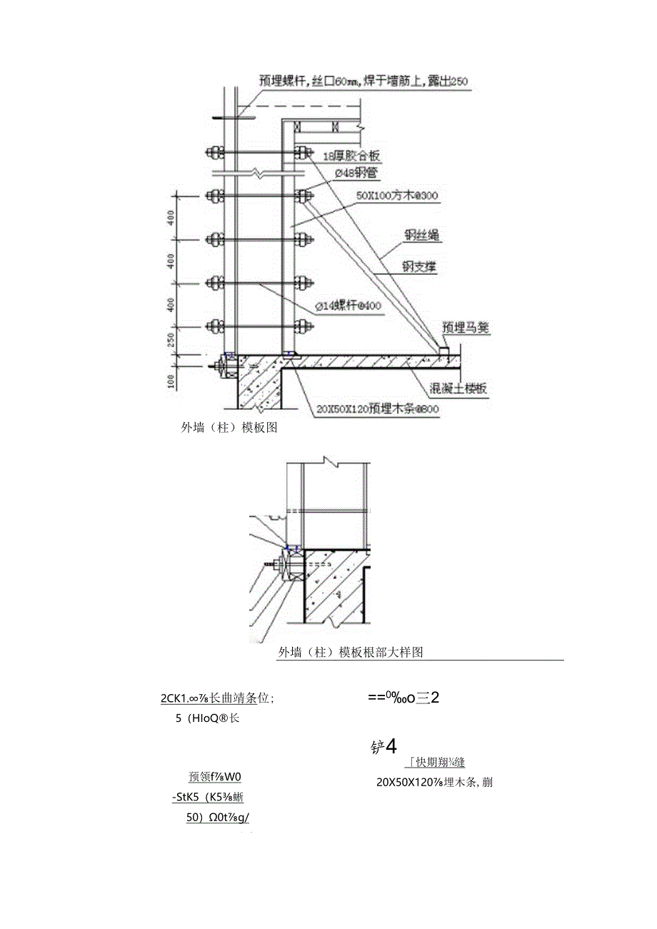
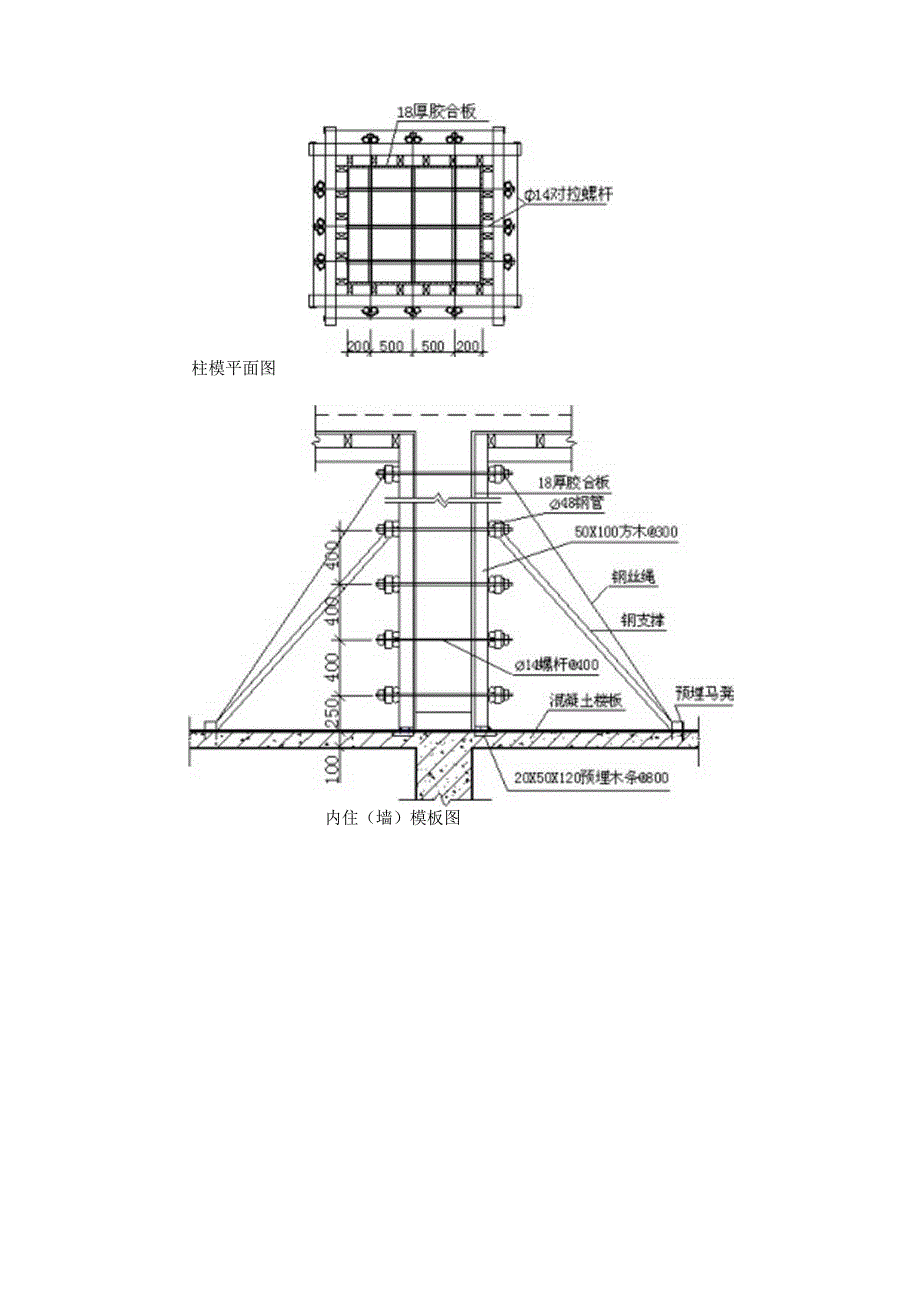
2、收钢筋混凝土楼板:搭设支架一安装板模木楞一调整楼板卜皮标高及起拱一铺设板模一检查模板上皮标高及平整度一绑扎板筋(D墙、柱模板墙、柱模板自身固定均采用竖向方木(间距300mm)和水平钢管(间距同螺杆)组成,用14螺杆穿在20硬剪料管内与水平钢管对拉以控制截面,螺杆起步间距250e,横向间距为50OmnI,竖向间距400m,楼层上预埋20nX50nmX120n的木条以固定根部的20n1OOniin通长定位板条。在根部用快硬砂浆堵健以防止浇混凝土时根部漏浆,外柱模板的空间固定采用钢支推顶撵与钢丝绳拉结相结合的方法固定。内柱模板的空间固定采用钢支探斜向对顶的方法固定。具体支模方法见卜.图。柱模平面图内

3、住(墙)模板图外墙(柱)模板图5(HIoQ长托木铲42CK1.长曲靖条位;预领fW0-StK5(K5蜥50)0tg/50X10昉木快期翔缝20X50X120埋木条,蒯0=0o三2外墙(柱)模板根部大样图(2)梁模板在柱子上弹出轴线、梁位置和水平线,钉柱头模板。梁底模板:按设计标而调整支柱的标高,然后安装梁底模板,并拉线找平。梁侧模板:根据墨线安装梁侧模板、压脚板、斜掾等。梁侧模板制作高度应根据梁高及楼板模板碰旁或压旁来确定。当梁高超过70Omm或梁宽超过350mm时,梁侧模板宜加穿螺栓加固,螺栓排数、间距和各截面梁支模方法如卜.图所示。楼面模板铺完后,应认真检杳支架是否牢固,模板梁面、板面应清

4、扫干净。00,狂称50X100方木通长。4摞杆将楞50X100方木(3)楼板模板50X1OO方木通长50X100方木通长定位方木50(梁宽g(根据模板体系的设计方案图架设支柱和龙骨。支柱与龙骨的间距,应根据楼板的混凝土重量与施工荷载的大小,在模板设计中确定。一般支柱为800120OnIm,大龙招间距为6001200三,小龙舟间距为400600间。支柱排列要考虑设置施工通道。通线调节支柱的高度,将大龙骨找平,架设小龙骨“铺模板时可从四周铺起,在中间收口。若为JK旁时,角位模板应通线钉固。(4)楼梯模板楼梯支模采用封闭式支模方法,具体方法如下:在绑扎楼梯两侧剪力墙钢筋时,留贴踏步模筋,在梯梁两端墙

5、上预留梁窝.搭设蟒向脚手管和水平连系杆。搭设立底模的纵向钢管,钢管顶标高为楼梯底标高减去模板及木杨斜向高度。放置木楮,其上再铺楼梯底模,模板采用18厚聚氨脂漆面胶合板。在侧墙上用套板画出踏步位置线。绑扎好楼梯钢筋,并将模筋与踏步分布筋焊接。吊装踏步定型面模。每隔3个踏步用对拉螺栓将楼梯底板和踏步模板拉紧固定,对拉螺栓穿在双脚手管上,压紧木折,并套上PVC管,便于拆除对拉螺栓。浇捣时混凝土从楼梯上口板面处送下,振动棒也从上口插入分层振捣密实,拆模顺序与支模顺序相反.1-1Xv5OIQO1.1.间距300踏步净宽TO5木板2-22钢筋工程(D钢筋种类本工程采用的钢筋种类主要为HPB235(I级钢)

6、:68fyk=235nm11HRB335(11级钢):1014fyk=335Nm11HRMOo(In级钢):1628fyk=400Nmm。钢筋的连接方式按图施工。焊条主要选用E43、E50和E55系列,E43系列用于焊接HPB235级热轧钢筋和Q235钢板及型钢,E50系列用于焊接HRB335级热轧钢筋,E55系列用于焊接HRBdOO级热轧钢筋.钢筋工程施工工艺钢筋切断、弯曲以及调直律在钢筋加工场地采用机械加工,除了电渣压力饵、在现场加工外,其余的纲筋接头连接均在钢筋加工场地施工。柱钢筋施工工艺:会向钢筋接头连接一水平钢筋绑扎一箍筋绑一安装保护乂垫块一预埋各专业预埋件一自检、验收。梁钢筋施工工

7、艺:布置纵向梁底钢筋一梁底钢筋接头连接一架设梁面筋支座一布置纵向梁面钢筋一穿插维筋一调整梁底、梁面纵向钢筋位置一绑扎维筋一放梁底和梁侧面保护层垫块一预埋各专业预埋件一自检、验收。板钢筋施工工艺:布置板底横向、纵向钢筋并绑扎一预埋各专业预埋件一布置纵向、横向板面筋一自检、验收。钢筋制作钢筋加工前,将钢筋配料表逐一与设计图纸校核,检查下料表有否遗漏与错误。再按下料表放出实样,试制后试用合格后方可成批制作,加工好的钢筋要挂牌堆放,防止生锈.施工中如需要钢筋代换时,必须先充分了解设计意图和代换材料性能,严格遵守现行钢筋混凝上设计规范的各种规定。钢筋连接钢筋连接方法主要有绑扎搭接、闪光对焊、钢筋电渣压力

8、焊、直螺蚊套筒连接。除等,强滚轧直螺纹套筒连接施工工艺比较特殊外,其它方法比较常用,所以不作详细介绍,卜.面详细介绍等强滚轧E1.螺纹套筒连接。直螺纹套筒连接是将两根待接钢筋直端头加工成直螺纹,旋入带有宜螺纹的套简中,从而将两端的钢筋连接起来。这种连接方法具有接头可界、操作简单、不用电源、全天帔施工、对中性好、施工速度快等优点,可连各种钢筋,但所连钢筋直径之差不宜大9mm.直螺纹套筒连接的施工工艺:a.直螺纹套筒的加工直螺纹套筒的材质:对H级钢筋采用3040号钢,对川级钢采用45号钢。直螺纹套筒的尺寸,应与钢筋端头螺纹的牙形与牙数匹配,并应满足承载力略高于钢筋母材的要求。直螺蚊套筒的加工,宜在

9、专业工厂进行,幽保产品质量。各种规格的套筒外友面,均有明显的钢筋级别及规格标记。套筒加工后,其两端性孔必须用与其相应的塑料密封盖封严。b.钢筋直螺纹的加工钢筋卜.料时,应采用无齿锯切割。其端头裁面应与钢筋轴线垂直,并不得翘曲。连接钢筋拧猿力矩值钢筋R径(m)1618202225-283236-40扭紧力矩118145177216275314343直螺纹套筒连接的检验方法a套筒的规格、型号与标记符合耍求:套筒的内螺纹圈数、螺纹距与西高符合要求:螺纹无破损、歪斜、不全、锈蚀等现象.b.对已加工的丝扣端要用牙形规及卡规逐个进行自检。要求钢筋丝扣的牙形必须与牙形规吻合,小端直径不超过卡规的允许误差,丝

10、扣完整牙数不得小于规定值。不合格的丝扣,要切掉后重新套丝。然后再由质检员按需分配3%的比例抽检,如有1根不合格,要加倍抽检。c.首先目测已做油漆标记的钢筋接头丝扣,如发现有一个完整丝扣外露,应员令工人重新拧紧或进行加固处理。然后用质检用的扭力扳手对接头质量进行抽检。抽检数量对梁、柱构件为每根梁、柱子个接头:抽检结果要求达到规定的力矩值。d钢筋接头强度的检查:在正式连接前,按每种规格钢筋接头每300个为批,做3个接头试样作拉伸试验.当接头试样达到下列要求时,即为合格接头:屈服强度实测值不小于纲筋的屈服强度标准值:抗拉强度实测值与钢筋屈服强度标准的比值不小丁1.25倍,异径钢筋接头以小直径抗拉强度

11、实测值为准.钢筋绑扎与安装钢筋绑扎前先认其熟悉图纸,检杳配料表与图纸,设计是否有出入,仔细检杳成品尺寸、形状是否与下料表相符。核对无误后方可进行绑扎。采用20#铁丝绑扎直径12以上钢筋,22#铁丝绑扎直径10以卜钢筋。墙柱:a.竖向钢筋的弯钩应朝向墙柱中心,角部钢筋的弯钩平面与模板面夹角,对矩形柱应为45%,截面小的柱,用插入振动器时,弯钩和模板所成的角度不应小于15.b.箍筋的接头应交错排列垂直放置:箍筋转角与竖向钢筋交叉点均应扎牢(箍筋平直部分与会向钢筋交叉点可每隔根互成梅花式扎牢)。绑孔箍筋时,铁线扣变相互成八字形绑扎。c墙柱筋绑扎时应吊线控制垂直度.并严格控制主筋间距.墙柱筋搭接处的筵

12、筋及品柱立筋应满扎,其余可梅花点绑扎.1.下层墙柱的竖向钢筋露出楼面部分,宜用工具或柱辨将其收进一个柱筋直径,以利上层墙柱的钢筋搭拉,并与上层梁板筋焊接,当上下层墙柱截面有变化时,其下层墙柱钢筋的露出部分,必须在绑扎梁钢筋之前,先行收分准确。梁板:a.纵向受力钢筋出现双层或多层排列时,两排钢筋之间应垫以直径25三的短钢筋。b.箍筋的接头应交错设置,并与两根架立筋绑扎,悬臂飘梁则箍筋接头在下,其余做法与柱相同。梁主筋外常处与箍筋应满孔,其余可按梅花点绑孔。c板的钢筋网绑扎应注意板上部的负钢筋(面加筋)要防止被踩下:特别是悬挑板,要泮格控制负筋位置.d板、次梁与主梁交叉处,板的钢筋在上,次梁的钢筋

13、在中所,主梁的钢筋在下,当有圈梁或垫梁时,主梁钢筋在上。e.楼板钢筋的弯起点,如加工厂(场)在加工没有起弯时,设计图纸又无特殊注明的,可按以下规定弯起钢筋,板的边跨支座按跨度的1/10位置为弯起点。板的中跨及连续多跨可按离支座中线6跨度位巴为弯起点。f.框架梁节点处钢筋穿插十分稠密时,应注意梁顶面主筋间的净间距要留有30mm,以利灌筑混凝土之需要,钢筋的绑扎应符合卜.列规定:a搭接长度的末端距掴筋弯折处,不得小于钢筋直径的10倍、接头不宜位于构件最大考矩处:b受拉区域内,I级钢筋绑扎接头的末端应做弯钩,H级钢筋可不做弯钩:C钢筋搭接处.应在中心和两端用铁丝扎牢:d受拉钢筋绑扎接头的搭接长度,应

14、符合结构设计要求:e受力钢筋的混凝十.保护层厚度,应符合结构设计要求:f板筋绑扎前须先按设计图要求间距弹线,按线绑扎,控制质量:g为r保证钢筋位置的正确,根据设计要求,板筋采用通长钢筋马髡纵横了以支掾,马髡形状如下图所示:(3)钢筋的保护层控制措施本工程对钢筋定位要求准确,因此采用标准幽料专用垫块保护U定位卡能淌足耍求,该方法操作简单成本低廉,便T加快施工进度,固定牢固,降低劳动强度,保护层厚度准确。保护层定位卡的施工:定位卡要卡入梁、柱、墙轴筋上。墙、梁水平距离为500三安装一个,垂直间距为60Omm,混凝土柱断面小于500E时安装二个,大于60011un增加个,也可视现场构造定,可适当增加

15、,以达到保护层厚度的目的。板筋保护层胶垫卡中距宜为80Omm(4)特殊部位钢筋的构造及处理方法楼面不同标高时.、负筋的处理:板负筋在标高低边从靠近该侧的主筋下穿过,并用扎丝绑牢如下图.楼面不同标届时,负筋处理3M三XS木工程混凝土全部采用商品混凝土,混凝土的垂直运输采用泵送为主,钢井架为辅。(D混凝上的生产供应方案作业条件下达任务单时,必须包括工程名称、地点、部位、数员,对混凝土的各项技术要求(强度等级、抗漆等级、级凝及特种要求)、现场施工方法、生产效率(或工期)、交接班搭接要求,以及供需双方协调内容,连同施工配合比通知单下达.设备试运转正常,混凝十.运输车辆数量满足要求.材料供应充足,特别是指定的水泥品种有足够的储备地或后续供应有保证。全部材料应经检验合格,符合

展开阅读全文
相关资源
猜你喜欢
相关搜索

当前位置:首页 > 建筑/环境 > 设计及方案

copyright@ 2008-2023 1wenmi网站版权所有

经营许可证编号:宁ICP备2022001189号-1

本站为文档C2C交易模式,即用户上传的文档直接被用户下载,本站只是中间服务平台,本站所有文档下载所得的收益归上传人(含作者)所有。第壹文秘仅提供信息存储空间,仅对用户上传内容的表现方式做保护处理,对上载内容本身不做任何修改或编辑。若文档所含内容侵犯了您的版权或隐私,请立即通知第壹文秘网,我们立即给予删除!