刚性防水屋面施工技术.docx

上传人:p** 文档编号:1258813 上传时间:2024-12-24 格式:DOCX 页数:9 大小:109.20KB
下载 相关 举报
刚性防水屋面施工技术.docx_第1页
第1页 / 共9页
刚性防水屋面施工技术.docx_第2页
第2页 / 共9页
刚性防水屋面施工技术.docx_第3页
第3页 / 共9页
刚性防水屋面施工技术.docx_第4页
第4页 / 共9页
刚性防水屋面施工技术.docx_第5页
第5页 / 共9页
刚性防水屋面施工技术.docx_第6页
第6页 / 共9页
刚性防水屋面施工技术.docx_第7页
第7页 / 共9页
刚性防水屋面施工技术.docx_第8页
第8页 / 共9页
刚性防水屋面施工技术.docx_第9页
第9页 / 共9页
亲,该文档总共9页,全部预览完了,如果喜欢就下载吧!
资源描述

《刚性防水屋面施工技术.docx》由会员分享,可在线阅读,更多相关《刚性防水屋面施工技术.docx(9页珍藏版)》请在第壹文秘上搜索。

1、16-3刚性防水屋面刚性防水屋面是指利用刚性防水材料作防水U的屋面,主要有普通细石混凝上防水屋面、补偿收缩混凝土防水局面、纤维混凝土防水昂面、预应力混凝上防水屋面等。尤以前两在应用最为广泛。与前述的卷材及涂膜防水屋面相比,刚性防水屋面所用材料易得,价格便宜,耐久性好,维修方便,但刚性防水层材料的表观密度大,抗拉强度低,极限拉应变小,易受混凝土或砂浆的干湿变形、温度变形和结构变形的影响而产生裂st因此刚性防水尾面主要适用于防水等级为W级的局面防水,也可用作I、11级屋面多道防水设防中的一道防水层:不适用于设有松散保温层的屋面、大踏度和轻型屋盖的屋面,以及受振动或冲击的建筑屋面0而且刚性防水层的节

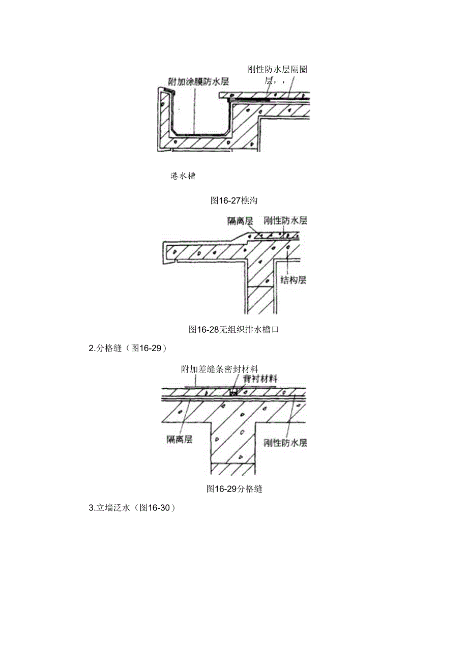
2、点部位应与柔性材料更合使用,才能保证防水的可靠性。刚性防水屋面的般构造形式如图16-26所示。16-3-1材料要求16-3-1-1水泥和骨料1 .水泥宜采用普通硅酸盐水泥或硅酸盐水泥;当采用矿渣硅酸盐水泥时应采取减少泌水性的措施;水泥的强度等级不低丁32.5MPa不得使用火山灰质硅酸盐水泥。水泥应有出厂合格证,质量标准应符合国家标准的要求。2 .砂(细骨科)应符合普通混凝上用砂质量标准及检验方法(JGJ52-92)的规定,宜采刚性防水层隔圈层,港水槽图16-27樵沟图16-28无组织排水檐口2.分格缝(图16-29)附加差缝条密封材料图16-29分格缝3.立墙泛水(图16-30)图16-32伸

3、出屋面管道6.女儿墙压顶及泛水(图16-33)H图16-33女儿墙压顶及泛水16-3-3细石混凝土防水层施工16-3-3-1施工准备工作1 .屋面结构层为装配式钢筋混凝土屋面板时,应用细石混凝土嵌缝,其强度等级应不小于C20:灌缝的细石混凝土宜掺膨胀剂。当屋面板缝宽度大于40mm或上窄下宽时,板健内应设置构造钢筋。灌缝裔度与板面平齐。板端应用密封材料嵌缝密封处理。2 .由室内伸出屋面的水管、通风管等须在防水层施工前安装,并在周围留凹槽以便嵌填密封材料。3 .刚性防水层的混凝土、砂浆配合比应按设计要求,由试验室通过试验确定。尤其是掺有各种外加剂的刚性防水层,其外加剂的掺量要严格试验,获得最佳掺量

4、范围.4 .按工程量的需要,宜一次备足水泥、砂、石等需要量,保证混凝上连续次浇捣完成。原材料进场应按规定要求对材料进行抽样电验,合格后才能使用。5 .施工前应准备好施工机具,并检查是否完好。6 .檐口挑出支模及分格缝模板应按要求制作并刷隔离剂。16-3-3-2施工环境条件I.刚性防水层严禁在雨天施工,因为雨水进入刚性防水材料中,会增加水灰比,同时使刚性防水层表面的水泥浆被雨水冲走,造成防水层疏松、麻面、起砂等现象,丧失防水能力。7 .施工环境温度宜在535T,不得在负温和烈日暴晒下施工,也不宜在雪天或大风天气施工,以避免混凝土、砂浆受冻或失水。16-3-3-3隔离层施工刚性防水层和结构层之间应

5、脱离,即在结构层与刚性防水层之间增加一层低强度等级砂浆、卷材、塑料薄膜等材料,起隔离作用,使结构U和刚性防水层变形互不受约束,以减少因结构变形使防水混凝土产生的拉应力,减少刚性防水层的开裂。1 .粘土砂浆隔离层施工预制板缝填嵌细石混凝土后板面应清扫干净,洒水湿润,但不得枳水,将按石灰奇:砂:黏土=1:2.4:3.6配合比的材料拌合均匀,砂浆以干稠为宜,铺抹的厚度约IO-2Omm,要求表面平整,压实、抹光,待砂浆基本干燥后,方可进行下道工序施工。2 .石灰砂浆隔离U施工法工方法同上。砂浆配合比为石灰有:砂=1:4.3 .水泥砂浆找平层铺卷材隔离层施工用1:3水泥砂浆将结构层找平,并用实抹光养护.

6、再在干燥的找平层上铺一层38mm干细砂滑动层,在其上铺一层卷材,搭接健用热沥青玛蹄脂盖缝。也可以在找平层上直接铺一层塑料薄膜。因为隔离房材料强度低,在隔离以继续施工时,要注意对隔离层加强保护,混凝土运输不能直接在隔离层表面进行,应采取垫板等措施,绑扎钢筋时不得扎破表面,浇捣混凝土时更不能振砥隔离层。16-3-3-4分格曾量分格缝留置是为了减少因温差、混凝土干缩、徐变、荷载和振动、地基沉陷等变形造成刚性防水层开裂,分格缝部位应按设计要求设置。如设计无明确规定时,可按卜述原则设凭分格继。1 .分格缝应设置在结构U屋面板的支承端、屋面转折处(如屋脊)、防水层与突出屋面结构的交接处,并应与板缝对齐。2

7、 .纵横分格缝间距般不大于6m,或“间分格”,分格面积不超过36nf为宜。3 .现浇板与预制板交接处,按结构要求留有伸缩缝、变形缝的部位。4,分格缝宽宜为102()mm.5 .分格健可采用木板,在混凝土浇筑前支设,混凝土浇筑完毕,收水初凝后取出分格缝模板。或采用聚苯乙烯泡沫板支设,待混凝土养护完成、嵌填密封材料前按设计要求的高度用电烙铁烙去表面的泡沫板“16-3-3-5钢筋片施工1 .钢筋配置应按设计要求,一般设置直径为46mm、间距为100200mm双向钢筋片。片采用绑扎和焊接均可,其位置以居中偏上为宜,保护层不小于10mm(2 .钢筋要调直,不得有弯曲、锈蚀、沾油污。3 .分格缝处钢筋片要

8、断开。为保证钢筋片位置留置准确,可采用先在隔离以上满铺钢丝绑扎成型后,再按分格缝位置剪断的方法施工。16-3-3-6细石混凝土防水层施工1 .浇捣混凝土前,应将隔离层表面浮渣、杂物清除干净:检查隔离层质用及平整度、排水坡度和完整性:支好分格缝模板,标出混凝土浇捣序度,厚度不宜小于40nmi2 .材料及混凝上质量要严格保证,经常检查是否按配合比准确汁量,每工作班进行不少于两次的坍落度检杳,并按规定制作检验的忒块。加入外加剂时,应准确计量,投料峡序得当,搅拌均匀3 .混凝土搅拌应采用机械搅拌,搅拌时间不少于2min.混凝上运输过程中应防止漏浆和离析。4 .采用掺加抗裂纤维的细石混凝土时,应先加入纤

9、维干拌均匀后再加水,干拌时间不少于2min,5 .混凝土的浇捣按“先远后近、先高后低”的原则进行。6 .一个分格范围内的混凝土必须一次浇捣完成,不得留施工缝。7 .混凝土宜采用小型机械振捣,如无振捣器,可先用木棍等插捣,再用小滚(3O4Okg.长60Omm左右)来回滚压,边插捣边滚压,直至密实和表面泛浆,泛浆后用铁抹子压实抹平,并要确保防水层的设计厚度和排水坡度。8 .铺设、振动、滚压混凝土时必须严格保证钢筋间距及位置的准确。9 .混凝土收水初凝后,及时取出分格缝隔板,用铁抹子第二次压实抹光,并及时修补分格缝的缺损部分,做到平直整齐:待混凝土终凝前进行第三次压实抹光,要求做到表面平光,不起砂、

10、起皮、无抹板压痕为止,抹压时,不得洒干水泥或干水泥砂浆。10 .待混凝土终凝后,必须立即进行养护,应优先采用表面喷洒养护剂养护,也可用蓄水养护法或稻草、麦草、锯末、草袋等覆盖后浇水养护,养护时间不少于I4d,养护期间保证覆盖材料的湿洵,并禁止闲人上屋面踩踏或在上继续施工。16-3-3-7小块体细石混凝土防水层施工小块体细石混;疑土防水层是在混凝土中掺入密实剂,以减少混凝土的收缩,避免产生裂混凝土中不配置钢筋,而实施除板端缝外,将大块体划分为不大于1.5mX1.5m分格的小块体的一种防水层。设计和施工要求与普通细石混凝土要求完全相同,不同点只在1530n范困内留置一条较宽的完全分格健,宽度宜为2

11、0-3Omm,1.5m的分格缝,健宽宜为71.0mm,分格缝中应填嵌高分子密封材料。1 .为防止小块体混凝十.产生裂缝,细石混凝土中应掺入密实剂,也可以掺入膨胀剂、抗裂纤维等材料。2 .小块体细石混凝土的分格维应根据建筑的开间和进深均匀划分,7“Omm的缝宽,采用定型钢框模板留设,使分格缝位理准确、顺直,缝边平整:在1530m范围内留设一条较宽的完全分格缝,2030mm缝宽,采用木模留设。3 .分格缝中应嵌填合成高分子密封材料。密封材料的嵌填施工参见“16.4局面接81密封防水”的有关内容。1-6-3-4质量要求和验收16-3-4-1质要求1 .刚性防水屋面不得有港漏和积水现象。2 .所用的混

12、凝土、砂浆原材料,各种外加剂及配套使用的卷材、涂料、密封材料等必须符合质量标准和设计要求.进场材料应按规定检验合格“3 .穿过屋.面的管道等与辟面交接处,周围要用柔性材料增强密封,不得渗漏:各节点做法应符合设计要求。4 .混凝土、砂浆的强度等级、厚度及补偿收缩混凝十的自由膨胀率应符合设计要求。5 .屋面坡度应准确排水系统应通畅。刚性防水层厚度符合要求,表面平整度不超过5mm,不得起砂、起壳和裂SI.防水层内钢筋位汽应准确。分格缝应平直,位置正确,密封材料应嵌填物实,盖缝卷材应粘贴牢固,无脱开现象”6 .在施工过程中要做好如下隐蔽工程的检杳和记录:(1)屋面板细石混凝土灌缝是否密实,上口与板面是

13、否齐平:(2)预埋件是否遗漏,位置是否正确:(3)钢筋位置是否正确,分格缝处是否断开:(4)混凝土和砂浆的配合比是否正确;外掺剂掺量是否正确:(5)混凝土防水层厚度最薄处不小于40mm:(6)分格健位置是否正确,嵌缝是否可靠:(7)混凝土和砂浆养护是否充分,方法是否正确。16-3-4-2质唳收细石混凝土刚性防水层的痂量,关键在于混凝土的本身质员、混凝土的密实性和施工时的细部处理,因此,将混凝土材料质量,配合比定为主控项目,对节点处理和施工质量,采取试水办法来检查,同时对防水首要功能,不浸漏亦作为主控项目。混凝土的表面处理、厚度、配筋,分格缝和平整度均列为一般质量检杳项目来控制整体防水层的质量。

14、细石混凝土刚性防水层质量检验的项目、要求和检险方怯见表I6-5I,细石混凝土刚性昉水层质量检验的项目要求和检验方法表16-51检验项目要求检验方法主控项目1.细石濯凝土的土材料必须符合设计要求检查出厂合格证、质奴检验和现场抽样发骁报告2.细石混凝土的配合比和抗压强度必须符合设计要求检查配合比和试块试验报告3.细石混凝土防水层不得有渗漏或枳水观取雨后或淋水检验4.细石混凝土防水层在天沟、梯沟、檐口、水落口、泛水、变形缝和伸出屋面管道的防水构造必须符合设计要求观察检查和检近隐板工程验收记录一般项目1.细石混凝上防水层表面应密实、平整、光滑、不得有裂附、起壳、起皮、起砂观察检克2,细石混凝土防水层厚

15、度和纲筋位置必须符合设计要求观察和尺量检查3.细石混凝土防水层分格缝的位置和间距必须符合设计要求观察和尺量检查4,细石混凝土防水层表面平整度允许偏差为5mmM1.2m城尺和楔形塞尺检S其他质量要求及检脸参见I&I卷材防水屋面、I&2涂膜防水屋面”及“Ie4屋面接缝密封防水的仃关内容。施工现场安全施工注意事项:1,施工人员进入施工现场前,必须要进行施工安全、消防知识的教育和考核工作,对考核不合格的职工,禁止进入施工现场参加施工。2,进入施工现场必须戴好安全帽,系好帽带,并正确使用个人劳动防护用品.3、严格执行操作规程,不得违章指挥和违章作业,对违章作业的指令有权拒绝并有责任制止他人违章作业.4、施工作业时必须正确穿戴个人防护用品,进入瓶工现场必须戴安全帽。不许私自用火,严禁酒后操作。5、穿拖鞋、高跟鞋、赤脚或赤脚不准进入施工现场.6、穿硬底鞋不得进行登高作业。7、在高空、钢筋、结构上作业时,一定要穿防滑鞋.8、现场用电,一定要有专

展开阅读全文
相关资源
猜你喜欢
相关搜索

当前位置:首页 > 建筑/环境 > 施工组织

copyright@ 2008-2023 1wenmi网站版权所有

经营许可证编号:宁ICP备2022001189号-1

本站为文档C2C交易模式,即用户上传的文档直接被用户下载,本站只是中间服务平台,本站所有文档下载所得的收益归上传人(含作者)所有。第壹文秘仅提供信息存储空间,仅对用户上传内容的表现方式做保护处理,对上载内容本身不做任何修改或编辑。若文档所含内容侵犯了您的版权或隐私,请立即通知第壹文秘网,我们立即给予删除!