型组合钢模板施工技术.docx

上传人:p** 文档编号:1260085 上传时间:2024-12-24 格式:DOCX 页数:26 大小:433.37KB
下载 相关 举报
型组合钢模板施工技术.docx_第1页
第1页 / 共26页
型组合钢模板施工技术.docx_第2页
第2页 / 共26页
型组合钢模板施工技术.docx_第3页
第3页 / 共26页
型组合钢模板施工技术.docx_第4页
第4页 / 共26页
型组合钢模板施工技术.docx_第5页
第5页 / 共26页
型组合钢模板施工技术.docx_第6页
第6页 / 共26页
型组合钢模板施工技术.docx_第7页
第7页 / 共26页
型组合钢模板施工技术.docx_第8页
第8页 / 共26页
型组合钢模板施工技术.docx_第9页
第9页 / 共26页
型组合钢模板施工技术.docx_第10页
第10页 / 共26页
亲,该文档总共26页,到这儿已超出免费预览范围,如果喜欢就下载吧!
资源描述

《型组合钢模板施工技术.docx》由会员分享,可在线阅读,更多相关《型组合钢模板施工技术.docx(26页珍藏版)》请在第壹文秘上搜索。

1、8模板工程混凝土结构的模板工程,是混凝上结构构件施工的筑要工具。现浇混凝土结构施工所用模板工程的造价,约占混凝土结构工程总造价的三分之总用工林的二分之一.因此,采用先进的模板技术,对手提高工程质量、加快施工速度、提高劳动生产率、降低工程成本和实现文明施工,都具有十分重要的意义。我国的模板技术,自从20世纪70年代提出“以钢代木”的技术政策以来,现浇混凝土结构所用模板技术已迅速向多体化、体系化方向发展,目前除部分楼板支模,还采用散支散拆外,己形成组合式、工具化、永久式三大系列工业化模板体系,采用木(竹)胶合板模板也有较大的发展。不论采用哪一种模板,模板的安装支设必须符合下列规定:(I)模板及其支

2、架应具有足够的承载能力、刚度和稳定性,能可靠地承受浇筑混凝土的重量、侧压力及施工荷载;(2)要保证工程结构和构件各部分形状尺寸和相互位置的正确:(3)构造简单,装拆方便,并便于钢筋的绑扎和安袋,符合混凝土的浇筑及养护等工艺要求:(4)模板的拼(接)缝应严密,不得漏浆:(5)清水混凝上工程及装饰混凝上工程所使用的模板,应满足设计要求的效果。除上述规定外,第一应优先推广清水混凝土模板:第二宜推广“快速脱模”,以提高模板周转率:第三应采取分段流水工艺,减少模板一次投入量。8-1组合式模板组合式模板,是现代模板技术中,具有通用性强、装拆方便、周转次数多的一种“以钢代木”的新型模板,用它进行现浇钢筋混凝

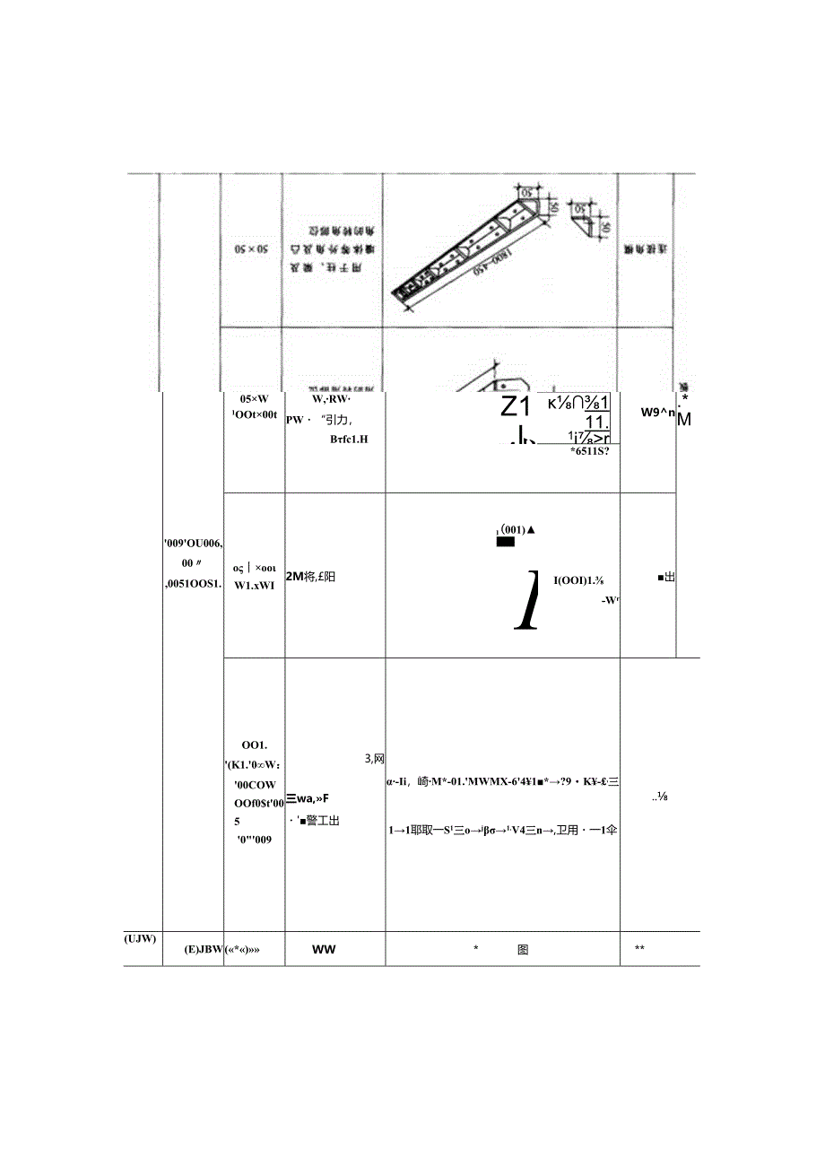
3、土结构施工,可事先按设计耍求组拼成梁、柱、墙、楼板的大型模板,整体吊装就位,也可采用散装散拆方法。8-1-155型组合钢模板55型组合钢模板又称组合式定型小钢模,是目前使用较广泛的一种通用性组合模板。8-1-1-1部件组成组合钢模板的部件,生要由钢模板、连接件和支承件三部分组成。I.钢模板钢模板采用Q235钢材制成,钢板厚度2.5mm,对于240Omm宽面钢模板的钢板厚度应采用2.75mm或3()mm钢板。主要包括平面模板、阴角模板、阳角模板、连接角模等,见表8-1。钢模板的用途及规格表8/009OU006,00,0051OOS1.05W1OOt00tW,RWPW“引力,Bfc1.HZ1.I球

4、111.1jrW9n.*M*6511S?oooW1.xWI2M将,阳1(001)I(OOI)1.-Wr出IOO1.(K1.0W:00COWOOf0$t00500093,网三wa,F警工出-Ii,崎M*-01.MWMX-641*?9K-,三11耶取一S1三oj1.V4三n,卫用一1伞.(UJW)(E)JBW(*)WW*图*名优ffi示用Xmm)氏度(M)的*(EE)倒校检角版用于住、体等用角的倒*tt0451500、1200.900、750.600、450SS度核0板夕?R20.R25速鳍vW南于集、明.况及高基划代等索邮位50x150、50x100玲截面体等0100名体Ifi示用造露度Ke(m

5、m物高(mm)希接幄用于鼻节SOmm以内的物*雳板尺寸751500.1200.900.750.600,45055可Mf1.板双曲M于构筑禽面位3002001500,900.600变角用于Mt并讨为事彩或,彩的构MWttW200160就*W用T量、tt.板.WttWtt头“位200、150、100500.200.ISOWAKft150x150.100x150阳凭*幔100X100,50x50逢接槌板50x50钢模板规格编码,见表8-2.钢模板规格编码表(mm)表8-2模板名琳4506007S0代号尺寸代号尺寸代号尺寸平S代号P600IVO4600450P6006600600F6OO7600x75

6、0550P55M550450P55O6550600P55O7550750SOOPSoo4SOO4SOPSOo6500x600P50075OO75O450P45O4450x450P45O6450600P45O7450X750400P4OO4400X450P4CO6400*600P4007400x750350P35O4350X450P35O6550600P35O?350X750300PMXM300X450P3006300600F30073OO75O250P25(M250450P25O6250*60()P25O725O75O200P2004200X450P20O6200600P2007200*750

7、150PI504150x450P1.506150x600P1.507150750100P1.(XM100450P1.oo6100x600PI007100750阴角模板(代号E)EI50415OI5OX4SoEI506I50600600E!5O7150*150750E1.o(M!OOxISOX450E1006100x150X600E1007!00x150X750阳角同收(代号Y)Y1.OOA1001OOX450Y1.OO6100100X600YiW100x10075005045O5O450YO5O65O5OX600YaSo75O5O750连接角便(代号DJoo(M5O5O450JOooeSOxS

8、OXeoOJ00075O5OX7509001200ISOO1800代“尺寸代号尺寸代号尺寸代号尺寸WOo9600900P6O12600X1200P60156(M)X1500P601S6001800P55O9550X900P5512550*1200PSS1.S550X1500P5S18550X1.WM)Woo9500x900P5O125M)x1200P5O15500X1500P5O185OO18(M)P45O9450900P45124501200P451S4501500P45U4501800P4009400900P40124002012200、1200P20!5200X1500P2018200X

9、1800P1.509ISoX900PI5I2ISOx1200P1515ISOx1500P15I8150x1800P100T100X900PI0I2100x1200HIO1.S100x1500P1.1.100X1.W)OEI5O9ISOXI50X900BI5121501501200E1.S1.S150X150X1500EI51815O15OX1800Ewo9100x150X9001012100X1501200EIOIS100150X1500K1.O1.810050X18001009100X100X900Yion100x1(X11200Y1.O1.S100100X1500Y1018100100XW

10、M)Y050950x50X900YO5I250x50X1200YOS1.S50x50X1.SOOYO51850x50IeOOKM950x50X900J001250x5012J00J550X50X1500WOIB50X50XIeoo接板名琳450600750代号尺寸代“尺寸代号尺寸代号倒模板角检模板代号J1.)J1.1.70417450J1.170617*600JI.I70717750J1.1.709JM5O445450JM5O645600J1.QO745750J1.45O9模板(代9Y1.)Y1200420450Y1200620*600Y120072O75OYUOO9Y135O435X450Y

11、1350635X600Y1.350735X750YI3509联修慑板(代号IY)IYI004100*50X4501Y100610050X600IY17100X50X750IY10091YI5O415O5O*4501YI506150X606IYI5O715O5O750IY1509C性模板(代号Z)Z1004100450ZI006100WX)Z1007100x750Z1009搭楂模板(代号D)D75O47$X450D75O6756000750775750P75O9双曲可,模板(代号T)T3OO6300600TBOO9T2006200600T2009变角可模板(代号B)B2OO6200X600一B2OO9一B1606I6O6OOB16O9长XX)120015003尺寸代号Rf代号尺寸代号尺寸17X90()儿171217*1200JU715111500J1.171817180045900JM512451200JU51S451500JUSU45180020900YI-2O1220120

展开阅读全文
相关资源
猜你喜欢
相关搜索

当前位置:首页 > 建筑/环境 > 施工组织

copyright@ 2008-2023 1wenmi网站版权所有

经营许可证编号:宁ICP备2022001189号-1

本站为文档C2C交易模式,即用户上传的文档直接被用户下载,本站只是中间服务平台,本站所有文档下载所得的收益归上传人(含作者)所有。第壹文秘仅提供信息存储空间,仅对用户上传内容的表现方式做保护处理,对上载内容本身不做任何修改或编辑。若文档所含内容侵犯了您的版权或隐私,请立即通知第壹文秘网,我们立即给予删除!