脚手架安全计算书.docx

上传人:p** 文档编号:349578 上传时间:2023-08-05 格式:DOCX 页数:39 大小:575.62KB
下载 相关 举报
脚手架安全计算书.docx_第1页
第1页 / 共39页
脚手架安全计算书.docx_第2页
第2页 / 共39页
脚手架安全计算书.docx_第3页
第3页 / 共39页
脚手架安全计算书.docx_第4页
第4页 / 共39页
脚手架安全计算书.docx_第5页
第5页 / 共39页
脚手架安全计算书.docx_第6页
第6页 / 共39页
脚手架安全计算书.docx_第7页
第7页 / 共39页
脚手架安全计算书.docx_第8页
第8页 / 共39页
脚手架安全计算书.docx_第9页
第9页 / 共39页
脚手架安全计算书.docx_第10页
第10页 / 共39页
亲,该文档总共39页,到这儿已超出免费预览范围,如果喜欢就下载吧!
资源描述

《脚手架安全计算书.docx》由会员分享,可在线阅读,更多相关《脚手架安全计算书.docx(39页珍藏版)》请在第壹文秘上搜索。

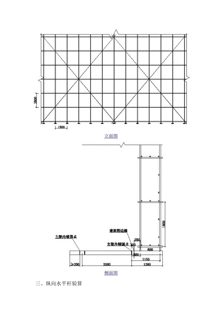
1、脚手架安全计算1、型钢悬挑脚手架(扣件式)计算书一、脚手架参数脚手架设计类型结构脚手架卸荷设置有脚手架搭设排数双排脚手架脚手架钢管类型483脚手架架体高度H(m)24立杆步距h(m)1.8立杆纵距或跨距la(m)1.5立杆横距lb(m)0.8内立杆离建筑物距离a(m)0.25双立杆计算方法不设置双立杆二、荷载设计脚手板类型冲压钢脚手板脚手板自重标准值Gkjb(kN/n?)0.1脚手板铺设方式1步1设密目式安全立网自重标准值GkmW(kN/m2)0.01挡脚板类型冲压钢挡脚板栏杆与挡脚板自重标准值Gkdb(kNm)0.11挡脚板铺设方式1步1设每米立杆承受结构自重标准值gk(kNm)0.13横向

2、斜撑布置方式6跨1设结构脚手架作业层数叫1结构脚手架荷载标准值Gkjj(kN/n?)3地区海南三亚市安全网设置全封闭基本风压oxXkN/m2)0.5风荷载体型系数s0.839风压高度变化系数z(连墙件、单立杆稳定性)1.629,1.342风荷载标准值k(kNm2)(连墙件、单立杆稳定性)0.683,0.563计算简图:三、纵向水平杆验算纵、横向水平杆布置方式纵向水平杆在上横向水平杆上纵向水平杆根数n横杆抗弯强度设计值fRN/mn?)205横杆截面惯性矩Kmn?)1078横杆弹性模量E(Nm)206000横杆截面抵抗矩W(m)纵向水平杆横向水平杆注:纵向水平杆在上时,横向水立杆横跑h平杆上纵向水

3、平杆根敷为不包含,两侧水平杆,如本图例为2纵、横向水平杆布置承载能力极限状态q=1.2(0.033+Gkjblb(n+1)+1.4Gklb(n+1)=1.2(0.033+0.10,8(l+l)+1.430.8/(1+1)=1.768kNm正常使用极限状态q,=(0.033+Gkjbl(n+1)+Gklb(n+l)=(O.O33+O.l0.8(l+l)+30.8(l+l)=1.273kNm计算简图如下:飞飞飞1、抗弯验算Mmax=OJqla2=OJ1.768i.52=0.398kNm=MmaW=0.3981064490=88.595Nmrn2f=205Nmm2满足要求!2、挠度验算Vmax=0.

4、677qla4(l00EI)=0.6771.27315004(l00206000107800)=1.965mmVmax=1.965mmv=minU/150,10=min1500/150,10=10mm满足要求!3、支座反力计算承载能力极限状态Rniax=1.Iqla=I.11.7681.5=2.917kN正常使用极限状态Rmax=1.1q,la=1.11.2731.5=2.101kN四、横向水平杆验算承载能力极限状态由上节可知Fl=Rmax=2.917kNq=1.20.033=0.04kNm正常使用极限状态由上节可知Fr=RmaX=2.10IkNq,=O.O33kNm1、抗弯验算计算简图如下:

5、2.9ITkN0.1-0.587弯矩图(kNm)=MmaxW=0.5871064490=130.646Nmm2f=205Nmm2满足要求!2、挠度验算计算简图如下:2.IOllcN0.03::N/m-1.017变形图(mm)Vmax=1.017mmv=minlb150,10=min800150,10=5.333mm满足要求!3、支座反力计算承载能力极限状态R111ax=1.474kN五、扣件抗滑承载力验算横杆与立杆连接方式单扣件扣件抗滑移折减系数0.9扣件抗滑承载力验算:纵向水平杆:Rmax=2.917/2=1.459kNRc=0.98=2kN横向水平杆:Rmax=I.474kNRc=0.98

6、=2kN满足要求!六、荷载计算脚手架架体高度H24脚手架钢管类型483每米立杆承受结构自重标准值gk(kNm)0.13立杆静荷载计算1、立杆承受的结构自重标准值NGIk单外立杆:NGik=(gk+lan2O.O33h)H=(0.13+1.5l20.033l.8)24=3.453kN单内立杆:Ndk=3.453kN2、脚手板的自重标准值Ng2h单外立杆:NG2kI=(Hh+1)lalbGkjb1/1/2=(24/1.8+1)1.50.80.1Xll2=0.86kN1/1表示脚手板1步1设单内立杆:NG2k=0.86kN3、栏杆与挡脚板自重标准值NG2k2单外立杆:NG2k2=(Hh+l)laGk

7、db1/1=(24/1.8+1)1.50.1111=2.365kN1/1表示挡脚板1步1设4、围护材料的自重标准值NG2k3单外立杆:NG2k3=GkmwlaH=0.011.524=0.36kN5、构配件自重标准值NG2k总计单外立杆:NG2k=NG2ki+NG2k2+NG2k3=0.86+2.365+0.36=3.585kN单内立杆:NG2k=NG2ki=0.86kN立杆施工活荷载计算外立杆:NQik=lalb(njjGkjj)2=1.50.8(l3)2=1.8kN内立杆:NQlk=L8kN组合风荷载作用下单立杆轴向力:单外立杆:N=1.2(Ncik+NG2k)+0.9xl.4xNQk=1.

8、2x(3.453+3.585)+0.91.41.8=10.714kN单内立杆:N=1.2(Ncik+NG2k)+0.91.4XNQIk=1.2(3.453+0.86)+0.9l.41.8=444kN七、钢丝绳卸荷计算钢丝绳不均匀系数0.85钢丝绳安全系数k8钢丝绳绳夹型式马鞍式拴紧绳夹螺帽时螺栓上所受力T(kN)15.19钢丝绳绳夹数量3吊环设置共用吊环钢筋直径d(mm)20钢丝绳型号619钢丝绳公称抗拉强度(N11三2)1700钢丝绳受力不均匀系数KX1.5卸荷系数Kf0.8上部增加荷载高度(m)6脚手架卸荷次数1第N次卸荷钢丝绳直径(mm)卸荷点位置高度h(m)卸荷点净高hj(m)钢丝绳上

9、下吊点的竖向距离1s(m)上吊点距内立杆下吊点的水平距离Hs(mm)上吊点距外立杆下吊点的水平距离Hs(mm)卸荷点水平间距HL(m)11412.611.42.435011501.5第1个吊点与上吊4的水平距离第2个吊点与上吊点的水平距离注:绳卡间距A为BdTd,d为钢丝绳直径钢丝绳绳卡作法钢丝绳连接吊环作法(共用)第1次卸荷验算I=arctan(lsHs)=arctan(2400350)=81.7032=arctan(lsHs)=arctan(2400l150)=64.398钢丝绳竖向分力,不均匀系数KX取1.5P=KfKNhj(11+i)HHlla=0.81.544411.4241.51.

10、5=4.243kNP2=KfKNhj(n+i)HHla=0.81.510.714l1.4241.5/1.5=6.107kN钢丝绳轴向拉力T=Psin=4.243sin81.703o=4.288kNT2=P2sina2=6.l07sin64.398o=6.772kN卸荷钢丝绳的最大轴向拉力Fg=maxT,T2=6.772kN绳夹数量:n=1.667Fg(2T)=1.6676.772(215.19)=1dmin满足要求!注:田为拉环钢筋抗拉强度,按混凝土结构设计规范9.6每个拉环按2个截面计算的吊环应力不应大于65Nmn第1次卸荷钢丝绳直径14mm,必须拉紧至6.772kN,吊环直径为20mm。满

11、足要求!八、立杆稳定性验算脚手架架体高度H24立杆计算长度系数1.45立杆截面抵抗矩W(mn?)4490立杆截面回转半径i(mm)15.9立杆抗压强度设计值11(Nmm2)205立杆截面面积A(mr112)424连墙件布置方式两步两跨1、立杆长细比验算立杆计算长度IO=Kh=l1.451.8=2.61m长细比=l0i=2.6110315.9=164.151210满足要求!轴心受压构件的稳定系数计算:立杆计算长度Io=Kh=l.1551.45x1.8=3.015m长细比=loi=3.015x103/15.9=189.594查规范表A得,=0.2012、立杆稳定性验算不组合风荷载作用底部卸荷段立杆

12、单立杆的轴心压力设计值NI=(1.2x(NGik+NG2k)+L4NQik)x(hi+(l-Kf)x(h顶-h)+max6,(I-Kf)Xhj顶)H=(1.2x(3.453+3.585)+1.41.8)(12.6+(l-0.8)(l2.6-12.6)+max6,(l-0.8)11.4)24=8.498KN顶部卸荷段立杆单立杆的轴心压力设计值N2=(L2x(NGik+NG2k)+L4xNQik)x(H-h顶)H=(1.2(3.453+3.585)1.41.8)(24-12.6)/24=5.209kN单立杆轴心压力最大值N=max(Ni、N2)=8.498KN=N(A)=8498.34(0.201424)=99.718Nmm2f=205Nmm2满足要求!组合风荷载作用底部卸荷段立杆单立杆的轴心压力设计值N尸(L2x(NGik+NG2k)+O.9xl.4NQik)x(hi+(lKf)x(h顶h)+max6,(1-Kf)hjjij)H=(1.2(3.453+3.585)+0.91.41.8)(12.6+(1-O.8)(l2.6-12.6)+max6,(1-O.8)11,4)24=8.303KN顶部卸荷段立杆单立杆的轴心压力设计值N2=(L2x(

展开阅读全文
相关资源
猜你喜欢
相关搜索

当前位置:首页 > 建筑/环境 > 设计及方案

copyright@ 2008-2023 1wenmi网站版权所有

经营许可证编号:宁ICP备2022001189号-1

本站为文档C2C交易模式,即用户上传的文档直接被用户下载,本站只是中间服务平台,本站所有文档下载所得的收益归上传人(含作者)所有。第壹文秘仅提供信息存储空间,仅对用户上传内容的表现方式做保护处理,对上载内容本身不做任何修改或编辑。若文档所含内容侵犯了您的版权或隐私,请立即通知第壹文秘网,我们立即给予删除!