电气桥架安装施工工艺(示范文本).docx

上传人:p** 文档编号:443153 上传时间:2023-08-28 格式:DOCX 页数:4 大小:105.91KB
下载 相关 举报
电气桥架安装施工工艺(示范文本).docx_第1页
第1页 / 共4页
电气桥架安装施工工艺(示范文本).docx_第2页
第2页 / 共4页
电气桥架安装施工工艺(示范文本).docx_第3页
第3页 / 共4页
电气桥架安装施工工艺(示范文本).docx_第4页
第4页 / 共4页
亲,该文档总共4页,全部预览完了,如果喜欢就下载吧!
资源描述

《电气桥架安装施工工艺(示范文本).docx》由会员分享,可在线阅读,更多相关《电气桥架安装施工工艺(示范文本).docx(4页珍藏版)》请在第壹文秘上搜索。

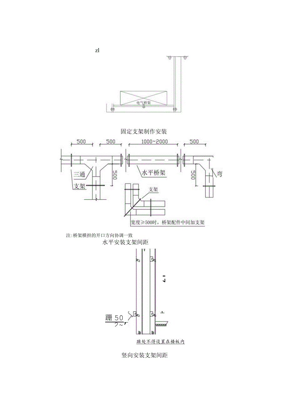
电气桥架安装施工工艺(示范文本)1)工艺流程图-1电气桥架安装工艺流程图2)电气桥架选用标准根据图纸要求,电气桥架根据使用功能及部位的不同选用不同材质,室内选用热浸镀锌桥架,室外及室内潮湿部位选用不锈钢桥架,根据使用功能的不同又分为槽式桥架和梯式桥架等(由于施工工艺类似以下统称为桥架),有防火要求的选用表面刷防火涂料的防火桥架。表T热浸镀锌线槽材料厚度表托盘、桥架宽度B(Inm)最小厚度(111111)备注B3001.5300B2.03)桥架及附件节点施工工艺zl固定支架制作安装注:桥架横担的开口方向协调一致水平安装支架间距跚502IZ0091躁处不得设置在楼板内竖向安装支架间距接缝Vlmnl防松螺帽每端不少于2个镀锌桥架连接桥架跨越伸缩缝或直线距离23Om填充厚度不小于楼板厚度竖向桥架防火封堵

展开阅读全文
相关资源
猜你喜欢
相关搜索

当前位置:首页 > 建筑/环境 > 设计及方案

copyright@ 2008-2023 1wenmi网站版权所有

经营许可证编号:宁ICP备2022001189号-1

本站为文档C2C交易模式,即用户上传的文档直接被用户下载,本站只是中间服务平台,本站所有文档下载所得的收益归上传人(含作者)所有。第壹文秘仅提供信息存储空间,仅对用户上传内容的表现方式做保护处理,对上载内容本身不做任何修改或编辑。若文档所含内容侵犯了您的版权或隐私,请立即通知第壹文秘网,我们立即给予删除!