2019年四川西南科技大学城市规划设计考研真题.docx

上传人:p** 文档编号:733517 上传时间:2024-02-04 格式:DOCX 页数:3 大小:30.06KB
下载 相关 举报
2019年四川西南科技大学城市规划设计考研真题.docx_第1页
第1页 / 共3页
2019年四川西南科技大学城市规划设计考研真题.docx_第2页
第2页 / 共3页
2019年四川西南科技大学城市规划设计考研真题.docx_第3页
第3页 / 共3页
亲,该文档总共3页,全部预览完了,如果喜欢就下载吧!
资源描述

《2019年四川西南科技大学城市规划设计考研真题.docx》由会员分享,可在线阅读,更多相关《2019年四川西南科技大学城市规划设计考研真题.docx(3页珍藏版)》请在第壹文秘上搜索。

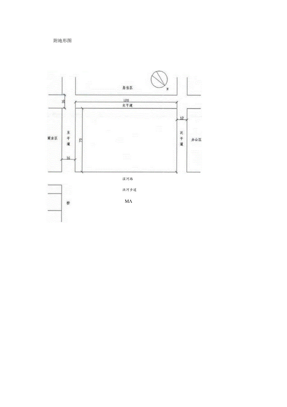
2019年四川西南科技大学城市规划设计考研真题一、基本情况南方某中型城市有一规划块地,尺寸(单位米)及环境如附图所示:地块一个方向为行政办公区,一个临街方向为居住区,另外一个方向为商业区。东北向有河流及周边关系如图所示。拟在此建一个城市休闲广场,要求与周边地块功能协调,环境优美,亲切宜人。为市民提供休闲、娱乐、健康活动的场所。二、设计成果要求(一)充分考虑周边用地性质与广场之间的交通联系问题;(二)结合水体的功能构建其室外空间环境;(三)适当做出广场的空间层次,考虑部分下沉广场;(四)广场空间布局分析图:(五)广场总平面图,比例自行合理安排;(六)局部景观剖面图1-2个(尤其下沉空间部分),比例自行合理安排;(七)总体效果图(鸟瞰):(八)2-3个小品透视;(九)设计说明(不少于300字)及经济技术指标。附地形图滨河路浜河步道M

展开阅读全文
相关资源
猜你喜欢
相关搜索

当前位置:首页 > 研究生考试 > 专业课

copyright@ 2008-2023 1wenmi网站版权所有

经营许可证编号:宁ICP备2022001189号-1

本站为文档C2C交易模式,即用户上传的文档直接被用户下载,本站只是中间服务平台,本站所有文档下载所得的收益归上传人(含作者)所有。第壹文秘仅提供信息存储空间,仅对用户上传内容的表现方式做保护处理,对上载内容本身不做任何修改或编辑。若文档所含内容侵犯了您的版权或隐私,请立即通知第壹文秘网,我们立即给予删除!