主体倒料平台.docx

上传人:p** 文档编号:746159 上传时间:2024-02-26 格式:DOCX 页数:60 大小:2.06MB
下载 相关 举报
主体倒料平台.docx_第1页
第1页 / 共60页
主体倒料平台.docx_第2页
第2页 / 共60页
主体倒料平台.docx_第3页
第3页 / 共60页
主体倒料平台.docx_第4页
第4页 / 共60页
主体倒料平台.docx_第5页
第5页 / 共60页
主体倒料平台.docx_第6页
第6页 / 共60页
主体倒料平台.docx_第7页
第7页 / 共60页
主体倒料平台.docx_第8页
第8页 / 共60页
主体倒料平台.docx_第9页
第9页 / 共60页
主体倒料平台.docx_第10页
第10页 / 共60页
亲,该文档总共60页,到这儿已超出免费预览范围,如果喜欢就下载吧!
资源描述

《主体倒料平台.docx》由会员分享,可在线阅读,更多相关《主体倒料平台.docx(60页珍藏版)》请在第壹文秘上搜索。

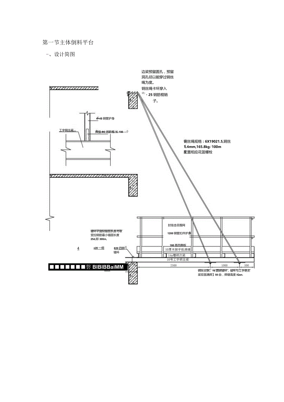
1、第一节主体倒料平台-、设计简图边梁预留圆孔,预留洞孔径以能穿过钢丝绳为度。钢丝绳卡环穿入25钢筋棍销子。44S钢管护身焊接2闹筋棍.长100封挂击目围网1200钢管扣件护身620四钢锚环2000钢丝炎穿。16圆钢锚环,锚环与工字钢主梁双面满焊】50由,焊缝高度IQan.磐BIBIBBaiMM锚环平直段锚固长度可取受拉钢筋最小锚固长度25d,即300m,20一纲工字钢主梁4钢丝绳规格:6X19021.5,钢丝1.4mm,165.8kg100m配置相应花篮螺栓180高挡弊板iO8三gOO三8Ma槽钢次梁与主梁点焊固定W)Ols=l2400二、卸料平台计算书一、参数信息1 .荷载参数脚手板类别:木脚

2、手板,脚手板自重(kNm2):0.35;栏杆、挡板类别:木脚手板挡板,栏杆、挡板脚手板自重(kNm):0.14;施工人员等活荷载(kNm2):2.00,最大堆放材料荷载(kN):10.002 .悬挑参数内侧钢绳与墙的距离(In):2.50,外侧钢绳与内侧钢绳之间的距离(m):1.00;上部拉绳点与悬挑梁墙支点的距离(m):7.80;钢丝绳安全系数K:10.00,悬挑梁与墙的节点按较支计算;只对外侧钢绳进行计算;内侧钢绳只是起到保险作用,不进行计算。3 .水平支撑梁主梁材料类型及型号:16号工字钢;次梁材料类型及型号:14a号槽钢槽口水平;次梁水平间距Id(In):1.00,建筑物与次梁的最大允

3、许距离Ie(m):1.00o4 .卸料平台参数水平钢梁(主梁)的悬挑长度(ITI):4.00,水平钢梁(主梁)的锚固长度(m):2.00,次梁悬臂MC(m):0.00;平台计算宽度(m):2.40o二、次梁的验算次梁选择14a号槽钢槽口水平,间距1m,其截面特性为:面积A=18.51cm2;惯性距Ix=563.7cm4;转动惯量W=80.5cm3;回转半径i=5.52cm;截面尺寸:b=58mm,h=140mm,t=9.5mm。1 .荷载计算(1)脚手板的自重标准值:本例采用木脚手板,标准值为0.35kNm2;Qi=O.351.00=0.35kNm;(2)型钢自重标准值:本例采用14a号槽钢槽

4、口水平,标准值为0.14kN/mQ2=O.14kN/m(3)活荷载计算1施工荷载标准值:取2.00kNm2Q3=2.00kNm22最大堆放材料荷载P:10.OOkN荷载组合Q=1.2(O.35+0.14)+1.42.OOX1.00=3.39kNmP=1.410.00=14.OOkN2 .内力验算内力按照集中荷载P与均布荷载q作用下的简支梁计算,计算简图如下:P1m;1ImI次梁计算简图最大弯矩M的计算公式(规范JGJ80-91,P31)为:Mmax=ql28(1-m2l2)2+pl/4经计算得出:MmaX=(3.392.4028)(1-(0.0022.402)2+14.002.40/4=10.

5、84kNmo最大支座力计算公式:R=P+q(l+2m)/2经计算得出:R=(14.00+3.39X(2.40+2X0.00)/2=11.07kN3 .抗弯强度验算次梁应力:=MxWxf其中Yx-截面塑性发展系数,取L05;f钢材的抗压强度设计值,f=205.00N/mm2;次梁槽钢的最大应力计算值o=1.08104/(1.O58O.5O)=128.26N/mm2;次梁槽钢的最大应力计算值o=128.263N/mm?小于次梁槽钢的抗压强度设计值f=205Nmm2,满足要求!4 .整体稳定性验算=MbWxf其中,b均匀弯曲的受弯构件整体稳定系数,按照下式计算:(pb=(570tblh)(235fy

6、)经过计算得到b=5709.5058.00235/(2400.00140.00235.0)=0.93;由于b大于0.6,按照下面公式调整:=1.07-0.282b1.0得到b=0.768;次梁槽钢的稳定性验算=1.08lO9(0.76880.500)=175.29N/mm2;次梁槽钢的稳定性验算=175.289Nm?小于次梁槽钢的抗压强度设计值f=205Nmm2,满足要求!三、主梁的验算根据现场实际情况和一般做法,卸料平台的内钢绳作为安全储备不参与内力的计算。主梁选择16号工字钢,间距1m,其截面特性为:面积A=26.leu?;惯性距Ix=I130cm、截面抵抗矩Wx=BlcnP;回转半径i=

7、6.58cm;截面尺寸,b=88mm,h=160mm,t=9.9mm;1.荷载验算(1)栏杆与挡脚手板自重标准值:本例采用木脚手板挡板,标准值为0.14kNm;Qi=0.1妹N/m;(2)槽钢自重荷载Q2=0.20kNm静荷载设计值q=1.2(Qi+Q2)=1.2(0.14+0.20)=0.41kNm;次梁传递的集中荷载取次梁支座力R;2.内力验算悬挑卸料平台示意图2.22kN4.15kN11.15kN2.22kN0.41 kN/mUUuUWi山山山山山山I5002000悬挑卸料平台水平钢梁计算简图245.1K36R5 q51A-81悬挑水平钢梁支撑梁弯矩图(kN-m)2.22-2.425UW

8、L%6U26.8.654-9.064悬挑水平钢梁支撑梁剪力图(kN)-0.035悬挑水平钢梁支撑梁变形图(mm)从左至右各支座反力:Rl=12.316kN;R2=12.459kN;R3=-2.575kNo最大支座反力为RmaX=I2.459kN;最大弯矩MmaX=9.091kN-m;最大挠度V=O.035mmo3 .抗弯强度验算=M/(xWx)+N/Af其中yx截面塑性发展系数,取L05;f钢材抗压强度设计值,f=205.00N/mm2;主梁槽钢的最大应力计算值=9.091106l.05/141000.0+5.591032610.000=63.549N/mm2;主梁槽钢的最大应力计算值63.5

9、49N/mm?小于主梁槽钢的抗压强度设计值f=205.00Nmm2,满足要求!4 .整体稳定性验算=M/(bW)f其中b均匀弯曲的受弯构件整体稳定系数,查表钢结构设计规范(GB50017-2003)附录B得到:b=1.145由于佻大于0.6,应按照下面公式调整:b=1.07-0.282b1.0可得b=0752;主梁槽钢的稳定性验算o=9.091x106/(0.752141000.00)=85.74N/mm2;主梁槽钢的稳定性验算o=85.74Nmn小于f=205.00,满足要求!四、钢丝拉绳的内力验算水平钢梁的垂直支坐反力RCi和拉钢绳的轴力RUi按照下面计算,RCi=RuiSini其中RCL

10、水平钢梁的垂直支坐反力(kN);Rui拉钢绳的轴力(kN);0i拉钢绳的轴力与水平钢梁的垂直支坐反力的夹角;sini=Sin(ArcTan(7.8/(1+2.5)=0.912;根据以上公式计算得到外钢绳的拉力为:RUi=Rci/sini;Rui=12.316/0.912=13.50kN;五、钢丝拉绳的强度验算选择6X19钢丝绳,钢丝绳公称抗拉强度1550MPa,直径18.5mm。Fg=aFgK其中Fg一钢丝绳的容许拉力(kN);Fg钢丝绳的钢丝破断拉力总和(kN),查表得Fg=199.5KN;-钢丝绳之间的荷载不均匀系数,对6X19、6X37、6X61钢丝绳分别取O.85、0.82和0.8。=

11、0.85;K-钢丝绳使用安全系数。K=IO0得到:Fg=16.958KNRu=13.499KNo经计算,选此型号钢丝绳能够满足要求。六、钢丝拉绳拉环的强度验算取钢丝拉绳(斜拉杆)的轴力最大值RU进行计算作为拉环的拉力N为:N=Ru=13498.779N,拉环强度计算公式为:=N/Af其中,f为拉环钢筋抗拉强度,按照混凝土结构设计规范10.9.8所述在物件的自重标准值作用下,每个拉环按2个截面计算的。拉环的应力不应大于50Nmm2,故拉环钢筋的抗拉强度设计值f=50.0Nmm2;所需要的拉环最小直径D=13498.8X4/(3.14250.002)z2=13.Immo实际拉环选用直径D=14mm

12、的HPB235的钢筋制作即可。三、操作平台安全要求1、悬挑式槽钢卸料平台的搁支点与上部拉接点,必须位于建筑物上,不得设置在脚手架等施工设备上。2、卸料平台安装时,钢丝绳应采用专用的挂钩挂牢,建筑物锐角口围系钢丝绳处应加补软垫物,平台外口应略高于内口。3、卸料平台左右两侧必须装置固定的防护栏。护栏上严禁搭设物品。平台上的脚手板应铺严绑牢。4、平台吊装,需待横梁支撑点电焊固定,接好钢丝绳,调整完毕,经过检查验收,方可松卸起重吊钩,上下操作。5、卸料平台使用时,应有专人负责检查,发现钢丝绳有锈蚀损坏应及时调换,焊缝脱焊应及时修复。6、操作平台上应显著标明容许荷载,人员和物料总重量严禁超过设计容许荷载

13、,配专人监督。7、建筑物锐角利围系钢丝绳处应加衬软垫物,钢平台外口应略高于内口o8、平台上应显著的标明容许荷载值。操作平台上人员和物料的总重量,严禁超过设计的容许荷载。应配备专人加以监督。第二节现场文明施工措施一、项目现场管理制度(一)一般规定1 .项目经理部应认真搞好施工现场管理,做到文明施工、安全有序、整洁卫生、不扰民、不损害公众利益。2 .现场门头应设置承包人的标志。项目经理部应负责施工现场场容文明形象管理的总体策划和部署;按照分区划块原则,搞好施工用地区域的场容文明形象管理规划。3 .项目经理部应在现场入口的醒目位置,公示下列内容:3.1. 工程概况牌,包括:工程规模、性质、用途,发包

14、人、设计人、承包人和监理单位的名称,施工起止年月等。3.2. 安全纪律牌。3.3. 防火须知牌。3.4. 安全无重大事故计时牌。3.5. 安全生产、文明施工牌。3.6. 施工总平面图。3.7. 项目经理部组织架构及主要管理人员名单图。4 .项目经理应把施工现场管理列入经常性的巡视检查内容,并与日常管理有机结合,认真听取邻近单位、社会公众的意见和反映,及时抓好整改。(二)成立文明施工管理组织1、文明施工领导小组1 .施工现场成立文明施工管理组织,成员包括:项目经理、施工工长、安全员、器材员。2 .分包单位服从总包单位的文明施工管理组织的统一管理,并接受监督检查。3.由文明施工管理组织负责制定和落实现场文明施工制度、考核及奖惩。2、文明施工

展开阅读全文
相关资源
猜你喜欢
相关搜索

当前位置:首页 > IT计算机 > Web服务

copyright@ 2008-2023 1wenmi网站版权所有

经营许可证编号:宁ICP备2022001189号-1

本站为文档C2C交易模式,即用户上传的文档直接被用户下载,本站只是中间服务平台,本站所有文档下载所得的收益归上传人(含作者)所有。第壹文秘仅提供信息存储空间,仅对用户上传内容的表现方式做保护处理,对上载内容本身不做任何修改或编辑。若文档所含内容侵犯了您的版权或隐私,请立即通知第壹文秘网,我们立即给予删除!