141-安全讲评桌施工技术交底.docx

上传人:p** 文档编号:747487 上传时间:2024-02-26 格式:DOCX 页数:2 大小:26.57KB
下载 相关 举报
141-安全讲评桌施工技术交底.docx_第1页
第1页 / 共2页
141-安全讲评桌施工技术交底.docx_第2页
第2页 / 共2页
亲,该文档总共2页,全部预览完了,如果喜欢就下载吧!
资源描述

《141-安全讲评桌施工技术交底.docx》由会员分享,可在线阅读,更多相关《141-安全讲评桌施工技术交底.docx(2页珍藏版)》请在第壹文秘上搜索。

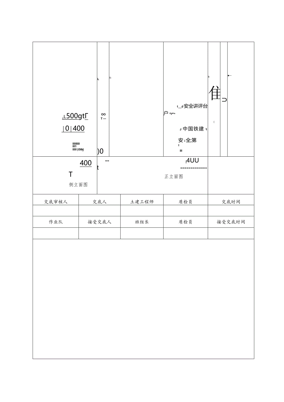
交底内容:交底内容:制作要求:1)、安全讲台讲桌采用15厚木模板制作,选材时需保证用板的平整度及外观质量,避免使用掉脚起皮的模板;2)、模板需严格按照图示尺寸要求加工,加工出的模板边应保证平直,组合拼接时应保证拼缝严实,制作时应在底部台座内部阴角处钉方木做内支撑;3)、制作好的讲评台讲桌外表面均匀涂刷白色油漆;4)、底部台内填100厚黄砂;700平面图,l500gt0400IIIIIIIIIIII1IIIIII54LOOT)05-1_0安全讲评台户Oi4oJ中国铁建iI安i全;第IIIIb隹(400T侧立面图-l4UUt正立面图交底审核人交底人土建工程师质检员交底时间作业队接受交底人班组长质检员接受交底时间

展开阅读全文
相关资源
猜你喜欢
相关搜索

当前位置:首页 > 办公文档 > 工作总结

copyright@ 2008-2023 1wenmi网站版权所有

经营许可证编号:宁ICP备2022001189号-1

本站为文档C2C交易模式,即用户上传的文档直接被用户下载,本站只是中间服务平台,本站所有文档下载所得的收益归上传人(含作者)所有。第壹文秘仅提供信息存储空间,仅对用户上传内容的表现方式做保护处理,对上载内容本身不做任何修改或编辑。若文档所含内容侵犯了您的版权或隐私,请立即通知第壹文秘网,我们立即给予删除!