护头棚施工方案.docx

上传人:p** 文档编号:782051 上传时间:2024-02-26 格式:DOCX 页数:4 大小:92.49KB
下载 相关 举报
护头棚施工方案.docx_第1页
第1页 / 共4页
护头棚施工方案.docx_第2页
第2页 / 共4页
护头棚施工方案.docx_第3页
第3页 / 共4页
护头棚施工方案.docx_第4页
第4页 / 共4页
亲,该文档总共4页,全部预览完了,如果喜欢就下载吧!
资源描述

《护头棚施工方案.docx》由会员分享,可在线阅读,更多相关《护头棚施工方案.docx(4页珍藏版)》请在第壹文秘上搜索。

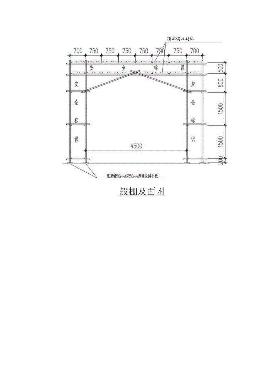
1、护头棚施工方案一、施工准备:1、材料准备:3.5X48mm钢管、卡子、50mm厚脚手板、L5X6m绿色密目安全网、3X6m安全平网等。2、现场准备:场地清理整平完毕。二、搭设施工工艺:1、搭设基本要求:1)护头棚根据轴线位置在地面上铺50mm厚、250mm宽的脚手板作为立杆的垫板。在出入口上方及两侧设置安全宣传标牌。2)两侧纵向立杆间距1500mm,横向立杆间距700mrn,最外侧大横杆间距700mm,内侧大横杆间距750mm,步距1500mm,扫地杆距离地面20OmlTb横向扫地杆采用直角扣件固定在立杆上,纵向扫地杆设于横向扫地杆之上,在立杆内侧与立杆固定。所有杆件探头长度为伸出扣件边缘不小

2、于100mmo具体详见附图。3)连墙件设在轴圆柱上,一步一抱。4)侧面必须满挂密目安全网,顶部满铺双层50mm厚脚手板,在脚手板上面再挂一道安全平网。脚手板两端采用铁丝绑扎牢固。具体详见附图顶部湍双副秫般棚及面困护头棚平面图2、搭设说明:1)扣件螺栓拧紧扭力矩应在40Nm60Nm之间。2)木脚手板厚5Omn,宽度25Omnb脚手板两端应采用直径为8mm镀锌钢丝各设两道箍。3)钢管搭接长度21m,端部扣件盖板的边缘至杆端距离不应小于lOOmm;4)纵向钢管相邻对接接头水平距离不应小于500mm,且不应设在纵中,搭接长度21m,并应等距设置3个旋转扣件固定,端部扣件盖板边缘至杆端的距离2100mm

3、。三、安全防护:1、确保脚手架的搭设质量,如:架子底基要平整夯实并加设垫木,严格按规定的构造尺寸搭设,控制立杆的垂直偏差和横杆的水平偏差,脚手板要铺满铺平,不得有探头板。2、栏杆的外侧面应设挡板,满挂安全网;四、安全注意事项:1、扣件必须100%检查,是否有裂纹、砂眼等质量缺陷,有缺陷的一律弃用。2、脚手板要铺满、铺平并固定,不得有探头板。3、搭设完毕后应进行检查验收,检查合格后才能使用。4、项目安全员要积极监督、检查脚手架搭设过程中安全责任制的贯彻和执行情况;5、施工前项目技术员必须对所有架子工人进行安全技术交底;安全员进行安全教育,并对安全知识进行考核,不合格者严禁上岗。搭设脚手架必须由经过安全技术教育的架子工承担,做到持证上岗。同时做好教育记录和安全施工技术交底;6、施工人员必须戴好安全帽,高空作业必须佩带安全带,工具及零配件要放在工具袋内,穿防滑鞋工作,袖口、裤口要扎紧。工作期间不得饮酒、吸烟,要严格遵守工地的各项规章制度;7、六级(含六级)以上大风、高温、大雨、大雪、大雾等恶劣天气,应停止作业。雨雪后上架作业要采取防滑措施,并扫除积雪;8、架子搭设完毕需经验收合格后方可使用。

展开阅读全文
相关资源
猜你喜欢
相关搜索

当前位置:首页 > 建筑/环境 > 设计及方案

copyright@ 2008-2023 1wenmi网站版权所有

经营许可证编号:宁ICP备2022001189号-1

本站为文档C2C交易模式,即用户上传的文档直接被用户下载,本站只是中间服务平台,本站所有文档下载所得的收益归上传人(含作者)所有。第壹文秘仅提供信息存储空间,仅对用户上传内容的表现方式做保护处理,对上载内容本身不做任何修改或编辑。若文档所含内容侵犯了您的版权或隐私,请立即通知第壹文秘网,我们立即给予删除!