现场卫生间管根包墩防渗漏技术.docx

上传人:p** 文档编号:796108 上传时间:2024-03-01 格式:DOCX 页数:4 大小:216.57KB
下载 相关 举报
现场卫生间管根包墩防渗漏技术.docx_第1页
第1页 / 共4页
现场卫生间管根包墩防渗漏技术.docx_第2页
第2页 / 共4页
现场卫生间管根包墩防渗漏技术.docx_第3页
第3页 / 共4页
现场卫生间管根包墩防渗漏技术.docx_第4页
第4页 / 共4页
亲,该文档总共4页,全部预览完了,如果喜欢就下载吧!
资源描述

《现场卫生间管根包墩防渗漏技术.docx》由会员分享,可在线阅读,更多相关《现场卫生间管根包墩防渗漏技术.docx(4页珍藏版)》请在第壹文秘上搜索。

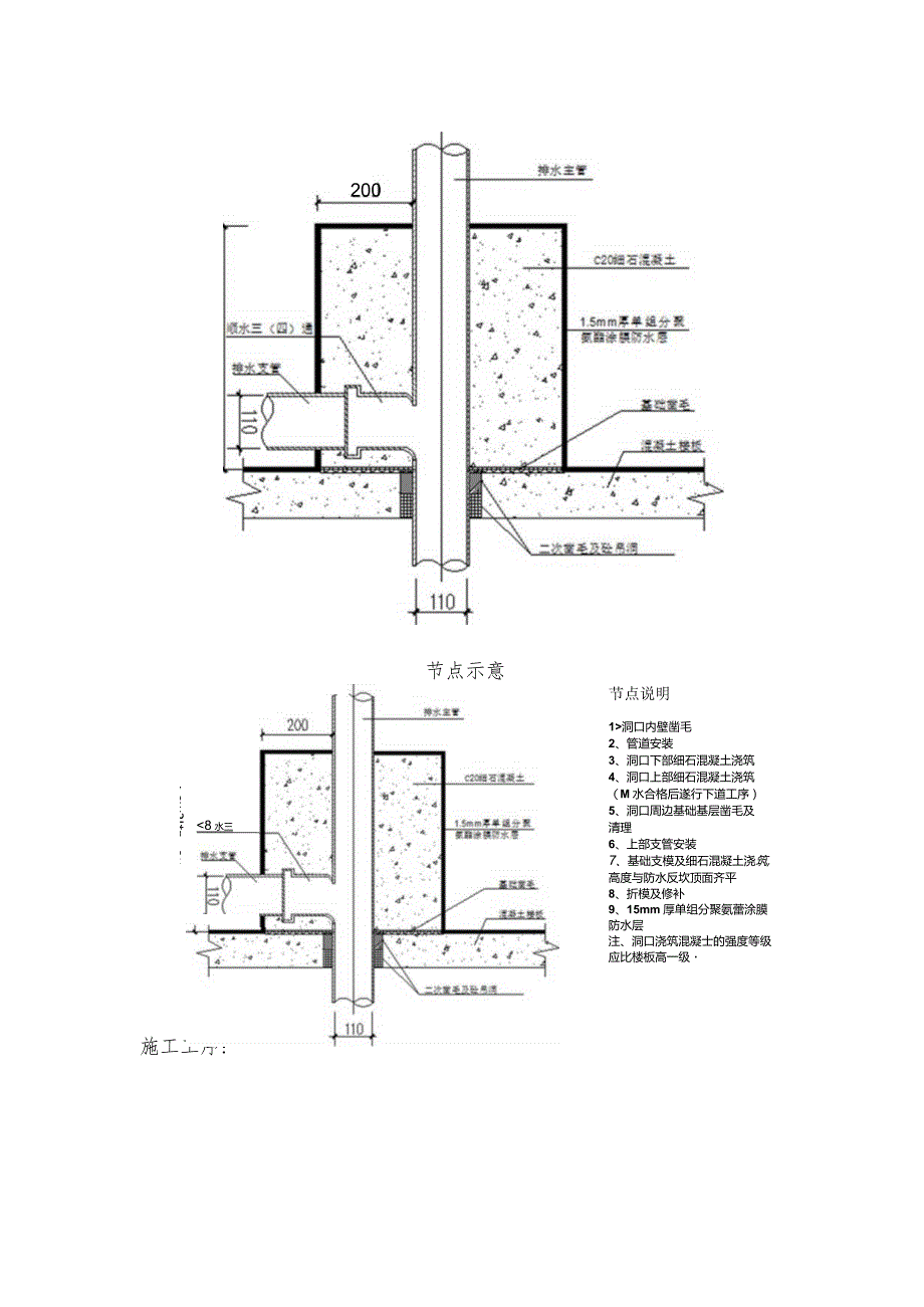
现场卫生间管根包墩防渗漏技术项目卫生间均为下沉式同层排水,而工程建设中,下沉式卫生间排水管道穿越楼板处,经常出现渗漏现象。为了避免本项目卫生间排水管的安装节点出现渗漏,提出如下提升方案:BIM模型200节点示意aw3!*z话s-fc洞口内壁凿毛2、管道安装3、洞口下部细石混凝土浇筑4、洞口上部细石混凝土浇筑(M水合格后遂行下道工序)5、洞口周边基础基层凿毛及清理6、上部支管安装7、基础支模及细石混凝土浇筑,高度与防水反坎顶面齐平8、折模及修补9、15mm厚单组分聚氨蕾涂膜防水层注、洞口浇筑混凝士的强度等级应比楼板高一级施工工序:节点说明管道洞内壁松动混凝土清理T洞口吊洞洞口周边混凝土凿毛混凝土墩模板T蓄水试验T混凝土浇筑。支管的EPS模板工艺:为保证取孔精度,排水支管部位采用EPS板取孔作为侧模。通过实施,项目的卫生间排水管的安装节点质量可靠,成型效果好,无渗漏,保障了后期精装修的实施。

展开阅读全文
相关资源
猜你喜欢
相关搜索

当前位置:首页 > 建筑/环境 > 施工组织

copyright@ 2008-2023 1wenmi网站版权所有

经营许可证编号:宁ICP备2022001189号-1

本站为文档C2C交易模式,即用户上传的文档直接被用户下载,本站只是中间服务平台,本站所有文档下载所得的收益归上传人(含作者)所有。第壹文秘仅提供信息存储空间,仅对用户上传内容的表现方式做保护处理,对上载内容本身不做任何修改或编辑。若文档所含内容侵犯了您的版权或隐私,请立即通知第壹文秘网,我们立即给予删除!