水池、挡墙计算书.docx

上传人:p** 文档编号:840861 上传时间:2024-03-15 格式:DOCX 页数:46 大小:285.13KB
下载 相关 举报
水池、挡墙计算书.docx_第1页
第1页 / 共46页
水池、挡墙计算书.docx_第2页
第2页 / 共46页
水池、挡墙计算书.docx_第3页
第3页 / 共46页
水池、挡墙计算书.docx_第4页
第4页 / 共46页
水池、挡墙计算书.docx_第5页
第5页 / 共46页
水池、挡墙计算书.docx_第6页
第6页 / 共46页
水池、挡墙计算书.docx_第7页
第7页 / 共46页
水池、挡墙计算书.docx_第8页
第8页 / 共46页
水池、挡墙计算书.docx_第9页
第9页 / 共46页
水池、挡墙计算书.docx_第10页
第10页 / 共46页
亲,该文档总共46页,到这儿已超出免费预览范围,如果喜欢就下载吧!
资源描述

《水池、挡墙计算书.docx》由会员分享,可在线阅读,更多相关《水池、挡墙计算书.docx(46页珍藏版)》请在第壹文秘上搜索。

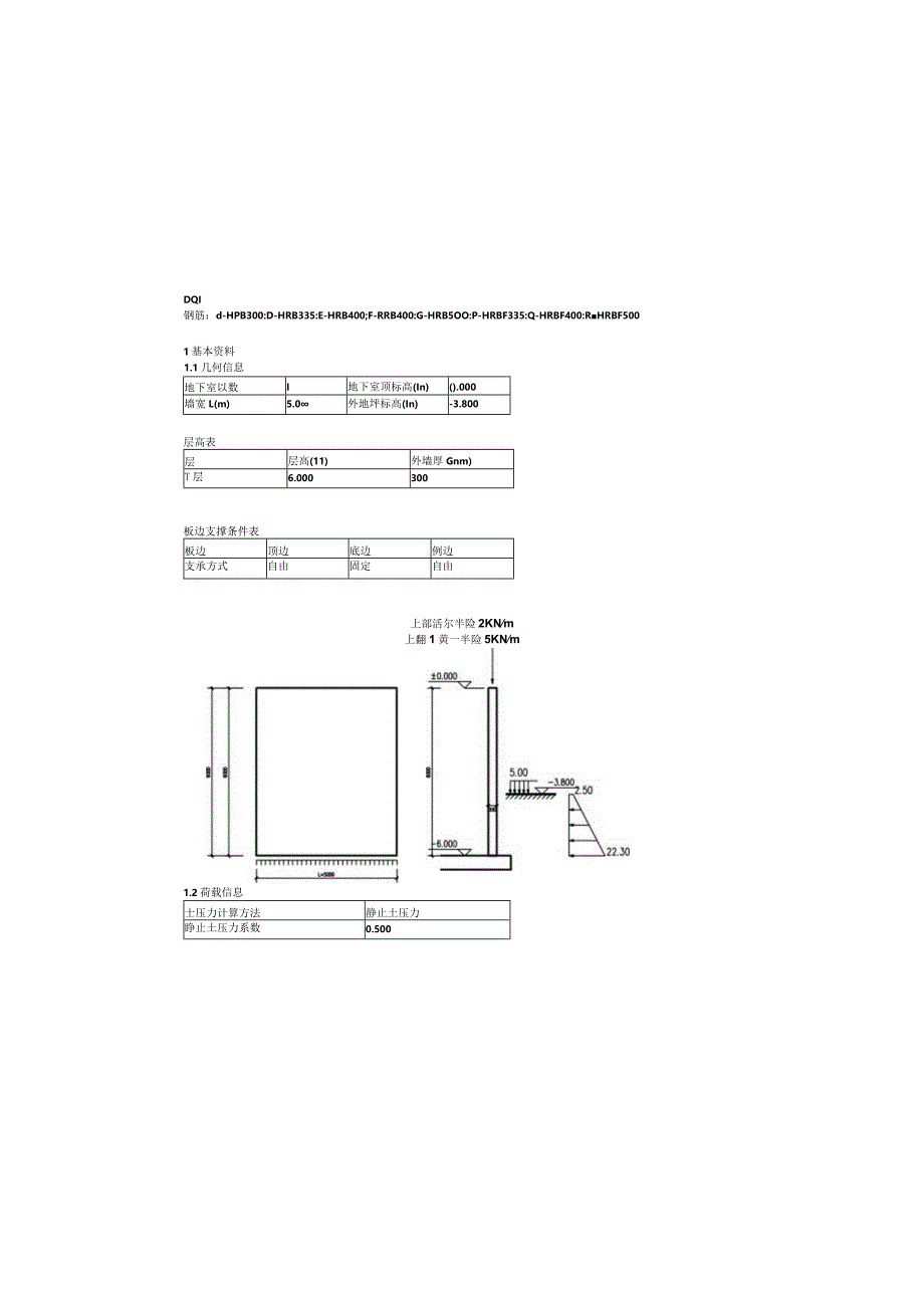
1、地卜水压是否调整乂水土分靠水上侧压计竟地下水埋深(In)IO.(XX)士天然容t(kNn3)18.00士饱和容重(kN三3)20.上部恒载-平时(kNm)5.00上部活载-平时(kNm)2.00上部恒载-战时(kN)地面活载-平时(kPa)5.001.3配筋信息碎强度等级C30配筋调整系数1.0钢筋线别HRB400竖向配筋方法纯寿年弯取大外纵筋保护层(mm)30竖向配筋方式对称内纵筋保护层(mn)2()裂缝限值Gnm)0.40泊松比0.20裂缝控制配筋考虑P-效应X1.4计算选项信息竖向考矩计算方法连续梁板计算类型平时组合弹性板支座弯矩调幅幅度(%)0.0塑性板。活效准永久值系数0.50水压准

2、永久值系数0.50活载调整系数1.002计算(1)荷载计算(2)内力计算(3)配筋计算(4)裂健脸算荷载说明:永久荷载:土压力荷载,上部恒载.平时,可变荷载:地下水压力,地面活教,上部活我-平时DQI钢筋:d-HPB300:D-HRB335:E-HRB400;F-RRB400:G-HRB5OO:P-HRBF335:Q-HRBF400:RHRBF5001基本资料1.1几何信息地下室以数I地下室顶标高(In)().000墙宽L(m)5.0外地坪标高(In)-3.800层高表层层高(11)外墙厚Gnm)T层6.000300板边支撑条件表板边顶边底边例边支承方式自由固定自由上部活尔半险2KNm上翻1黄

3、一半险5KNm1.2荷载信息士压力计算方法静止土压力睁止土压力系数0.500位置标高土压力水压力地面活我等效平时组合准永久组合I层顶0.000.000.000.000.000.00外地坪顶3.800.000.002.503.751.257层底-6.0019.80().002.5027.5121.05上部话裁一平时:2KNm地面活棘应2.500(5)恻压荷载分解结果表(kPa):平时组合准永久组合地下室层号均布荷载三角荷载均布荷我三角荷载平时组合:平时荷载基本组合战时组合:战时荷载基本组合准永久组合:平时荷载准永久组合(用裂缝计尊)2.1 荷就计算2.1.1 墙上竖向压力平时组合(kNn):1.

4、300X5.000+1.500X2.000=9.500准永久组合(kNm):5.OOO+O.52.000=6.02.1.2 侧压荷载计算(I)土压力标准值(kPa)水土分算,土侧压按静止土压力计算,静止土压力系数k=0.500地下室顶面,标高0.000,在地面(-3.800)以上PKr=O土压力起算位置,标高3800P=OPH=O“层底,标高6000,总埋深2.200,全位于地下水位以上P=krh=0.5X182.2=19.8式中:土压力(kNm2)Pw水压力(kNm2)k土压力系数r土的天然容jR(kN?)rwl土的饱和容重(kN/mbrw水的重度(kN113)h地下水位以上的土层厚度(m)

5、h2地下水位以下的土层厚度(m)(2)地面上活载等效土压力(标准值,kPa):p=kG,=0.5005.O=2.5OO(3)荷载组合系数表组合土压力水压力平时组合1.201.40平时地面活栽上部恒投上部活我1.501.301.50(4)他乐力荷载组合计算(kPa):.Oo000028.24gz平时组做kN.mm)2.3配筋及配筋成果表2.3.1 配筋说明:(1)配筋方法水平按纯弯配筋,竖向取压弯与纯弯配筋的大值(2)单位说明:以下各表格中单位除说明外,配筋面积的位:mm2m,裂鞋宽度单位:mm,弯矩单位kN.mm,轴力单位kNm,配筋率:%2.3.2平时组合计算配筋表部位M(kN.nVm)N(

6、kNm)As(mm2m)配舫率先-I层水平向顶边左-内恻0.006000.20顶边左-外侧().006000.20顶边中-内侧0.006000.20顶边中-外恻0.006000.20顶边右-内侧().006000.20顶边右-外侧0.006000.20注:表中所列三角荷载值是对应于各层底的荷载值(最大)2.2内力计算按连续梁计算竖向弯矩按连续梁模型计算,水平向弯矩仍按板块模型计算调幅前(kN.mm)层部位平时组合准永久组合水平向顶边左0.000.0()顶边中0.000.00顶边右0.000.00左边0.000.0()跨中0.000.00右边0.000.00竖向-1U顶边0.000.()0跨中0

7、.000.00底边-28.24-19.00结果不进行调幅平时组合弯矩图0000II3780I2220I图-和制kMmm)仙轨期-Mt(kN.mm)准永久组合弯矩图II底边外例I600IE142506160.21平时组合注:表中计算As取平时组合与战时组合计兜配筋的较大值2.4 裂验并按实际配筋,及相应于准永久组合的弗性内力进行计算裂缝宽度限值:0.40Omm层部位MqNq选筋实配s裂缝(nun)结论T层水平向顶边左-内侧0.0E14(3250616O.(XX)满足顶边左-外侧0.0E142506160.000满足顶边中-内侧0.0E142506160.0满足顶边中-外侧0.0EI4250616

8、().000满足顶边右-内侧0.0E14250616O.(XX)满足顶边右外侧0.0E142506160.0满足左边-内例0.0E14(325()6160.0满足左边-外恻0.0E1425O6160.0满足跨中-内恻0.0E142506160.000满足跨中-外恻0.0E142506160.000满足底边-内侧-19.06.0EI4(S250616o.ow满足底边-外恻-19.06.0E14(S2506160.043满足最大裂健宽度:0.0432506160.2)平时组合顶边左-外侧600E142506160.21平时组合顶边中-内侧600E142506160.21平时组合顶边中-外侧600E

9、142506160.2)平时组合顶边右-内侧600E142506160.21平时组合顶边右-外侧600E142506160.21平时组合左边-内恻600E14(三2506160.21平时组合左边外恻600E142506160.21平时组合跨中-内恻600E14(g2506160.21平时组合跨中-外恻600E142506160.21平时组合右边-内恻600E14(三2506160.21平时组合右边-外侧600E142506160.21平时组合竖向顶边-内恻600E142506160.21平时组合顶边-外恻600E14(三2506160.2)平时组合跨中-内的600E142506160.21平时组合跨中-外侧600E142506160.21平时组合底边-内恻600E142506160.21平时组介计算断面积筲困一平时嵬曳mm2m)向顶边左-外仰E14(g)2506160.21平时组合顶边中-内侧E14250616

展开阅读全文
相关资源
猜你喜欢
相关搜索

当前位置:首页 > 建筑/环境 > 设计及方案

copyright@ 2008-2023 1wenmi网站版权所有

经营许可证编号:宁ICP备2022001189号-1

本站为文档C2C交易模式,即用户上传的文档直接被用户下载,本站只是中间服务平台,本站所有文档下载所得的收益归上传人(含作者)所有。第壹文秘仅提供信息存储空间,仅对用户上传内容的表现方式做保护处理,对上载内容本身不做任何修改或编辑。若文档所含内容侵犯了您的版权或隐私,请立即通知第壹文秘网,我们立即给予删除!