二程式微型顶管施工方案.doc

上传人:p** 文档编号:953663 上传时间:2024-05-27 格式:DOC 页数:8 大小:644KB
下载 相关 举报
二程式微型顶管施工方案.doc_第1页
第1页 / 共8页
二程式微型顶管施工方案.doc_第2页
第2页 / 共8页
二程式微型顶管施工方案.doc_第3页
第3页 / 共8页
二程式微型顶管施工方案.doc_第4页
第4页 / 共8页
二程式微型顶管施工方案.doc_第5页
第5页 / 共8页
二程式微型顶管施工方案.doc_第6页
第6页 / 共8页
二程式微型顶管施工方案.doc_第7页
第7页 / 共8页
二程式微型顶管施工方案.doc_第8页
第8页 / 共8页
亲,该文档总共8页,全部预览完了,如果喜欢就下载吧!
资源描述

《二程式微型顶管施工方案.doc》由会员分享,可在线阅读,更多相关《二程式微型顶管施工方案.doc(8页珍藏版)》请在第壹文秘上搜索。

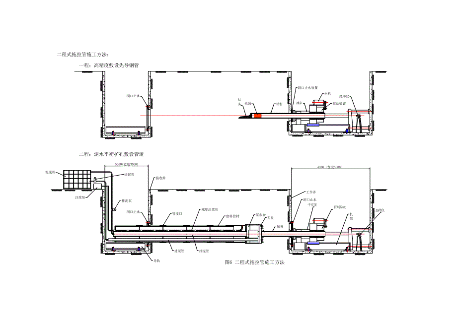
1、二程式微型顶管施工方案 经纬仪引导下的“二程式微型顶管施工方法”是一项新技术、新方法,是保证管道高精度顶进的重要手段之一,该技术集顶管施工技术和定向钻施工技术的精华,非常适用于各类管道的非开挖直线施工,具有方向控制精确、设备运行可靠、排障能力强、适用土质广、施工快速方便、占用场地小的技术特征。导向钻杆钻头从工作井出发,通过经纬仪引导方向在土层钻进,利用钻头先端特殊结构不平衡土压进行纠偏,使定向钻杆精确到达接收井(最大偏差为10MM),然后按设计管道直径要求一次扩孔到位,泥水循环出泥,泥水平衡控制,从而完成设计管道的敷设。该技术已申请国家专利。 采用二程式施工方法:详见“图6 二程式微型顶管施工

2、方法” 适用管径范围:F600mm以下 适用顶程长度:80米左右1.1 微型顶管施工工艺流程 1、根据两立井中心,测放管道轴线地面控制点;2、将管道轴线引测到工作井下,安装洞口止水装置; 3、按经纬仪引导的管道设计轴线,高精度敷设先导钢管; 4、接收井中,安装洞口止水装置,安放导轨,联结泥水平衡扩孔机; 5、试运转,泥水循环出土正常; 6、管材分节下井,拖拉顶进,压注减摩浆液; 7、管道到达工作井,拆卸机头。特别说明:扩孔机头端面Ft由工作井中拉管机克服,管材中拉杆拉力Fr只需克服管材外围的摩擦力Fm,只要认真做好管外周浆套的压注工作,摩阻力是很小的。 先导钻头纠偏原理:通过经纬仪观察钻头中的

3、光源镜面标记,纠偏过程如下:1.2二程式拖拉管施工机械选择主机:自制,专利产品 最大顶力:160吨 最大拉力:120吨 扭矩:8 KN*M 重量:4500公斤 钻头:土压不平衡 纠偏钻杆:特殊螺纹接, 可传递较大扭 矩和顶拉力表01 施工主要机械设备表机 械 名 称规格型号功率出厂时间数量新旧程度小计其 中拥有新购租赁高精度钻机 自制22KW1套1套70液压动力站 自制15KW1套1套80泥水平衡扩孔机 自制1套1套注浆管路设备 自制1套1套80泥水管路设备 自制1套1套80简易行车1台1台70螺杆泵4KW1台1台70污泥泵 2”5.5 KW*44台4台60拌浆筒 1m32只2只70 总计63

4、 KW1.3管材选择我们对市场上塑料管材接口形式进行过调查,情况如表02示。 表02 塑料管材接口形式对比表名称接口形式接管时间接口强度密封性能UPVC实壁管粘接长,环境影响大不稳定不稳定承插短,快速受管材强度影响可靠UPVC波纹管承插短,快速低可靠HDPE波纹管承插短,快速高可靠HDPE实壁管焊接长高可靠热熔长高可靠HDPE工字管热熔长高可靠经过对比分析,承插口连接的UPVC实壁管、HDPE波纹管可应用于本工程的微型顶管施工。UPVC实壁管:根据投标答疑文件提供资料及对管材要求,选择“和隆公司”的管材如下:按国家标准GB/T10002.3-96生产排污管外径MM壁厚MM环刚度承口长度MM承口外径MM总长度M40011.78 kpa228465350014.68 kpa250585363018.48 kpa41072031.4工作井、接收井要求F400mm管道对井的尺寸要求:工作井平面尺寸:4000*2500mm长*宽接受井平面尺寸:4000*2500mm长*宽井的剖面尺寸及洞口结构:

展开阅读全文
相关资源
猜你喜欢
相关搜索

当前位置:首页 > 办公文档 > 解决方案

copyright@ 2008-2023 1wenmi网站版权所有

经营许可证编号:宁ICP备2022001189号-1

本站为文档C2C交易模式,即用户上传的文档直接被用户下载,本站只是中间服务平台,本站所有文档下载所得的收益归上传人(含作者)所有。第壹文秘仅提供信息存储空间,仅对用户上传内容的表现方式做保护处理,对上载内容本身不做任何修改或编辑。若文档所含内容侵犯了您的版权或隐私,请立即通知第壹文秘网,我们立即给予删除!