住宅楼外墙保温施工技术交底4.doc

上传人:p** 文档编号:954442 上传时间:2024-05-28 格式:DOC 页数:8 大小:358KB
下载 相关 举报
住宅楼外墙保温施工技术交底4.doc_第1页
第1页 / 共8页
住宅楼外墙保温施工技术交底4.doc_第2页
第2页 / 共8页
住宅楼外墙保温施工技术交底4.doc_第3页
第3页 / 共8页
住宅楼外墙保温施工技术交底4.doc_第4页
第4页 / 共8页
住宅楼外墙保温施工技术交底4.doc_第5页
第5页 / 共8页
住宅楼外墙保温施工技术交底4.doc_第6页
第6页 / 共8页
住宅楼外墙保温施工技术交底4.doc_第7页
第7页 / 共8页
住宅楼外墙保温施工技术交底4.doc_第8页
第8页 / 共8页
亲,该文档总共8页,全部预览完了,如果喜欢就下载吧!
资源描述

《住宅楼外墙保温施工技术交底4.doc》由会员分享,可在线阅读,更多相关《住宅楼外墙保温施工技术交底4.doc(8页珍藏版)》请在第壹文秘上搜索。

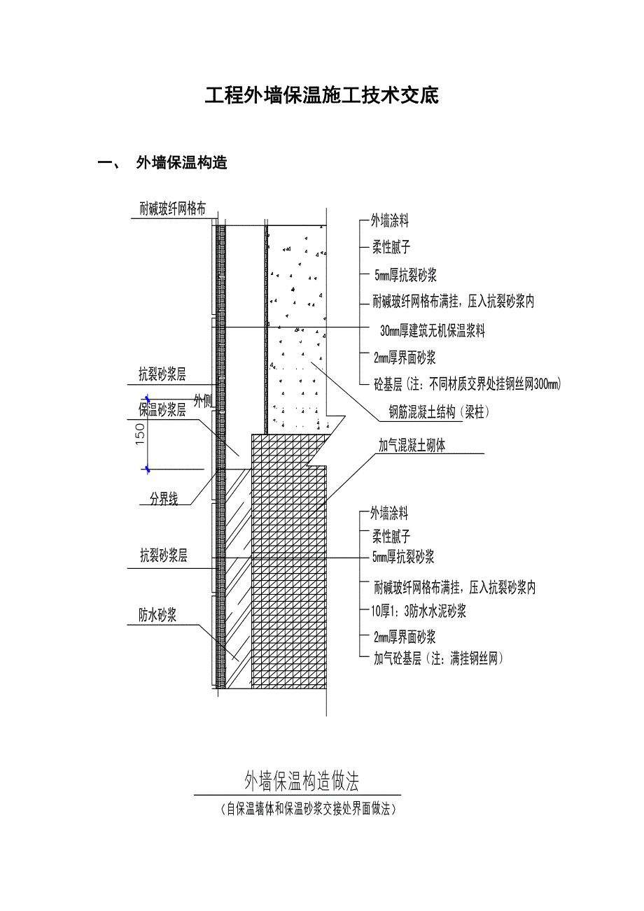
1、工程外墙保温施工技术交底一、 外墙保温构造二、工期:该工程的工程量较大、工期紧、每栋楼的吊篮一次安装完,因此必须从人力、物力、机具、材料方面得到保证,而且需要与相关专业工种同时进行施工,交叉作业较多。作好进度计划的协调配合工作,及时、合理地组织好平行流水作业和立体交叉作业, 工期25天完成。三、施工要点:(一)基层墙面处理要求:1、对墙体有松动、灰浆不饱满的拼缝及梁、板下的顶头缝,墙面坑凹不平处,砌块缺楞掉角用水泥胶浆填塞密实、平顺,将露出墙面的舌头灰刮净,凸出部位剔凿平整。2、结构施工时留下的对拉螺栓孔采用1:2水泥砂浆加甲基纤维胶液填补密实。3、砌体施工时留下的脚手眼孔洞、悬挑槽钢孔洞、剔

2、凿的设备管线槽用掺入UEA微膨胀C20细石砼找补平整,将抹灰基层处理完好。4、外门窗框安装完毕、检查合格。5、基层应平整、坚实。基层墙面必须清理干净,使墙面无油渍、浮尘、脱模剂、污垢、风化物、霜,泥土等污染物或其它妨碍粘结的材料。施工前一天用水将基层墙面充分湿润;但基层墙体不能饱和面干,不能有明水,否则会出现龟裂现象。经冲洗的墙面必须晾干后,方可进行下道工序的施工。(二)厚度控制打巴1、厚度控制巴的顶面应以保温层的设计厚度为准。2、打顶部巴:距顶部400mm左右和在墙的两尽头阳角处同一水平面线上(用透明乳胶管找水平)吊垂线,用水泥砂浆做上部标准块2个,标准块厚度同保温层厚度标高相同,标准块大小

3、见方成宝塔形,在同一水平面线上做其他标准块,厚度由水平通线控制,标准块间距为1.21.5m。 3、打其它巴:依次以顶部第一排标准块为依据,吊垂线确定下部对应的标准块厚度,间距为1.21.5m。(三)界面砂浆施工1、配料调浆将YG甲基纤粉:水=1:150(重量比),用搅拌器充分搅拌均匀(约搅拌10分钟)制成甲基纤维胶液(以下简称胶液)。胶液在兑好12小时(此时胶液达到最佳粘结效果)后,按比例在胶液中掺入水泥(胶液重量比水泥重量为1:2)充分搅拌成水泥胶浆(界面砂浆)。界面砂浆必须即配即用,小时内用完。2、涂覆用滚刷或扫帚蘸取界面砂浆均匀涂刷于墙面上,不得漏刮,拉毛不宜太厚。配好的料注意防晒避风。

4、 (四)、钢筋砼结构(梁柱)保温层施工1、配料调浆按使用说明书的配比将料倒入搅拌容器中(根据搅拌机容量可以按比例调整)。搅拌机搅拌5-8分钟,使料浆成均匀膏体状,即可使用。砂浆必须即配即用,小时内用完。2、涂覆无机保温砂浆总厚30mm,涂抹应分二遍进行。第一遍涂抹厚度为15mm,第二遍涂抹厚度为15mm,待第一层遍材料终凝后,用手按不动(夏天至少5天以上)再抹第二遍。分遍涂抹时应适度按压表面不收光,以保证保温层与墙面及保温层之间的粘结,但不宜在一个部位反复抹压。3、找平保温层涂抹完毕后,用靠尺由下往上找平,再用木抹子搓平,保温层平整度垂直度要求(见保温层允许偏差表)。(五)、加气砼防水砂浆施工

5、1、配料调浆按水泥、砂1:3配比将料和配制好的甲基纤维胶液倒入搅拌容器中(根据搅拌机容量可以按比例调整)。搅拌机搅拌5-8分钟,使料浆成均匀膏体状,即可使用。砂浆必须即配即用,小时内用完。2、涂覆、找平防水砂浆总厚10mm,涂抹一遍进行。表面原浆搓毛收平,不得浇水打水沙板搓平,不宜压光。(六)玻纤网铺设、抗裂砂浆施工1、根据墙面情况将玻纤网裁剪好备用;2、抗裂砂浆厚 5mm3、将搅拌好的抗裂砂浆均匀涂抹在彻底干燥后的保温层上,约2mm厚,压入网格布,返浆将其覆盖,在门窗口角处洞口边角应45斜向加铺一道耐碱网布、尺寸宜为400mm300mm,返浆网格布全部覆盖,使网眼内砂浆饱满度达到90%以上。

6、玻纤网纵向搭接宽度不小于100mm,搭接上盖下,且压入砂浆的玻纤网不得有皱褶、空鼓、翘边;随后再均匀涂抹3mm厚抗裂砂浆,抗裂砂浆应压实,压紧,抹平。四、 分层色带为偶数层,缝宽20mm、缝深5mm。五、施工质量要求1、基层处理:要求墙面清洗干净,无浮土,无油渍、空鼓及松动,风化部分剥掉,粘结牢靠。2、界面砂浆滚涂应抹到位,且界面拉毛均匀。3、保温层厚度要求达到设计,无开裂,无脱落,墙面平整,阴阳角及门窗洞口垂直、方正。4、保温层与墙体及各构造层之间必须粘结牢固,无脱落、空鼓、裂缝,面层无粉化、起皮、爆灰等现象。5、抗裂砂浆控制厚度,墙面无明显接茬、无明显抹痕,墙面平整,门窗洞口及阴阳角垂直。

7、6、分层色带宽度、深度均匀一致,平整光洁,棱角整齐,横平竖直、通顺。7、有排水要求的部位应作滴水线,滴水线应顺直,流水坡向应正确。 8、质量允许偏差:保温层允许偏差表项目允许偏差检验方法立面垂直4mm用2米托线板检查表面平整4mm用2米靠尺和楔尺检查阴阳角垂直4mm用2米托线板检查阴阳角方正4mm用20厘米方尺的楔尺保护面层允许偏差表项目允许偏差检验方法立面垂直4mm用2米托线板检查表面平整4mm用2米靠尺和楔尺检查阴阳角垂直4mm用2米托线板检查阴阳角方正4mm2用20厘米方尺的楔尺9、门窗边框与墙体连接处应预留出保温层3宽度,便于收边收口,其缝隙应分层填塞密实,并做好门窗框表面的保护。10

8、、施工中每结束一道工序,应通知现场管理人员验收质量并做好验收记录(即隐蔽资料并做检查记录),合格后方能进行下一道工序施工,否则不准施工。11、钢丝网的规格及固定方式按内墙抹灰交底施工。12、阳台挡物线上口平面坡向内侧。外墙严禁渗水。13、外墙保温先做各构造层之间的样板墙,待样板验收合格后方可大面积施工。14、未尽事宜按设计图及规范施工。六、成品保护1、分格线、滴水槽、门窗框、管道、槽盒上残存砂浆,应及时清理干净。2、电动吊篮应防止破坏已抹好的墙面,门窗洞口、边、角、垛宜采取保护性措施。其他工种作业时应不得污染或损坏墙面,严禁蹬踩窗台。3、各构造层在凝结前应防止水冲、撞击、振动。4、应遵守有关安全操作规程。新工人必须经过技术培训和安全教育方可上岗。电动吊篮、脚手架经安全检查验收合格后,方可上人施工,施工时应有防止工具、用具、材料坠落的措施。交底人: 接受交底人:交底时间: 接底时间:

展开阅读全文
相关资源
猜你喜欢
相关搜索

当前位置:首页 > 建筑/环境 > 施工组织

copyright@ 2008-2023 1wenmi网站版权所有

经营许可证编号:宁ICP备2022001189号-1

本站为文档C2C交易模式,即用户上传的文档直接被用户下载,本站只是中间服务平台,本站所有文档下载所得的收益归上传人(含作者)所有。第壹文秘仅提供信息存储空间,仅对用户上传内容的表现方式做保护处理,对上载内容本身不做任何修改或编辑。若文档所含内容侵犯了您的版权或隐私,请立即通知第壹文秘网,我们立即给予删除!