安置房工程二标段卸料平台施工方案.doc

上传人:p** 文档编号:995871 上传时间:2024-06-11 格式:DOC 页数:17 大小:267.44KB
下载 相关 举报
安置房工程二标段卸料平台施工方案.doc_第1页
第1页 / 共17页
安置房工程二标段卸料平台施工方案.doc_第2页
第2页 / 共17页
安置房工程二标段卸料平台施工方案.doc_第3页
第3页 / 共17页
安置房工程二标段卸料平台施工方案.doc_第4页
第4页 / 共17页
安置房工程二标段卸料平台施工方案.doc_第5页
第5页 / 共17页
安置房工程二标段卸料平台施工方案.doc_第6页
第6页 / 共17页
安置房工程二标段卸料平台施工方案.doc_第7页
第7页 / 共17页
安置房工程二标段卸料平台施工方案.doc_第8页
第8页 / 共17页
安置房工程二标段卸料平台施工方案.doc_第9页
第9页 / 共17页
安置房工程二标段卸料平台施工方案.doc_第10页
第10页 / 共17页
亲,该文档总共17页,到这儿已超出免费预览范围,如果喜欢就下载吧!
资源描述

《安置房工程二标段卸料平台施工方案.doc》由会员分享,可在线阅读,更多相关《安置房工程二标段卸料平台施工方案.doc(17页珍藏版)》请在第壹文秘上搜索。

1、一、工程概况本工程为某某双河四期安置房工程,工程地点位于成都市高新区南部园区。该工程划分为两个标段,我公司承建的是二标段二标段地下室,地下一层;地上4、5、10、13#楼18层;6#楼、11#楼、14#楼、17#楼22层;16#楼15层,标准层层高都为3m。建筑高度为47.9068.90m,总建筑面积为。 因本工程为高层建筑,我施工单位特编制2个卸料平台施工方案,一为落地钢管卸料平台,该平台适用于地面12m以下的卸料平台使用;二为型钢悬挑卸料平台,该平台适用于地面12m以上的的卸料平台使用。每栋从二层起4、5、13、16#楼每层设置4个卸料平台;6、10、11、14、17#楼每层设置2个卸料平

2、台。卸料平台根据各楼栋主体及外架施工进度要求同步进行安装,平台一般设置便于搬运材料的位置,具体布置见附图。二、编制依据1、某某双河四期安置房工程施工图;2、某某双河四期安置房工程施工组织设计;3、建筑施工扣件式钢管脚手架安全技术规范(JGJ130-2011);4、建筑结构荷载规范(GB 50009-2012);5、钢结构设计规范(GB 50017-2003);6、建筑施工高处作业安全技术规范(JGJ80-91);7、建筑工程施工质量验收统一标准(GB50300-2001);8、建筑施工安全检查标准 (JGJ59-2011);三、落地式钢管卸料平台(一)搭设方案卸料平台采用4.83.6钢管搭设,

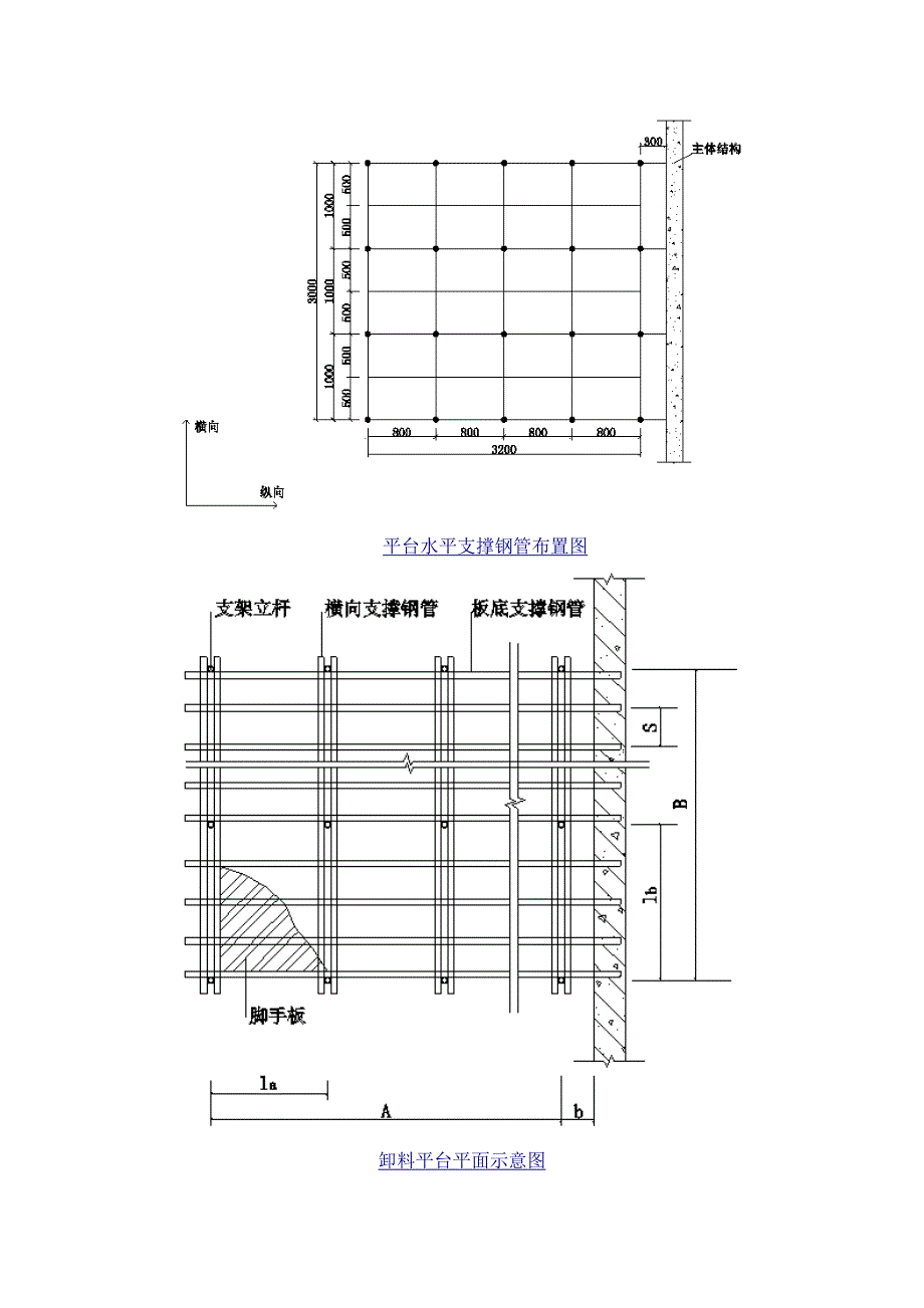
3、尺寸:3.2m3.0m,搭设高度为11.6m。使用荷载应控制在800kg以内,且材料不能长时间堆码在平台上,3小时以上未转运走的材料应转移到楼层内。卸料平台架由钢管搭设,纵横立杆间距0.8m1.0m,纵横横杆步距为1.8m。在平台架四边垂直面上设剪力撑,每两步横杆设一道,从底到顶连续设置。平台架封顶时立杆大头朝上,四周立杆应高出顶层脚手架板1.2m,以备搭设栏杆,内排立杆应低于脚手板下表面,杆顶与最上层的横杆取齐,顶层杆件的每个绑扎点均用双扣。脚手板要用50mm厚的木板,铺严,铺稳,用钉钉牢(或绑扎牢固),三面围护安全网。地基要夯实找平,铺设垫板,并作好排水处理。(本工程搭设在地下室顶板上)平

4、台水平支撑钢管布置图卸料平台平面示意图卸料平台侧立面示意图(二)材料要求对于钢管、扣件等进场材料必须进行严格的检验,不合格材料杜绝使用。 (三)构造要求1、立杆 每根立杆底部设置垫板,垫板宽度200mm,厚度50mm。 立杆与大横杆必须用直角扣件扣紧(大横杆对立杆起约束作用,对确保立杆承载能力的关系很大),不得隔步设置或遗漏。 立杆上的对接扣件交错布置,两根相邻立杆的接头不设置在同步内,同步内隔一根立杆的两个相隔接头在高度方向错开的距离不小于500mm,各接头中心至主节点的距离不大于步距的1/3。2、大横杆 上下横杆的接长位置错开布置在不同的立杆纵距中,与相邻立杆的距离不大于纵距的三分之一。

5、同一排大横杆的水平偏差不大于该片脚手架总长度的1/250,且不大于50mm。 相邻步架的大横杆错开布置在立杆的里侧和外侧,以减少立杆偏心受力情况。3、剪刀撑 每道剪刀撑跨越立杆的根数为3跨,倾角在45 60之间。 剪刀撑斜杆的接长采用搭接,搭接长度1米,用3个扣件连接。 剪刀撑斜杆用旋转扣件固定在与之相交的横向水平杆的伸出端或立杆上,旋转扣件中心线至主节点的距离不大于150mm。(四)搭设工艺 每搭完一步脚手架后,按规范规定校正步距、纵距、横距及立杆的垂直度。 杆件在相交处的端头伸出长度应不小于0.1m。 立杆下铺跳板,准确的放在定位线上。 立杆搭设符合下列规定:严禁将外径不一致的钢管混合使用

6、;相邻立杆的对接扣件不得在同一高度内,错开距离符合要求。 扣件安装符合下列规定:扣件规格必须与钢管外径相同。拧紧程度:要求扭力矩控制在60N.M60N.M,最大不得超过65N.M。在主节点处固定横向水平杆、纵向水平杆、剪刀撑、横向斜撑等用的直角扣件、旋转扣件的中心点的相互距离不大于150mm;对接扣件开口朝上或朝内;用于连接大横杆的对接扣件,开口应朝架子内侧,螺栓向上,避免开口向上,以防雨水进入锈蚀扣件;各杆件端头伸出扣件盖板边缘的长度不小于100mm。 落地式脚手架卸料平台与外围护架严禁相连,必须单独与建筑物可靠连接。(五)落地式钢管卸料平台计算书1、架体参数卸料平台名称卸料平台卸料平台布置

7、方式沿纵向平台长度A(m)3.2平台宽度B(m)3平台高度H(m)12立杆纵距la(m)0.8立杆步距h(m)1.8立杆横距lb(m)1板底支撑间距s(m)0.5 2、荷载参数每米钢管自重g1k(kN/m)0.033脚手板自重g2k(kN/m2)0.35栏杆、挡脚板自重g3k(kN/m)0.14安全设施与安全网自重g4k(kN/m)0.01材料堆放最大荷载q1k(kN/m2)10施工均布荷载q2k(kN/m2)2基本风压0(kN/m2)0.2风荷载体型系数s0.8风压高度变化系数z0.74(立杆稳定性验算),0.74(连墙件强度验算)3、板底支撑(纵向)钢管验算钢管类型483钢管截面抵抗矩 W

8、(cm3)4.49钢管截面惯性矩I(cm4)10.78钢管弹性模量E(N/mm2)钢管抗压强度设计值 f(N/mm2)205 G1k=g1k=0.033kN/m; G2k= g2klb/2 =0.3501.00/2=0.175kN/m; Q1k= q1klb/2 =10.0001.00/2=5.000kN/m; Q2k= q2klb/2 =2.0001.00/2=1.000kN/m; (1)强度计算 板底支撑钢管按均布荷载作用下的三等跨连续梁计算。 q1=1.2 (G1k+G2k)= 1.2(0.033+0.175)=0.250kN/m; q2=1.4(Q1k+Q2k)= 1.4(5.000+

9、1.000)=8.400kN/m; 板底支撑钢管计算简图 Mmax=(0.100q1+0.117q2)l2=(0.1000.250+0.1178.400)0.802=0.645kNm; Rmax=(1.100q1+1.200q2)l=(1.1000.250+1.2008.400)0.80=8.284kN; =Mmax/W=0.645106/(4.49103)=143.645N/mm2f=205.00N/mm2; 满足要求! (2)挠度计算 q=G1k+G2k=0.033+0.175=0.208kN/m q=Q1k+Q2k=5.000+1.000=6.000kN/m Rmax=(1.100q1+

10、1.200q2)l=(1.1000.208+1.2006.000)0.80=5.943kN; =(0.677q1l4+0.990q2l4)/100EI=(0.6770.208(0.80103)4+0.9906.000(0.80103)4)/(100.0010.78104) =1.122mmmin800.00/150,10mm=5.333mm 满足要求! 4、横向支撑钢管验算平台横向支撑钢管类型双钢管钢管类型483钢管截面抵抗矩 W(cm3)4.49钢管截面惯性矩I(cm4)10.78钢管弹性模量E(N/mm2)钢管抗压强度设计值 f(N/mm2)205 横向支撑钢管按照均布荷载和集中荷载下三等

11、跨连续梁计算,集中荷载P取板底支撑钢管传递最大支座力。 q=g1k=0.033kN/m; p=Rmax/2=4.142kN; p=Rmax/2=2.972kN 横向钢管计算简图 横向钢管计算弯矩图 Mmax=0.727kNm; 横向钢管计算剪力图 Rmax=4.794kN; 横向钢管计算变形图 max=1.555mm; =Mmax/W=0.727106/(4.49103)=161.860N/mm2f=205.00N/mm2; 满足要求! max=1.555mmmin1000.00/150,10=6.67mm; 满足要求! 5、立杆承重连接计算横杆和立杆连接方式双扣件单扣件抗滑承载力(kN)8扣

12、件抗滑移承载力系数0.8 Rc=8.020.80=12.800kNR=8.284kN 满足要求! 6、立杆的稳定性验算钢管类型483钢管截面回转半径i(cm)1.59钢管的净截面A(cm2)4.24钢管抗压强度设计值 f(N/mm2)205双立杆计算方法按构造要求设置立杆计算长度系数1.5 NG1=(la+2.00lb+2.00h)g1k/hH+g1kla1.00/1.00=(0.80+2.001.00+2.001.80)0.033/1.8012.000+0.0330.801.00/1.00=1.434kN NG2=g2klalb/1.00=0.3500.801.00/1.00=0.280kN

13、; NQ1=q1klalb/1.00=10.0000.801.00/1.00=8.000kN; NQ2=q2klalb/1.00=2.0000.801.00/1.00=1.600kN; 考虑风荷载时,立杆的轴向压力设计值: N=1.2(NG1+NG2)+0.91.4(NQ1+NQ2)=1.2(1.434+0.280)+ 0.91.4(8.000+1.600)=14.153kN; 支架立杆计算长度: L0=kh=11.501.80=2.700m 长细比=L0/i=2.700103/(1.5910)=169.811=250 满足要求! 轴心受压构件的稳定系数计算: L0=kh=1.1551.500

14、1.8=3.119m 长细比= L0/i=3.119103/(1.5910)=196.132 由查表得到立杆的稳定系数=0.188 k=zso=0.740.800.20=0.118kN/m2 Mw=0.91.4klh2/10=0.91.40.1181.001.802/10=0.048kNm; =N/A+Mw/W=14.153103/(0.1884.24102)+0.048106/(4.49103)=188.320N/mm2f=205.00N/mm2 满足要求! 7、连墙件验算 连墙件连接方式扣件连接连墙件布置方式2步3跨连墙件对卸料平台变形约束力N0(kN)3内立杆离墙距离a(m)0.3 (1)强度验算 k=zso=0

展开阅读全文
相关资源
猜你喜欢
相关搜索

当前位置:首页 > 建筑/环境 > 设计及方案

copyright@ 2008-2023 1wenmi网站版权所有

经营许可证编号:宁ICP备2022001189号-1

本站为文档C2C交易模式,即用户上传的文档直接被用户下载,本站只是中间服务平台,本站所有文档下载所得的收益归上传人(含作者)所有。第壹文秘仅提供信息存储空间,仅对用户上传内容的表现方式做保护处理,对上载内容本身不做任何修改或编辑。若文档所含内容侵犯了您的版权或隐私,请立即通知第壹文秘网,我们立即给予删除!