中申公司工程项目赶工激励流程.docx

上传人:p** 文档编号:208691 上传时间:2023-04-16 格式:DOCX 页数:4 大小:37.32KB
下载 相关 举报
中申公司工程项目赶工激励流程.docx_第1页
第1页 / 共4页
中申公司工程项目赶工激励流程.docx_第2页
第2页 / 共4页
中申公司工程项目赶工激励流程.docx_第3页
第3页 / 共4页
中申公司工程项目赶工激励流程.docx_第4页
第4页 / 共4页
亲,该文档总共4页,全部预览完了,如果喜欢就下载吧!
资源描述

《中申公司工程项目赶工激励流程.docx》由会员分享,可在线阅读,更多相关《中申公司工程项目赶工激励流程.docx(4页珍藏版)》请在第壹文秘上搜索。

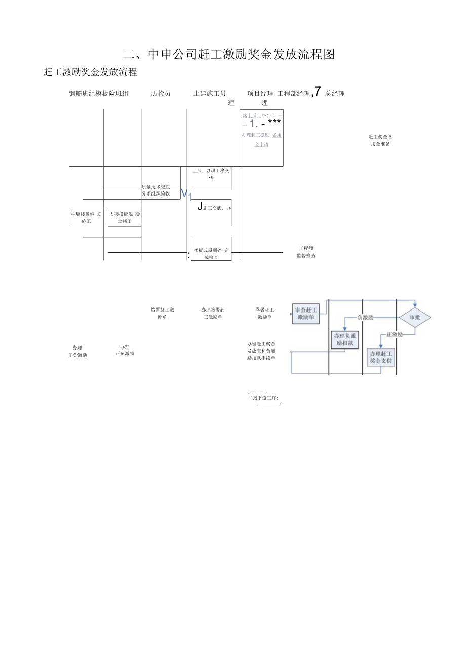
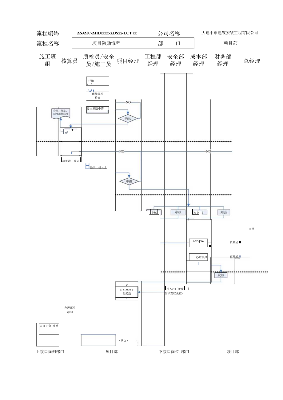
一、中申公司工程项目激励流程图流程编码ZSJZ07-ZHDxxxx-ZDSxx-LCT xx公司名称大连中申建筑安装工程有限公司流程名称项目激励流程部门项目部施工班组核算员质检员/安全员/施工员项目经理工程部经理安全部经理成本部经理财务部经理总经理H签字、确认I审核I审批负激励正激励(结束)I引入赶匚激励I 金额发放流程:办理正负 激制上接口岗例部门项目部下接口岗位;部门项目部开始 ,W现场管理检查提出激励申请办理正负 激励I_Ll核*FI填报激 ,励表IV组织办理正负激励1JkTOifA办理奖励II知会二、中申公司赶工激励奖金发放流程图赶工激励奖金发放流程钢筋班组模板险班组质检员土建施工员项目经理 工程部经理,7 总经理理埋:接上道工序) 、一 一 1. - * 办理赶工激励 备用金申请质量技术交底V_ 办理工序交 接分项组织验收1J施工交底,办柱墙楼板钢 筋施工支架模板混 凝土施工:楼板或屋面碎 完成检查然詈赶工激励单办理签署赶工激励单卷署赶工激励单赶工奖金备用金准备办理正负激励办理正负激励办理赶工奖金 发放表和负激 励扣款手续单, -、(接下道工序;./工程师监督检查赶工激励奖金发放表项目部:部位:楼层施工日期:月 日时一月曰时序号施工班组名称奖金数量 (大小写)领取人签字项目经理签字备注1234注:本表一式两份,一份留项目部,一份报公司财务。发放日期:2007年 月 日

展开阅读全文
相关资源
猜你喜欢
相关搜索

当前位置:首页 > 管理/人力资源 > 薪酬管理

copyright@ 2008-2023 1wenmi网站版权所有

经营许可证编号:宁ICP备2022001189号-1

本站为文档C2C交易模式,即用户上传的文档直接被用户下载,本站只是中间服务平台,本站所有文档下载所得的收益归上传人(含作者)所有。第壹文秘仅提供信息存储空间,仅对用户上传内容的表现方式做保护处理,对上载内容本身不做任何修改或编辑。若文档所含内容侵犯了您的版权或隐私,请立即通知第壹文秘网,我们立即给予删除!