轻钢龙骨石膏板吊顶施工技术交底(示范文本).docx

上传人:p** 文档编号:443972 上传时间:2023-08-28 格式:DOCX 页数:5 大小:112.08KB
下载 相关 举报
轻钢龙骨石膏板吊顶施工技术交底(示范文本).docx_第1页
第1页 / 共5页
轻钢龙骨石膏板吊顶施工技术交底(示范文本).docx_第2页
第2页 / 共5页
轻钢龙骨石膏板吊顶施工技术交底(示范文本).docx_第3页
第3页 / 共5页
轻钢龙骨石膏板吊顶施工技术交底(示范文本).docx_第4页
第4页 / 共5页
轻钢龙骨石膏板吊顶施工技术交底(示范文本).docx_第5页
第5页 / 共5页
亲,该文档总共5页,全部预览完了,如果喜欢就下载吧!
资源描述

《轻钢龙骨石膏板吊顶施工技术交底(示范文本).docx》由会员分享,可在线阅读,更多相关《轻钢龙骨石膏板吊顶施工技术交底(示范文本).docx(5页珍藏版)》请在第壹文秘上搜索。

1、轻钢龙骨石膏板吊顶施工技术交底(示范文本)一、施工准备1、材料准备:主龙骨采用CB60*12*10mm主龙骨,副龙骨采用CB50*20*0.6mm副龙骨收边龙骨采用30*22*20*0.4mm边龙骨,石膏板采用2400*1200*9.5mm纸面石膏板以及防水石膏板,埃特板采用1220*2440*9mm埃特板,。8吊杆、8膨胀螺栓、配套挂件、自攻螺丝等。2、主要机具:电锯、无齿锯、手电钻、冲击电锤、电动螺丝刀、电焊机、射钉枪、拉钏抢、手锯、手刨子、水准仪、靠尺、钢卷尺等。3、作业条件:(1)吊顶工程在施工前应熟悉施工图纸及设计说明。(2)施工前应按设计要求对房间的净高、洞口标高和吊顶内的管道、设

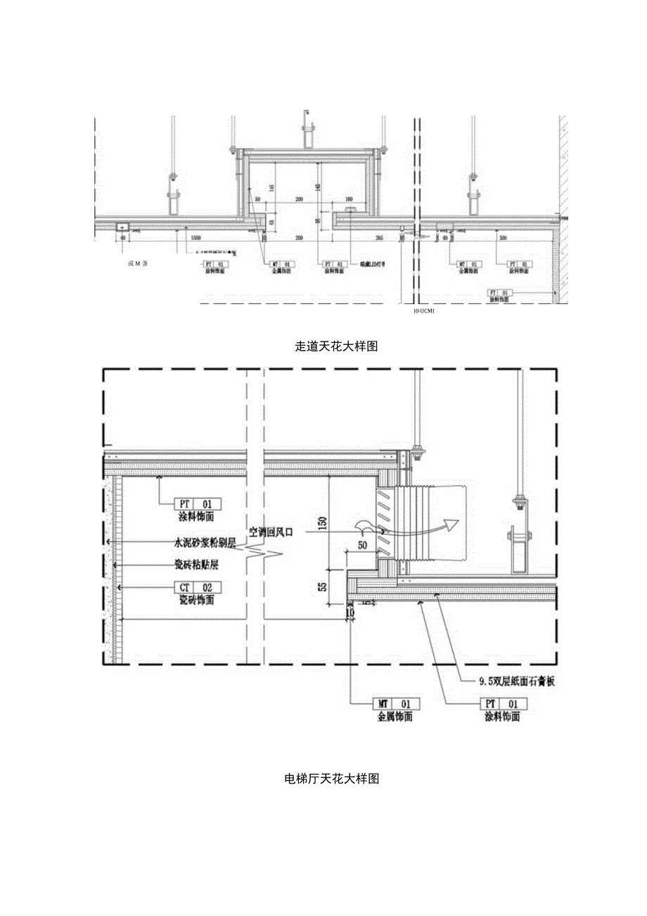
2、备及其支架的标高进行复核。(3)对吊顶内的管道、设备的安装及管道试压后进行隐蔽验收。(4)吊顶工程在施工中应做好各项施工记录,收集好各种有关文件。(5)材料进场验收记录和复验报告,技术交底记录。二、操作工艺:1、施工流程弹标高水平线、划分档线T安装吊杆T安装边龙骨T安装主龙骨T安装次龙骨T安装石膏板。或M条0UCMI走道天花大样图电梯厅天花大样图卫生间天花大样图卫生间天花大样图二三、施工工艺1、弹吊顶水平线,划龙骨分档线:验证1米标高线,从水准线量至吊顶设计高度加上9.5rrn(一层石膏板的厚度),用墨线沿墙(柱)弹出水准线,即为吊顶次龙骨的下皮线。同时,按吊顶平面图,在混凝土顶板弹出主龙骨及

3、吊杆的位置。主龙骨宜平行房间长向布置,一般从吊顶中心向两边分。主龙骨与吊杆间距为100Ommo2、固定边龙骨、吊杆:按照弹出的天花标高线或造型线,确定边龙骨位置。顶面边龙骨采用木楔子+5Cm长自攻螺丝固定,或采用不小于6膨胀螺栓固定;墙面边龙骨可采用射钉枪进行固定,所有固定点的间距不得大于600mm,龙骨两端各留50m。采用膨胀螺栓固定吊挂杆件。吊杆长度小于等于IoOomm,采用8的吊杆,如果吊杆长度大于1500mm,同样应在吊杆上设置反向支撑龙骨在遇到断面较大的机电设备或通风管道时,应加设吊挂杆件,即在风管或设备两侧用吊杆固定角铁或槽钢等钢性材料作为横担,跨过梁或者风管设备。再将龙骨吊杆用螺

4、栓固定在横担上形成跨越结构,吊杆距主龙骨端部距离不得超过300mm,否则应增加吊杆。吊顶灯具、风口及检修口等应设附加次龙骨及吊杆。3、安装主龙骨:主龙骨应吊挂在吊杆上,主龙骨间距100Orm1,CB60主龙骨宜平行房间长向安装,同时应适当起拱,当面积V50m?时一般按房间短向跨度的1%3%。起拱,当面积大于50m,时一般按房间短向跨度的3%。5%。起拱。主龙骨的悬臂段不应大于300rM11o否则应增加吊杆。主龙骨的接头应采取专用连接件连接,相邻龙骨的对接接头要相互错开。主龙骨挂好后应调平。跨度大于15m以上的吊顶,应在主龙骨上,每隔15m加一道大龙骨,并垂直主龙骨焊接牢固。4、安装副龙骨:本工

5、程副龙骨为50副龙骨,吊顶均为双层9.5mm石膏板,副龙骨间距为400m,用T型镀锌铁片连接件把次龙骨固定在主龙骨上,次龙骨的两端应插入U型边龙骨的槽内。次龙骨不得搭接。在通风、水电等洞口周围应设附加龙骨,附加龙骨的连接用拉挪钉锚固。5、石膏板安装:石膏板应在自由状态下固定,防止出现弯棱、凸鼓的现象;还应在房间具备封闭的条件下安装固定,防止板面受潮变形。纸面石膏板的长边(既包封边)应沿纵向副龙骨铺设,卫生间、开水房区域采用防水石膏板吊顶,其余区域采用普通纸面石膏板吊顶。自攻螺丝的规格要求及固定要求:自攻螺钉选用253.5mm,自攻螺丝与板边(纸面石膏板既包封边)的距离,以10rrni-15rn

6、为宜,切割的板边以15rM11-20fTM11为宜。自攻螺丝钉中距不超过300mm,螺钉应与板面垂直,已弯曲、变形的螺钉应剔除,并在离原钉位50mm处另安螺钉。板的接缝,应按设计要求进行处理,留3mm-5mm缝。石膏板与龙骨固定时,应从一块板的中间向板的四边进行固定,不得多点同时作业。阴角处采用整板L型裁切防止开裂。螺丝钉头宜略埋入板面,但不得损坏纸面,钉眼应做防锈处理并用石膏腻子抹平。拌制石膏腻子时,必须用清洁水和清洁容器。(1)第一遍底层涂料:第一遍底层涂料涂刷前必须将基层表面清理干净,涂刷时宜用排笔,涂刷顺序一般是从上到下,从左到右,先横后竖,先边线、棱角、小面后大面。阴角处不的有残余涂料,阳角不得裹棱。(2)复补腻子:第一遍底层涂料干后,应普遍检查一遍,如局部有缺陷应局部复补涂料腻子一遍,并用牛角刮刀刮抹,以免损伤涂料漆膜。(3)磨平:复补腻子干透后,应用细砂纸浆将涂料面打磨平滑,注意用力轻而匀,且不得磨穿漆膜,磨后将表面清扫干净。(4)第二遍底层涂料涂刷及磨光方法同第一遍。(5)第一遍面层涂料:其涂刷顺序和第一遍底层涂料相同,要求表面更美观细腻,必须使用排笔涂刷。大面积涂刷时应多人配合流水作业,互相衔接。(6)第二遍面层涂料涂刷方法同第一遍。

展开阅读全文
相关资源
猜你喜欢
相关搜索

当前位置:首页 > 建筑/环境 > 设计及方案

copyright@ 2008-2023 1wenmi网站版权所有

经营许可证编号:宁ICP备2022001189号-1

本站为文档C2C交易模式,即用户上传的文档直接被用户下载,本站只是中间服务平台,本站所有文档下载所得的收益归上传人(含作者)所有。第壹文秘仅提供信息存储空间,仅对用户上传内容的表现方式做保护处理,对上载内容本身不做任何修改或编辑。若文档所含内容侵犯了您的版权或隐私,请立即通知第壹文秘网,我们立即给予删除!