2019年04月自学考试05667《数控系统维护及调试》试题.docx

上传人:p** 文档编号:652036 上传时间:2024-01-02 格式:DOCX 页数:3 大小:40.73KB
下载 相关 举报
2019年04月自学考试05667《数控系统维护及调试》试题.docx_第1页
第1页 / 共3页
2019年04月自学考试05667《数控系统维护及调试》试题.docx_第2页
第2页 / 共3页
2019年04月自学考试05667《数控系统维护及调试》试题.docx_第3页
第3页 / 共3页
亲,该文档总共3页,全部预览完了,如果喜欢就下载吧!
资源描述

《2019年04月自学考试05667《数控系统维护及调试》试题.docx》由会员分享,可在线阅读,更多相关《2019年04月自学考试05667《数控系统维护及调试》试题.docx(3页珍藏版)》请在第壹文秘上搜索。

1、2019年4月高等教育自学考试数控系统维护及调试试题课程代码:05667一、单项选择题1 .CNC系统的控制软件融汇了当今计算机软件技术中的许多先进技术,但不包括A.实时通信B.多任务并行处理C.前后台软件结构D.中断型软件结构2 .FANUC数控系统中,SVM代表的含义是A.电源模块B.主轴模块C.伺服模块D.检测模块3 .在机床电气图中,符号“一”代表的含义是A.常开手动开关B.常闭触点C.常开触点D.常开按钮开关4 .在FANUC数控系统中,可以显示坐标信息的功能键是A.SYSTEMB.POSC.MESSAGED.PROG5 .下列选项不属于多微处理器CNC装置基本功能模块的是A.管理模

2、块B.通信模块C.插补模块D.存储器模块6 .数控系统和机床本体之间的电传动联系环节是A.数控装置B.控制介质C.输入输出D.伺服装置7 .FANUC数控系统设定伺服电机旋转方向的参数号是A.2020B.1820C.2000D.20238 .数控机床开机后都要进行回参考点操作,其目的是建立A.工件坐标系B.机床坐标系C.编程坐标系D.绝对坐标系9 .测量反馈装置的作用是A.提高机床的寿命B.提高机床加工效率C.提高机床的定位与加工精度D.提高机床的灵活性与安全性10 .数控机床故障诊断的一般步骤不包括A.故障现象的详细记录B.故障发生的操作方式及内容C.故障部分拆机查看D.报警号及故隙指示灯的

3、显示内容11 .数控机床最具有机床精度特征的一项指标是A.机床运动精度B.机床的定位精度C.机床的传动精度D.机床的几何精度12 .CNC装置的输入、I/O处理、显示和诊断等属于A.输入输出功能B.控制功能C.数据预处理功能D.管理功能二、填空题13 .为了说明电气手册上各种线缆的走向,以及各线缆在电气图中所处的位置,而开列的一种表格叫做O14 .规定数控机床坐标轴及运动方向采用的标准是o15 .CNC系统软件由管理软件和组成。16 .数控机床的最高移动速度、跟踪精度、定位精度及重更定位精度等重要指标,均直接取决于的静态和动态特性。17 .步进电机的转速与成正比。18 .某光栅k=100条/m

4、m,如果调整角为O.OOlrad,则莫尔条纹的纹距W=mm。19 .数控机床主轴准停装置分为机械控制和o20 .当CNC与机床组合在一起之后,为了最大限度地发挥CNC机床的功能而设定的值叫做。21 .数控机床信号线电缆分开走线是指每组间的电缆间隔要在Cm以上。22 .感应同步器是一种的检测传感器,用于直线位移的测量。(填机械式、电磁式、光电式)23 .数控机床开启主轴正转的指令是024 .一种专为在工业环境下应用而设计的、进行数字运算操作、用以解决工业设备逻辑关系与开关量控制的电子系统称之为O三、名词解释题25 .接口26 .CNC系统27 .故障诊断专家系统28 .译码四、简答题29 .简述

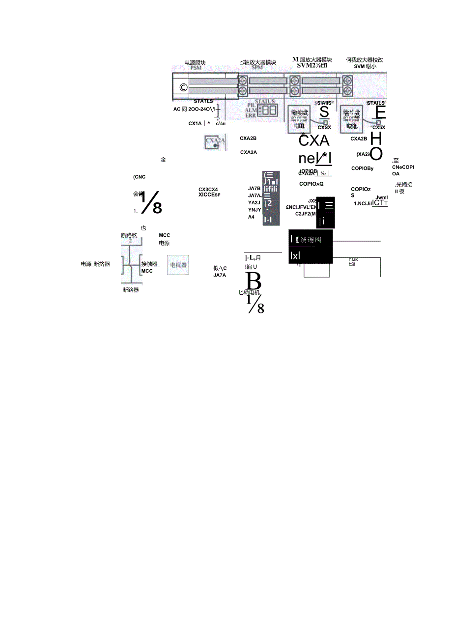
5、数控系统故障自诊断技术的原理及运行机制。30 .简述数控机床强电部分包含的内容。31 .简述数控系统故障发生的部位及分类形式。32 .简述PLC在数控机床中的功能。33 .简述数控机床主传动变速的配置形式。五、综合应用题34 .某数控机床开机后,机床回不了参考点,试分析其可能存在的故障原因及排除方法。35 .下图所示为FANUCai系列伺服模块的连接电气原理,请补充完整。(急停信号的连接,PSM/SPM/SVM之间的连接,伺服模块与电机之间的连接)金(CNC会停1.也M服放火器模块SVM2ffi匕轴放火器模块电源膜块CXSXCXA2B何我放大器校改SVM谢小CX5X名”式KMS取池维封式Ill池STATLSAC同2OO-24OI,CX1AcCXA2ASIAIlSSCXAneI*ICA2A-CX3CX4XICCEspJ7BJ7JY2JYNJY4(三J1IIifili三2;I-I(OPIOBCOPIOaQJXSNCIJFVLENC2JF2(M)I三iSTAILSECXA2B(XA2HOCOPIOByCOPIOzSJwml1.NCiJiIICTt,至CNeCOPIOA,光幡接II板断路熬电源_断挤器断路器MCC电源I【演谢阀Ixl接触器_MCC似CJA7A-L,月!编UBt71T同股电机-MIKHOi匕输电机

展开阅读全文
相关资源
猜你喜欢
相关搜索

当前位置:首页 > 汽车/机械/制造 > 数控机床

copyright@ 2008-2023 1wenmi网站版权所有

经营许可证编号:宁ICP备2022001189号-1

本站为文档C2C交易模式,即用户上传的文档直接被用户下载,本站只是中间服务平台,本站所有文档下载所得的收益归上传人(含作者)所有。第壹文秘仅提供信息存储空间,仅对用户上传内容的表现方式做保护处理,对上载内容本身不做任何修改或编辑。若文档所含内容侵犯了您的版权或隐私,请立即通知第壹文秘网,我们立即给予删除!