工程图学(含CAD)第3阶段练习题.docx

上传人:p** 文档编号:766262 上传时间:2024-02-26 格式:DOCX 页数:3 大小:118.80KB
下载 相关 举报
工程图学(含CAD)第3阶段练习题.docx_第1页
第1页 / 共3页
工程图学(含CAD)第3阶段练习题.docx_第2页
第2页 / 共3页
工程图学(含CAD)第3阶段练习题.docx_第3页
第3页 / 共3页
亲,该文档总共3页,全部预览完了,如果喜欢就下载吧!
资源描述

《工程图学(含CAD)第3阶段练习题.docx》由会员分享,可在线阅读,更多相关《工程图学(含CAD)第3阶段练习题.docx(3页珍藏版)》请在第壹文秘上搜索。

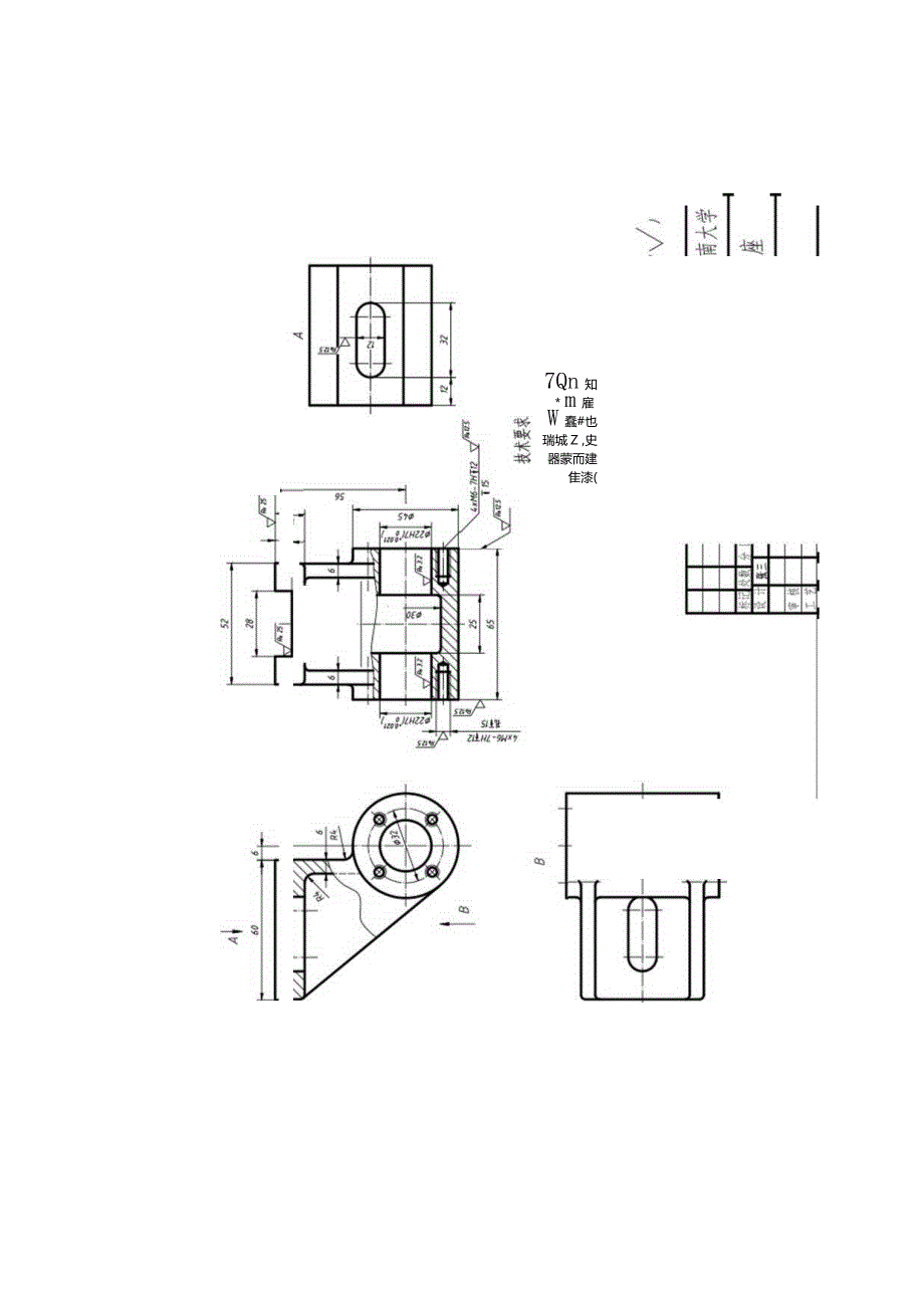
第三阶段练习题考试科目:工程图学(含CAD)第十章(总分100分)学习中心(教学点)批次:层次:专业:学号:身份证号:姓名:得分:一、综合题(本题共3小题,第1小题70分,第2小题12分,第3小题18分,共100分。)1、利用AUtoCAD软件,选择A3.dwt模板图,新建图形文件,按1:1比例,绘制如图所示的支座零件图(包括视图、尺寸、技术要求、标题栏)。2、所给零件图尚未注全表面粗糙度要求,请在绘制的支座零件图中,标注所缺的6个表面粗糙度代号。相关的各表面的表面粗糙度要求见下表。表面Ra(m)045圆柱前后两端面12.5W022H7C产5孔雕面3.2顶板顶面25前侧4XM6-7H螺纹孔表面12.5其余不进行切削加工3、画出其B向仰视图外形图(虚线省略不画)。播71172T技术要求,铜*除有砂丸夏纹等快做2曾批触3.未注囱角M2.阶段标记Il比例共张翁张HT200全江南大学支座7Qn知* m雇W蠢#也瑞城Z ,史器蒙而建隹漆(

展开阅读全文
相关资源
猜你喜欢
相关搜索

当前位置:首页 > 高等教育 > 习题/试题

copyright@ 2008-2023 1wenmi网站版权所有

经营许可证编号:宁ICP备2022001189号-1

本站为文档C2C交易模式,即用户上传的文档直接被用户下载,本站只是中间服务平台,本站所有文档下载所得的收益归上传人(含作者)所有。第壹文秘仅提供信息存储空间,仅对用户上传内容的表现方式做保护处理,对上载内容本身不做任何修改或编辑。若文档所含内容侵犯了您的版权或隐私,请立即通知第壹文秘网,我们立即给予删除!