斜拉桥主塔及主梁施工方案.docx

上传人:p** 文档编号:787250 上传时间:2024-03-01 格式:DOCX 页数:35 大小:385.81KB
下载 相关 举报
斜拉桥主塔及主梁施工方案.docx_第1页
第1页 / 共35页
斜拉桥主塔及主梁施工方案.docx_第2页
第2页 / 共35页
斜拉桥主塔及主梁施工方案.docx_第3页
第3页 / 共35页
斜拉桥主塔及主梁施工方案.docx_第4页
第4页 / 共35页
斜拉桥主塔及主梁施工方案.docx_第5页
第5页 / 共35页
斜拉桥主塔及主梁施工方案.docx_第6页
第6页 / 共35页
斜拉桥主塔及主梁施工方案.docx_第7页
第7页 / 共35页
斜拉桥主塔及主梁施工方案.docx_第8页
第8页 / 共35页
斜拉桥主塔及主梁施工方案.docx_第9页
第9页 / 共35页
斜拉桥主塔及主梁施工方案.docx_第10页
第10页 / 共35页
亲,该文档总共35页,到这儿已超出免费预览范围,如果喜欢就下载吧!
资源描述

《斜拉桥主塔及主梁施工方案.docx》由会员分享,可在线阅读,更多相关《斜拉桥主塔及主梁施工方案.docx(35页珍藏版)》请在第壹文秘上搜索。

1、斜拉桥主塔及主梁施工方案2.10主塔施工2.10.1 主塔施工综述主塔为独柱塔,承台以上塔高100.96m,桥面以上塔高为72.7m。主塔为单箱单室截面,纵桥向宽度在桥面以上15m高范围内从下向上由7.6m渐变至6.6m,然后由6.6m等宽至塔顶,塔柱横向宽度均为3.5mo塔墩为实体双薄壁墩,横桥向等宽为13m,纵桥向等厚为1.5m,双壁之间净距4.6m。主塔截面尺寸如下:上塔柱纵桥向壁厚一般为1.3m,在塔底15m高范围内渐变至1.8m,横桥向壁厚由上塔柱0.6m经4m高渐变至下塔柱0.85mo主塔上塔柱斜索锚固区截面设“井”形预应力加强,采用抗拉强度标准值750MPa、32mm精轧螺纹预应

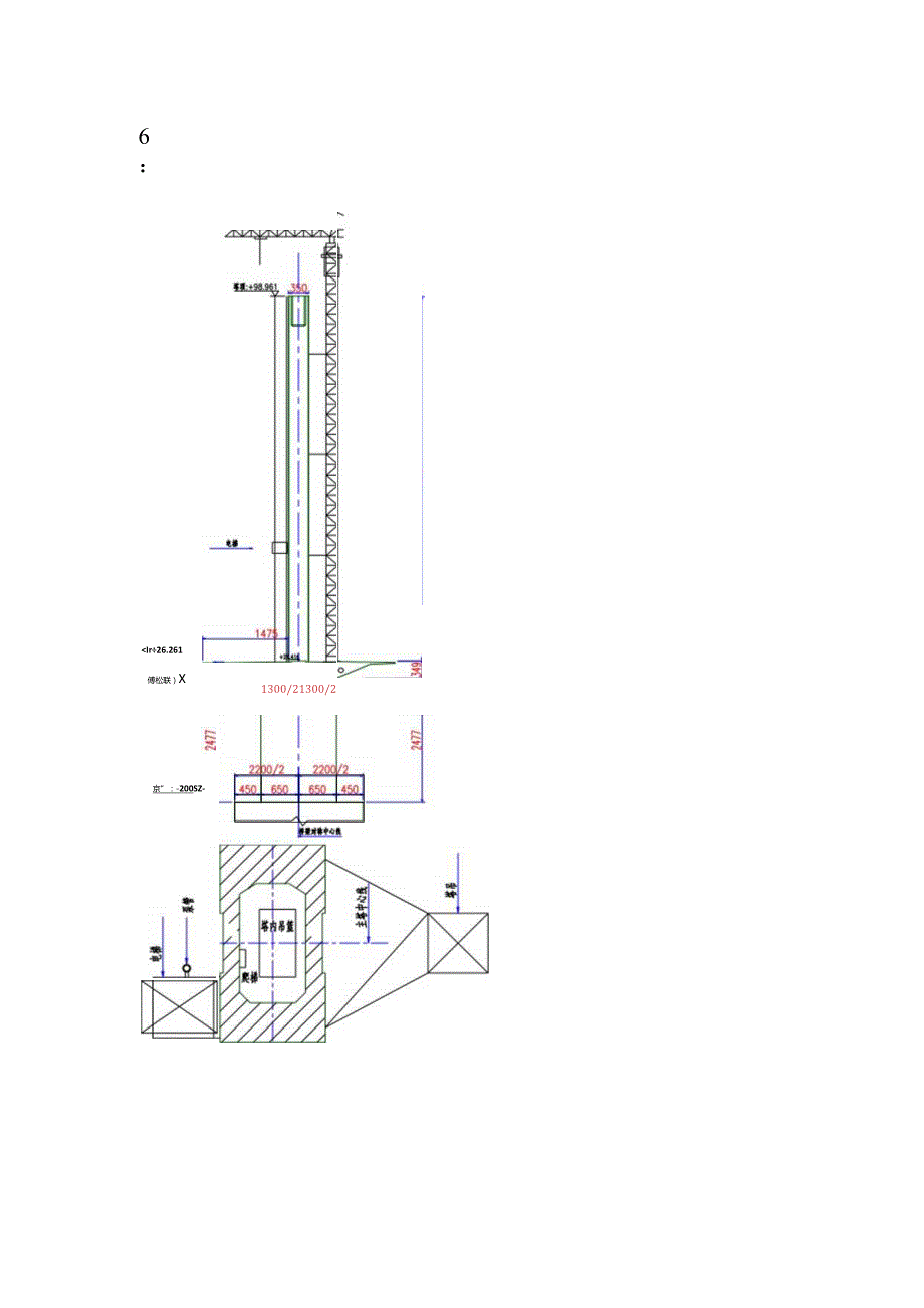
2、力粗钢筋,在塔柱纵、横桥向每侧塔壁分别布置为2排、34排。具体形式如图5:图5主塔构造示意图2.10.2 主要施工设备配置考虑主塔的高度、垂直运输及施工空间等因素,每个塔柱施工配备1台塔吊、1台电梯、1套塔柱模板。塔吊采用JL7034型,布置在塔柱侧面;另一侧面则安装施工人员上、下的电梯。混凝土生产采用在拌合站集中拌合。混凝土水平运输采用混凝土运输车,垂直运输采用混凝土输送泵,每个塔柱各设置一道管道,泵管设置在施工电梯附着装置旁边,以便于接管、拆管和采用降温、保温措施,处理堵管、爆管事故也方便。主要施工设备布置如图6:Ir26.261傅松联)X1300/21300/2京”:-200SZ-图6塔

3、吊、电梯布置示意图2.10.3 主塔塔柱施工塔柱采用翻模法施工,投入塔柱模板2套,每套模板总长GOm,共分4节段,每节段长1.5m,一次浇注高度4.5m。主梁以上塔柱首节段施工的同时,在BO主梁上面安装塔吊,塔柱往上接高施工时,采用塔吊完成所有起重施工。2.10.3.1 塔吊安装主梁BO节段碎浇筑完后,用履带吊将塔吊基座吊装,与主梁塔吊预埋件连成整体,依次拼装塔吊各部位组件。2.10.3.2 钢筋安装凿毛上主梁BO塔柱位置碎表面,安装劲性骨架。钢筋安装前,在劲性骨架上安装主筋定位框(定位框上已按主筋间距放样并注标识)连接塔柱预埋筋与塔柱主筋,并同时在钢筋定位框上对位绑扎。主筋安装高度超过8m时

4、设置两层定位框,小于8m时设置一层定位框(定位框材料采用N63角钢或32螺纹钢制作),以确保塔柱主筋间距位置的准确和各向钢筋平面的平整及顺直,避免由钢筋引起的模板安装障碍。竖向主钢筋采用机械连接器连接,接头强度要求不低于钢筋母材强度。2.10.3.3 预埋件施工塔柱结构设计预埋件(主塔内外照明、动力线、航标灯架、塔顶避雷针及飞机障碍灯架等)按设计要求预埋。所有预埋件在结构钢筋安装完毕后按设计要求通过定位骨架固定在指定位置,需要进行下一步连接的预埋件紧靠模板安装,以便拆模后方便下一工序的施工。2.10.3.4 锚固区斜拉索钢套筒安装斜拉索钢套筒安装采用逼近法,测量定位控制采用三维坐标法。2.10

5、.3.5 模板制作及安装塔柱共制作2套高GOm模板,模板设计以刚度、强度为主,面板平整度Wlmm,挠度WImm。钢制模板为了墩的美观、平整,拟定不采用对拉杆方式控制模板变形和抵抗碎侧压力,模板骨架采用型钢桁架片,由其构成空间格构形式,加大模板刚度。模板构造如图3-7所示:图3-7模板构造图(1)模板制作模板采用工厂加工。(2)模板安装在施工放样完成后,模板先安装立面后安装侧面,立面精确控制到位后再安装侧面模板,在进行精调。首节浇筑碎模板安装高度为4.5m,其后安装高度为4.5m,模板总高度为6.0m。每完成一次硅浇筑,翻转安装4.5m模板留1.5m模板作为翻转模板的承重支撑结构。模板测调采用三

6、维坐标法控制测量,安装前测定模板纵横轴线位置,安装后测量安装精度,浇筑碎前,进行模板校核测量。不符合施工控制要求时重新调整模板后,才能进行碎浇筑工序。2.10.3.6 碎浇筑索塔碎采用两台拌和楼拌和,由碎运输车运送至墩旁,由HBT60C卧泵泵送入模,泵管顺塔旁塔吊安装布设,插入式振捣器振捣的办法浇筑。塔柱碎每次浇筑高度为4.5m,每次模板安装前凿毛碎顶面;浇筑时分层进行,分层厚度30cm,沿水平方向逐渐推进。使用插入式振捣器振捣碎时需慢插慢拔,要垂直插入碎中,并插至前一层浇筑碎,振捣棒插入部位与钢筋、模板保持一定距离,以免损伤结构影响施工质量。严禁用振捣棒拖曳碎,振捣棒移动间距不得超过有效振动

7、半径的1.5倍。布料时,碎自由落体高度不超过2m,超过2m设置串筒布料。2.10.3.7 斜拉索锚固区预应力的施工塔柱斜拉索锚固区精轧螺纹预应力粗钢筋采用后张法张拉施工,塔柱施工周期8天,张拉工作随塔柱施工落后完成,预应力施工实施一端张拉工序。预应力束管道压桨采用活塞式压浆泵压浆工艺。锚头封锚采用锚头盖帽。(1)预应力管道安装波纹管安装采用钢筋定位支架控制平面分布及竖向位置。(2)预应力粗钢筋穿束粗钢筋在每节段钢筋安装时同时完成,利用爬架操作层作为穿束平台,每根粗钢筋根据具体位置计算下料,下料采用切割机切割、束端平面平整。(3)预应力粗钢筋张拉考虑塔柱碎浇筑的进度与塔柱施工周期,张拉工作在模板

8、拆除后。碎强度达到设计张拉值时进行。预应力粗钢筋按一端锚固、一端张拉,采用YG-70穿心式单作用千斤顶进行张拉。张拉端与锚固端在相邻索区应反向布置。同一层预应力钢筋张拉按顺序依次对称进行张拉,(4)预应力管道压桨压浆随预应力张拉工序紧后进行施工。水泥浆搅拌及压浆设备,均布设于塔上,由高压输浆管输浆于施工位置。(5)封锚及浆渍处理预应力钢筋张拉及压浆完毕后,将高处螺母4cm以上部分的预应力钢筋用砂轮切割掉,张拉槽用碎封锚。溅落在塔柱上的水泥浆在封锚的同时进行水洗、冲刷,保持地塔柱表面的清洁和美观。2.1038索塔的施工测量放样(1)索塔测量放样的主要误差要求表3-12索塔放样误差控制范围数据表索

9、塔倾斜度断面尺轴线偏斜拉索锚预埋件位寸位固点高程置H1/3000,且不大于30mm20mmIOmmIOmm5mm(2)索塔测量放样的主要方法索塔测量放样的主要方法是“全站仪三维坐标法”,即在岸上控制点上架设仪器,直接测量索塔上测点的三维坐标X、Y和高程H,然后将测量值与对应点的设计值比较,计算出二者的差值,再将点位移至设计位置。由于“全站仪三维坐标法”对仪器依赖太大,所以要用常规的经纬仪交会法和水准测量分别对平面点位和高程进行校核。(3)索塔劲性骨架的施工放样在已安装完的劲性骨架上焊一块小角钢作定向装置,将加工成型的劲性骨架块件吊装就位并使上下节劲性骨架上下对中,用吊垂球的办法控制劲性骨架的垂

10、直度,然后用全站仪三维坐标法测量其顶部三维坐标,平面坐标X、Y和高程H,根据测量坐标与设计坐标的差值调整劲性骨架到位并将其连接焊牢。(4)钢筋放样钢筋安装时先利用劲性骨架作定位架,安装竖向主钢筋,在定位钢筋上用钢卷尺按照设计位置对竖向主钢筋进行测量放样并进行“粗定位”,然后在竖向主钢筋上用钢卷尺放样,安装水平构造钢筋,待模板安装完成后,再利用模板对钢筋进行“精定位”,调整好钢筋保护层。(5)索塔空间位置的控制及模板放样主塔空间位置的控制主要是对影响碎成型的钢模板的位置控制。控制测量方法:在模板的顶面选取其角点作为测量放样的定位点,用全站仪三维坐标法在岸边的控制点上先测量各定位点坐标X、Y和高程

11、H,然后根据各点高程H、塔柱倾斜度及主塔结构尺寸计算各点设计坐标X,、YL则各点实测坐标X、Y与其设计坐标X、Y的差值即为模板的调整量,据此可以校正模板至设计位置,以保证塔柱的正确空间位置。(6)塔柱内斜拉索钢套筒的定位测量斜拉索钢套筒定位的关键是保证锚固中心点的空间位置及钢套筒的方向正确。否则斜拉索将与钢套筒发生磨擦,损坏斜拉索。为了防止碎堵塞拉索钢套筒以及方便全站仪棱镜杆定点,套筒定位前需将钢套筒两端用薄钢板封口,以后再割开。放样时,只要保证斜拉索钢套筒上端中心点(锚固中心点)与下端中心点同时达到各自设计坐标与高程,则索管已达其设计位置。于是用全站仪三维坐标法先测得斜拉索钢套筒上、下端中心

12、点的坐标和高程,比照设计值后,计算出调整量。根据调整量就可以利用千斤顶、导链滑车等微动设备移动斜拉索钢套筒至正确位置,再将其焊接在劲性骨架上。往往这样的测量、计算、调整需进行多次,逐渐趋近,直到达到设计要求为至。在实际工作中,拉索钢套筒下端中心点由于处在垂直面上,无法直接立全站仪棱镜杆,可在其旁焊一块小钢板用于立棱镜杆,计算时加一改正量即可。斜拉索每个钢套筒长度、偏角等均不同,必须按各自要素进行编号制造,按编号对位安装,制造时两端不得有切割的锋口,并要预先涂装防锈油漆。(7)索塔基础的沉降观测由于索塔基础地质情况比较复杂,岩基在基础、塔身、上部结构自重荷载及运营荷载等作用下可能产生沉降,所以在

13、施工过程中和以后运营中均需对其进行监测,为此设计在中塔柱上设置永久沉降观测点。为便于以后长期观测,观测点的高度与主梁平齐,在上、下游塔柱的两侧分别设1个共4个。塔柱碎浇筑前预埋圆头钏钉用作永久沉降观测点。观测方法:首先按照二等水准测量规范的要求,用两台J2型经纬仪采用电磁波测距、对向观测、三角高程测量高差的方法,进行跨河水准测量,将岸上水准点的高程引至下横梁处的水准点上,再用二等水准测量联测各沉降观测点,得到各变形点的高程。主塔施工过程定期对变形点的高程进行观测,最终一次的观测值与第一次测量值之差即为主塔的沉降变形量。(8)索塔挠度的变形观测在索塔建设过程中,由于索塔受风力、日照等外界环境因素

14、的影响而产生挠度变形。随着索塔高度的增加,挠度变形的幅度也急剧增大。只有准确地掌握索塔摆动和扭转的规律,才能有效地指导施工和相应的施工测量工作。另外,在主梁施工过程中,由于施工原因,致使索塔两侧斜拉索受力不平衡,从而使索塔在顺桥向产生一定的偏移。为了将这种变形限制在一定范围内,不致于使其危及索塔安全,需对此变形进行观测。为了较准确地反映索塔各个位置的变形情况,在监控单位布置位置布设变形观测点。变形观测的周期,在工程施工阶段,根据影响索塔受力变化的具体工况而定(如主梁施工、斜拉索的张拉等);工程竣工并进入运营后,应定期观测。索塔挠度变形观测的方法:采用全站仪极坐标法进行观测,在岸上工作基点上安置

15、好仪器,输入测站点坐标并配置起始方位角后,只要一次照准反射棱镜,仪器即可测出方位角和距离,计算并显示变形点的坐标。将测量结果与变形点第一次测量的坐标比较,就得出变形点的二维偏移量。为保证精度,观测要进行一个测回。为提高测量精度,用全站仪极坐标法观测时始终在同一控制点上设站,后视方向也始终为同一方向,这样各控制点间的误差不会影响测量精度。同时,工作基点和照准点上都采用强制对中装置。(9)索塔施工测量的主要技术要求索塔施工测量的控制基准点要经常复测,防止点位移动;温度、日照和风力对索塔的挠度变形影响较复杂,其对施工测量放样的影响值很难得知。所以对索塔各部位进行施工测量放样时,应选择温度相对稳定、风力较小、外界环境相对稳定的时段进行。同时,在晚8:OO至早上日出前的时间段对索塔进行定位检测。测量时间应相对固定,有可比性。由于索塔的不断增高和验收缩、徐变、沉降、风荷载、温度等因素影响,塔身必然会有少量的变化,所以在对索塔各部位的相关位置和变化点进行测量放样时,应避免误差的累积,保证索塔各断面尺寸达到设计要求。2.10.3.9 安全防护措施塔吊电梯在施工期间,固定设置航空、航运障碍灯;施工用电均

展开阅读全文
相关资源
猜你喜欢
相关搜索

当前位置:首页 > 建筑/环境 > 设计及方案

copyright@ 2008-2023 1wenmi网站版权所有

经营许可证编号:宁ICP备2022001189号-1

本站为文档C2C交易模式,即用户上传的文档直接被用户下载,本站只是中间服务平台,本站所有文档下载所得的收益归上传人(含作者)所有。第壹文秘仅提供信息存储空间,仅对用户上传内容的表现方式做保护处理,对上载内容本身不做任何修改或编辑。若文档所含内容侵犯了您的版权或隐私,请立即通知第壹文秘网,我们立即给予删除!