黑牛城道新八大里地区配套地下工程七里东侧下沉广场(地上)总平面图.docx

上传人:p** 文档编号:924096 上传时间:2024-04-07 格式:DOCX 页数:1 大小:64.47KB
下载 相关 举报
黑牛城道新八大里地区配套地下工程七里东侧下沉广场(地上)总平面图.docx_第1页
第1页 / 共1页
亲,该文档总共1页,全部预览完了,如果喜欢就下载吧!
资源描述

《黑牛城道新八大里地区配套地下工程七里东侧下沉广场(地上)总平面图.docx》由会员分享,可在线阅读,更多相关《黑牛城道新八大里地区配套地下工程七里东侧下沉广场(地上)总平面图.docx(1页珍藏版)》请在第壹文秘上搜索。

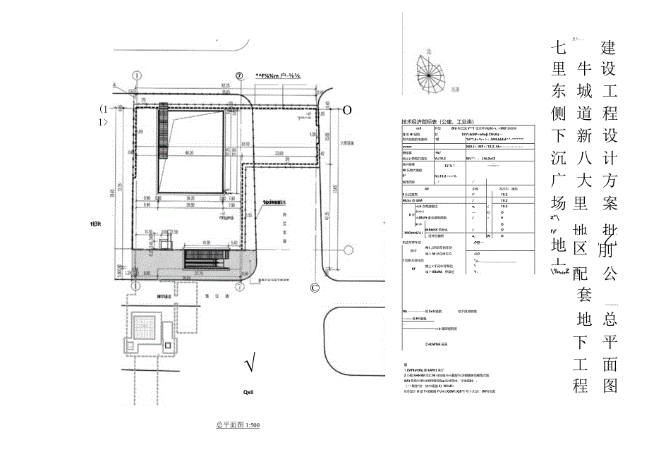
tlltOtxia11.步BTUQxiI(11*Fm户-,总平面图1:500技术经济指标表(公建、工业类)mil外位Blti标己浅V*1本次申itUllMG*余标林Q用HI因取甘ll37l.6(MFb9.CfttJk)一界内独我的电曲探理1371.6卜:JW8.blifeI-*awwX60.J10.2h褥粗寡-W/地上计再短只胤松V10.2WI/*;:【ItL2w!Z独只容度、WN_一二一W氏物代南粗0*N10.2城用而较,/4Il中他本次中,搐标0比过赢取I110.2MLha旅IUM/10.2Lit亦葭旗曲也,10.2X中共中I一石OIJBUft拿寺建等再飘/0K中OMKIttttU!MRttHS筑而也/O。经停性馥根,WO机动车停车位/N0一其中MI上网叨年俗年贷地卜M动车修车位IO1即黔车停车他*乂。Kf飨上r叽动半停孥位*;埃卜8BUM、停禁位*I;_Wt地EnS械戳.地下用地恕璐地Hl蛔魁-Ir建即削到迸【bWfeE三三硼1.JSffltettRq度kAfttt来计.2小殿hHH3年比M任如偷蠢般h注蝴犍曲忸蝴角次瓯&St筑场!沙林力顿将憎谅珈;生林带出;寸地域触:;(联独*汾:依巾炀幽.3)Wft.&本设计U型T域敝脚l*Q0WQ8*1与卜大沽(M也发七里八、建里牛设东城工侧道程下新设沉八计广大方场里案z*rlr地批地区J乙刖上IeZ配公套地总下平工面程图

展开阅读全文
相关资源
猜你喜欢
相关搜索

当前位置:首页 > 建筑/环境 > 市政工程

copyright@ 2008-2023 1wenmi网站版权所有

经营许可证编号:宁ICP备2022001189号-1

本站为文档C2C交易模式,即用户上传的文档直接被用户下载,本站只是中间服务平台,本站所有文档下载所得的收益归上传人(含作者)所有。第壹文秘仅提供信息存储空间,仅对用户上传内容的表现方式做保护处理,对上载内容本身不做任何修改或编辑。若文档所含内容侵犯了您的版权或隐私,请立即通知第壹文秘网,我们立即给予删除!