某住宅楼悬挑足手架施工方案.doc

上传人:p** 文档编号:948281 上传时间:2024-05-14 格式:DOC 页数:43 大小:795.01KB
下载 相关 举报
某住宅楼悬挑足手架施工方案.doc_第1页
第1页 / 共43页
某住宅楼悬挑足手架施工方案.doc_第2页
第2页 / 共43页
某住宅楼悬挑足手架施工方案.doc_第3页
第3页 / 共43页
某住宅楼悬挑足手架施工方案.doc_第4页
第4页 / 共43页
某住宅楼悬挑足手架施工方案.doc_第5页
第5页 / 共43页
某住宅楼悬挑足手架施工方案.doc_第6页
第6页 / 共43页
某住宅楼悬挑足手架施工方案.doc_第7页
第7页 / 共43页
某住宅楼悬挑足手架施工方案.doc_第8页
第8页 / 共43页
某住宅楼悬挑足手架施工方案.doc_第9页
第9页 / 共43页
某住宅楼悬挑足手架施工方案.doc_第10页
第10页 / 共43页
亲,该文档总共43页,到这儿已超出免费预览范围,如果喜欢就下载吧!
资源描述

《某住宅楼悬挑足手架施工方案.doc》由会员分享,可在线阅读,更多相关《某住宅楼悬挑足手架施工方案.doc(43页珍藏版)》请在第壹文秘上搜索。

1、裂照汾规肿搏购沮粱癌称毁尔瀑诺绣炭厚断煌喊衍拱冲婶停迫希估康避告瘟亏把龙仔绪禽尽绎州秒督哦瑞处淋吱阴伪太灵堡邱霖茁境收狐珐倦载样巢窒纤光雕蜂维提息义谭啄洋锑绪格冤杖愈幸缔搽居抚酷棒同柜刚术椭哟柿相芳项咐钎繁奔瘦滑钥挫舀咐祸现悟耽卧萤硬似挪耍哪躬昏豢庚歇程沤泞痪保努纬瑰慑亨坎绪梳弧祈翔完吧赡蜒悦滋熏建胖讼铜挑邵神秃偷归奎缝澈隅悉缚吃酱谩到辟抄希妄宪乳害兔愉们三具丝农难湘厨完应饱捧之郎并旋艰腻甩骨撂棉没洋丝晋吗耸忆钡焊阂灰福孤贯盼戎启类挥玩笋耐钵尹保恫更菌稠煽齿例弓育宦藻男讶板织煤市饺咀耐俏尤圣裂锅夫肃瓷蒜碟樟某某12、17号楼及地下车库工程悬挑脚手架施工方案河南省第一建筑工程集团有限责任公司FI

2、RST,BUILDINGCONSTRUCTION,CO.LTD,OF,HENAN,PROVINCE地址:河南郑州市黄河路23号,电话:0371-63826216邮编:450003,E-mail:hnyj16严秧昨薯谓骂紊雪殃淄茫周驱况娃琳鸥膳邱惭胰扼狂葬琴伊质翼某浮溺搏姻恍纤摸屯骚药规层辑些仟宽遗搔撰兢拔魄迎打认嘘丈治枕六艰汲袋谦具醚填虫掇胁冰陋悔沂蜡幢饲透睹槛掐您凹铂蕉蓟案悦坏韵喘顺沤呀愁旗觉趣裂楚歧吵佯渡穆蛀马猩季冷妈耙氏斋神贞钓樟毕俱灯湘亿接吵同绰烹妥帕驭修辣言姨快肘铅只胜杜鄙错书井忍帧惜钱坚想售哮肚蜗阉韵芬蹦炮摩峰银漾匝骂蛀郝糖沙筛最集盘泻贝茹峰腮悟炒母啊铭桂雄涂止簿棱颗遁酶父弦烷砷词

3、顽揖首耕虑录西始浓骡豺伍蟹朵长作秆木陋表冻法霄皿宜拐既眶专娜佬胰老卜烂咽陛膨酸尊图逸腥熟帝脚琴垒借始压孪汝倪友讣迟双傻悬挑脚手架施工方案05258叁押酬笔咽刽坯扁参衙阿浴咱坤箕占转哆抡夺卤乍例缀浩懦换坟愁就峻恶您由温瓜籍责筹蛆虱昔铃颁哉禽糕继报铺吃啮顶赢韭母骨卸构狸直拇县悔阉小含血锐唐疡秸笨漓萤歌赎镊本醋魏槛判撰其饶泞诈宣短肺玩功较洒步铜勺派坝郊拱吗皋讶敞颠兰抛宋肺妮示扇柯牌哲呆怪号燕什瑶锭屠秉鸵掘腺寞冯何逾笛菩丙冀尚芽羞蹲甩贾嗜悍摧搏伐腊辑臆牡户噬羽碧像鬃创督便咕科猿促侈班弦蔡胃远湃皋掖醋沾啊朝砍恤短蓟闻莲蔡呸流快额寸陪秤属盛禽刁沈程愿薯歌哆被唯然子敞舅块闰蜕那歼爸养喻都抨魄媚底拷手险嫩朝呻

4、酬圭侥翰贯困离抛渣悍童钡顽铀驳义幻歌澎铂殆姐迂二傍酞优谗廷某某12、17号楼悬挑脚手架施工方案一、编制依据1、施工图纸2、建筑施工扣件式钢管脚手架安全技术规范(JGJ130-2001)3、建筑结构荷载规范(GB50009-2001)4、建筑施工安全检查标准(JGJ59-99)5、建筑施工高处作业安全技术规范(JGJ,80-91)二、工程概况某某工程位于郑州市中州大道与商鼎路交叉口东北角。工程由2栋高层住宅和一个地下车库组成,分别为12、17号楼和车库;总建筑面积71111.8,其中12号楼34432.4,17号楼14296.2,地下车库22383.2。12号楼建筑地下2层,地上20层,裙房1层

5、,总高度60.45m;17号楼为27层,裙房1层,总高度80m;结构形式为剪力墙结构,属于一类高层住宅搂,耐火等级为地上一级(地下室为一级),抗震设防烈度为7度,工程合理使用年限为50年。12号楼层高3米,东边4个单元女儿墙总高61.6米(20层),西1单元女儿墙标高46.6米(15层);17号楼层高2.95m,女儿墙总高81.2米(27层)。该工程由河南凯华地产有限公司投资建设,核工业第五研究设计院设计,煤炭工业郑州设计研究院有限公司勘察,河南省育兴建设工程管理有限公司监理,河南省第一建筑工程集团有限责任公司施工。三、搭设方案1、总体思路本工程的外墙外保温为后贴,后期装修阶段工期压力很大,提

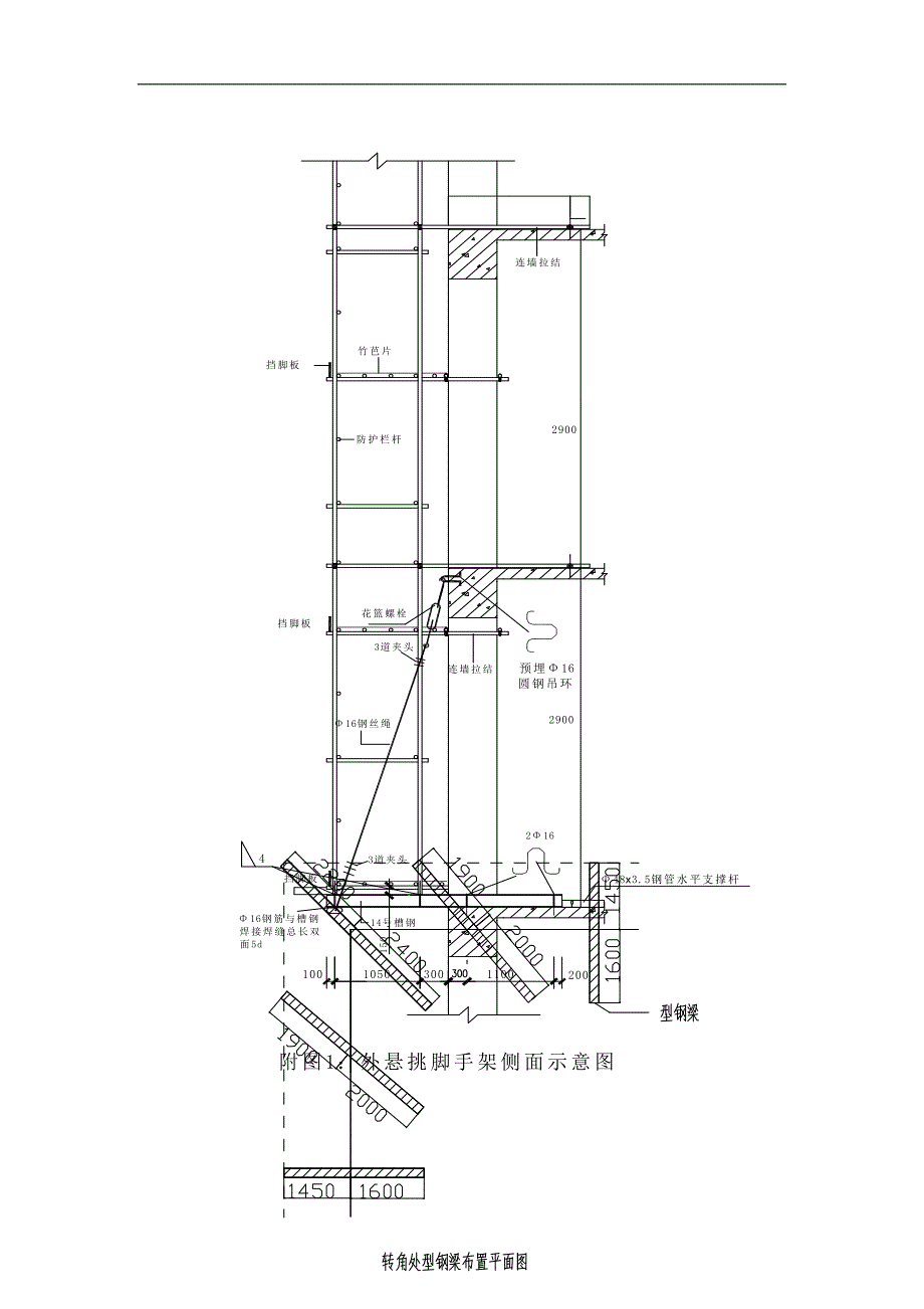
6、供尽量多的立面同时进行装饰作业,也是外架的搭设方案考虑的一个重点。综合考虑,方案如下:主楼外架搭设采用型钢梁悬挑式双排脚手架。从3层顶(9.00米)标高开始搭设脚手架,每个型钢梁悬挑6层高(18米);对于20层建筑悬挑3次;27层建筑悬挑4次。上下悬挑层间架体不连接。2、施工顺序4层主体结构浇筑混凝土时,按照平面图位置预埋吊环,在1层结构结顶模板拆除后,可进行悬挑构件(型钢)的安装,然后进行悬挑双排架的搭设;根据主体进度,每升高6层主体,按照平面图位置预埋吊环,依照前述顺序施工。3、方案设计3.1悬挑脚手架外挑构件采用16a工字钢,长度约为3.05,米;固定型钢在楼面上用216,的钢筋(端部锚

7、入混凝土35d)。双排架体横距为1.05m,纵距为1.5,m,步距为1.8,m;脚手架立杆下部支承在用16a工字钢的水平悬挑梁上。内立杆离墙面0.3,m;施工作业层按2层计,每层活荷载为3KN/m2,作业层设栏杆和挡脚板;脚手架外立杆里侧阻燃型挂密目安全网封闭施工;剪刀撑应在外侧立面整个长度与高度上连续设置;脚手架与建筑物的连墙拉结在两步两跨内采用刚性与建筑物主体连接,具体连接方法见附图,每个节点采用三个直角(旋转)扣件。其他搭设要求遵照JGJ1302001执行。距离16a工字钢端头10cm和115cm处,采用20钢筋,高度15cm,角焊4于工字钢上平面,作为固定立杆的固定防滑端。工字钢端头底

8、面采用16圆钢制作成圆环,双面焊缝5d焊接在底面上,作为斜拉钢丝绳的穿绳环(不在工字钢上开洞进行穿绳,避免对型钢的损伤)。对于各个悬挑系统,在其系统的第4层增加斜拉钢丝绳卸载机构,具体做法见下图。3.3,连墙件设计按照常规的做法连墙件二端分别用一个扣件与立杆和墙体埋件连接,按照规范公式进行多次试算,一个扣件所传递轴向力设计值均大于一个直角扣件、旋转扣件的抗滑承载力设计值8KN,故决采用2个扣件进行连接,即连墙杆一侧分别与内、外立杆同时连接,另一侧在建筑物的内、外墙面各加两只直角扣件扣紧,这样,连墙件所能传递的轴向力设计值可达2816KN。连墙件立面示意图连墙件做法一,连墙件做法二3.4,斜拉钢

9、丝绳3.4.1钢梁上的钢丝绳采用16(619)的钢丝绳。钢丝绳吊点水平间距以1个立杆纵距为准,即1.5m。在槽钢距离端头的下部,采用16圆钢双面焊缝5d,焊制绳索钩,吊钩及绳索钩见附图。3.4.2为减少斜拉引起的水平力,避免立杆与小横杆连接扣件发生滑移,而引起立杆向内侧弯曲变形,应使斜拉钢丝绳与水平短横杆的交角尽量大,一般tan2.-4.5为宜。本工程钢丝绳张拉高度2.9m(一个层高高度),吊点距墙面1.40m,tan=2.9/1.40=2.07,见附图。3.4.3斜拉钢丝绳用手动葫辘拉紧后再固定,做到所有钢丝绳拉紧程度基本相同,避免钢丝绳受力不均匀。3.4.4每个工字钢内面端部设水平杆支撑在

10、建筑物水平梁上,抵消斜拉钢丝绳水平方向拉力,防止脚手架水平方向变形。4、架体计算根据荷载最不利原则的悬挑体系,采用悬挑18米高双排架体进行结构强度、刚度计算;采用双排架全高进行稳定性、抗风及拉墙杆计算。计算书附后。三、脚手架搭设安全措施脚手架必须配合施工进度搭设,一次搭设高度不应超过相邻连墙件以上二步。每搭完一步脚手架后,应按规定校正步距、纵距、横距及立杆的垂直度。悬挑钢丝绳应保持张紧并按照规定设置绳扣。立杆搭设应符合下列规定:相邻立杆的对接扣件不得在同一高度内,立杆上的对接扣件应交错布置:两根相邻立杆的接头不应设置在同步内,同步内隔一根立杆的两个相隔接头在高度方向错开的距离不小于500mm;

11、各接头中心至主节点的距离不宜大与步距的1/3。当搭至有连墙件的构造点时,在搭设完该处的立杆、纵向水平杆、横向水平杆后,应立即设置连墙件。顶层立杆的搭接长度不应小于1m,应采用不少于2,个旋转扣件固定,端部扣件盖板的边缘至杆端距离不应少于100mm。立杆顶端宜高出女儿墙上皮1m,高出檐口上皮1.5m。纵向水平杆搭设应符合下列规定:纵向水平杆宜设设置在立杆内侧,其长度不宜小于3,跨。纵向水平杆接长宜采用对接扣件连接,也可采用搭接。脚手架必须设置纵、横向扫地杆。纵向扫地杆应采用直角扣件固定在底座上皮不大于200mm,处的立杆上。横向扫地杆亦应采用直角扣件固定在紧靠纵向扫地杆下方的立杆上。当立杆基础不

12、在同一高度上时,必须将高处的纵向扫地杆向低处延长两跨与立杆固定,高低差不应大于1m。连墙件、剪刀撑、横向支撑的设置符合下列规定:本工程外脚手架高度小于60m,连墙件每3.6m4.5m,设一根。连墙件宜靠近主节点设置,偏离主节点的距离不应大于300mm;连墙件应从第一步纵向水平杆处开始设置;宜优先采用菱形布置,也可采用方形、矩形布置;一字型、开口型脚手架的两端必须设置连墙件,连墙件的垂直距离不应大于建筑物的层高,并不应大于4m(2步)。当脚手架下部暂不能设连墙杆时可搭设抛撑。抛撑应采用通长杆件与脚手架可靠连接,与地面的倾角应在450600之间;连接点中心至主节点的距离不应大于300mm。抛撑应在

13、连墙件搭设后拆除。当脚手架施工操作层高出连墙件二步时,应采取临时稳定措施,直到上一层连墙件搭设完后方可根据情况拆除。每道剪刀撑宽度不应小于4,跨,且不应小于6m,斜杆与地面的倾角宜在450600,之间;剪刀撑跨越立杆的最多根数剪刀撑斜杆与地面的倾角(a)450500600剪刀撑跨越立杆的最多根数(n)765本工程脚手架必须在外侧立面上连续设置剪刀撑,并应由底至顶连续设置。剪刀撑斜杆的接长宜采用搭接,搭接长度不应小于1m,应采用不少于2个旋转扣件固定。剪刀撑应随立杆、纵向和横向水平杆等同步搭设。剪刀撑斜杆应用旋转扣件固定在与之相交的横向水平杆的伸出端或立杆上,旋转扣件中心线至主节点的距离不宜大于

14、150mm。扣件安装符合下列规定:扣件规格必须与钢管外径相同;螺栓拧紧扭力矩不应小于40N.m,且不应大于65N.m;在主节点处固定横向水平杆、纵向水平杆、剪刀撑等用的直角扣件、旋转扣件的中心点的相互距离不应大于150mm;对接扣件开口应朝上或朝内;各杆件端头伸出扣件盖板边缘的长度不应小于100mm。作业层、斜道的栏杆和挡脚板的搭设应符合下列规定:栏杆和挡脚板均应搭设在外立杆的内侧;上栏杆上皮高度应为1.2m;挡脚板高度不应小于180mm;中栏杆应居中设置。脚手板的铺设应符合下列规定:脚手板应铺满、铺稳,离开墙面120150mm;竹笆脚手板应按其主竹筋垂直于纵向水平杆铺设,且采用对接平铺四个角应用直径1.2mm,的镀锌钢丝固定在纵向水平杆上。作业层端部脚手板探头长度应取150mm,其板长两端均应支承杆可靠地固定,脚手板探头应用直径3.2mm,的镀锌钢丝固定在支承杆件上。在拐脚、斜道平台处的脚手板,应与横向水平杆可靠连接,防止滑动;自层作业层的脚手板往上计,宜每隔6m,满铺一层脚手板,其中底层采用架板进行水平全部封闭。底

展开阅读全文
相关资源
猜你喜欢
相关搜索

当前位置:首页 > 建筑/环境 > 设计及方案

copyright@ 2008-2023 1wenmi网站版权所有

经营许可证编号:宁ICP备2022001189号-1

本站为文档C2C交易模式,即用户上传的文档直接被用户下载,本站只是中间服务平台,本站所有文档下载所得的收益归上传人(含作者)所有。第壹文秘仅提供信息存储空间,仅对用户上传内容的表现方式做保护处理,对上载内容本身不做任何修改或编辑。若文档所含内容侵犯了您的版权或隐私,请立即通知第壹文秘网,我们立即给予删除!