模板工程施工技术交底2.doc

上传人:p** 文档编号:949902 上传时间:2024-05-17 格式:DOC 页数:17 大小:566.10KB
下载 相关 举报
模板工程施工技术交底2.doc_第1页
第1页 / 共17页
模板工程施工技术交底2.doc_第2页
第2页 / 共17页
模板工程施工技术交底2.doc_第3页
第3页 / 共17页
模板工程施工技术交底2.doc_第4页
第4页 / 共17页
模板工程施工技术交底2.doc_第5页
第5页 / 共17页
模板工程施工技术交底2.doc_第6页
第6页 / 共17页
模板工程施工技术交底2.doc_第7页
第7页 / 共17页
模板工程施工技术交底2.doc_第8页
第8页 / 共17页
模板工程施工技术交底2.doc_第9页
第9页 / 共17页
模板工程施工技术交底2.doc_第10页
第10页 / 共17页
亲,该文档总共17页,到这儿已超出免费预览范围,如果喜欢就下载吧!
资源描述

《模板工程施工技术交底2.doc》由会员分享,可在线阅读,更多相关《模板工程施工技术交底2.doc(17页珍藏版)》请在第壹文秘上搜索。

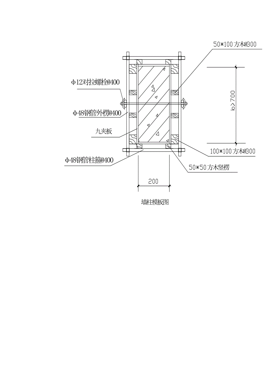
1、模板施工技术交底一、 支模材料选择:胶合模板(18mm厚):梁柱及平板模板用;松木方料(50100):模板连接排挡;钢管(f483.5)及扣件:平板、梁支模架,围楞,柱箍;扣件:各类直角扣件、旋转扣件、对接扣件,用于支模钢管架体的连接与坚固。f12、f14对拉螺栓:用于拉结墙、柱、梁两侧模;脱模剂:防止模板烂料粘结结构面层。模板连接排挡用松木方料(50100),围楞和搭支模承重架用钢管(f483.5),支模钢管架体的连接与紧固用扣件,拉结墙、柱两侧模板用12对拉螺栓及山形帽固定件。二、支模方法1、墙柱模板:1)采用18mm厚胶合板(正反面扩切口处均涂刷两遍脱模剂)拼制成墙柱定型组合模板,并进行

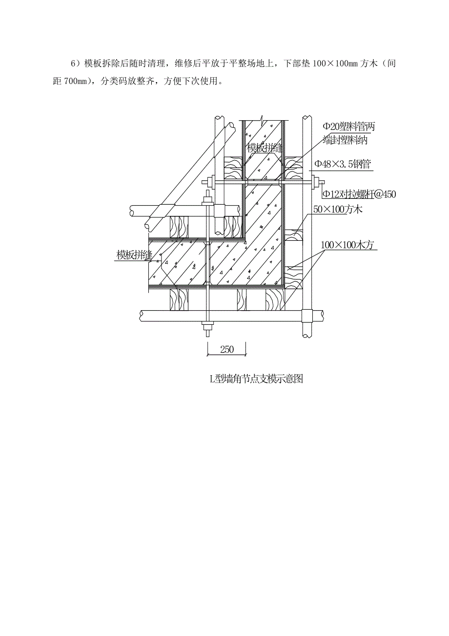
2、编号使用,背楞采用50100mm方木,方木需经压刨找平方正后方可使用。2)安装时,柱底清理干净后才可立墙柱模,根据控制线找准模板位置,调整垂直度,利用平板支撑及斜撑将柱模固定。3)模板拼装前须逐块修整板面、边框,清除混凝土残渣、泥浆,并涂刷隔离剂。4)柱根施工缝处经剔凿、清理、吹洗干净后,根据墙柱模控制线找准模板位置,调整其垂直度。5)利用支撑在四个方向将柱模固定,加固时每两人一组,用力均匀。6)模板拆除后随时清理,维修后平放于平整场地上,下部垫100100mm方木(间距700mm),分类码放整齐,方便下次使用。2、梁模板:梁模板采用18mm厚胶合板、钢管支撑体系,胶合板涂刷脱模剂,龙骨采用5

3、0100方木,主龙骨间距1000mm,次龙骨间距300mm,50100mm方木做肋,梁侧模:对梁高300mm以下的采用斜撑形式,如梁高超过300mm时则采用对拉螺栓穿PVC塑料套管固定,支模示意见下面两图。对于跨度大于4m的梁、板支模要起拱,起拱高度为跨度的3/1000。3、 洞口模板:洞口模板采用50mm厚方木,面板采用18mm厚胶合板,制作成拆装式模板,具体详见下图:4、 楼板模板采用50100mm方木做龙搁栅300mm,模板采用18mm胶合板,涂刷隔离剂。采用钢管钢管桁架支撑体系,立管间距1m,水平承重杆及水平联系杆间距1m,纵向联系杆间距3m, 同时设置斜撑间距3m,抵住墙柱模,并与墙

4、柱模的柱箍扣接牢固。支撑架立杆底垫通长50mm厚木板。 空调板等悬挑板,支撑架要挑出板面,侧边利用50100mm短方木斜撑撑牢。详见下图。梁、板等顶板模板按规范规定在平面图上注明75%设计强度标准值可拆模的部位,及要达到100%才可拆模的部位。以留置的混凝土同条件养护试块作为拆模的依据。根据试验员提供的同条件养护试块的报告单作为依据,经技术主管核实同意后,下达拆模通知单,才可拆模,否则不能拆模。5、 电梯井模板 电梯井为四角暗柱形式,部分为剪力墙形式,井道内搭设钢管脚手架作为施工操作平台,施工一层,搭设一层,操作平台上满铺木脚手板,与剪力墙边不得留空隙。每两层设置一层硬隔离。洞口设安全门围挡。

5、墙柱拼模采用14对拉螺栓拉牢。详见下图。6、楼梯模板楼梯梁模、踏步挡板、底模均采用18mm厚胶合板及方木按1:1现场拼装,首先选取一个楼梯的一层作为样板,经检验合格后,以此为样板进行拼装施工。主龙骨间距不大于1m,次龙骨选用50100mm方木,间距不大于300mm。详见:楼梯踏步模板拼装图。三、支模质量保证措施模板工程施工易出现轴线偏位,梁板标高误差和炸模等现象,要确保模板工程质量,必须对以上易出现的缺陷进行有效的控制,防止其发生,技术措施如下:1) 所有梁、柱均由翻样给出模板排列图和排梁支撑图。经项目部技术负责人审核后交班组施工,大截面梁,异形柱应增细部构造大样图。2) 模板使用前,应先进行

6、筛选,对变形,翘曲超出规范的应予清除,不得使用。3) 认真做好“三检”制度,每个分项在拼模过程中,班组及时进行自检、互检,误差控制在规定的范围内,再由项目部质量员按要求进行技术复核,办好书面签字手续后方可进入下一道工序。4) 浇捣砼过程中应派技术好的木工守模,发现问题及时整改和报告工地现场总施工或技术负责人。5)模板施工按模板设计对号入座进行支立,模板制作、运输、安装、拆除设专人负责,并建立混凝土拆模申请制度。6)梁模板、柱、墙上口模板拉通线找直,以确保整体结构棱线顺直,阴阳角方正。7)梁模板及柱、墙模板从立模至浇筑混凝土过程中,全长、全宽、全高三向均应拉通线校验,混凝土浇筑过程中通线不撤。8

7、)模板拼缝处、梁和柱头处、门窗塞口处、混凝土墙和板接触部位均垫海绵条。9)梁板支模后用空压机及人工清吹干净上部碎屑垃圾。10)模板拆除强度控制:柱、墙模板:达到1.2MPa;同时保证侧模拆除时的混凝土强度应能保证其表面及棱角不受损伤。梁、板拆模:跨度8m的梁、板跨,当混凝土达到设计强度75%时,可拆模,而对于悬臂结构,如悬挑阳台、雨蓬、空调板等要达到100%设计强度时才可拆模。拆模前要经项目部技术负责人核实同意后,方可拆模。四、模板拆除1、拆模的安全要求1)拆模时对混泥土强度的要求.根据混凝土结构工程施工及验收规范的规定,现浇混凝土结构模板及其支架拆除时的混凝土强度,应符合设计要求;当设计无要

8、求时,应符合下列要求:1) 不承重的侧模板,包括梁、柱侧模板,只要混凝土强度能保证其表面及棱角不因拆除模板而受损坏,即可拆除。2) 承重模板,包括梁、板等水平结构构件的底模,应根据与结构同条件养护的试块强度达到表7-1的规定,方可拆除。表10-1 现浇结构拆模时所需混凝土强度项次结构类型结构跨度(m)按达到设计混凝土强度标准的百分率(%)1板2502,8752梁、拱、壳87581003悬臂构件210021003)在拆模过程中,如发现实际结构混凝土强度并未达到要求,有影响结构安全的质量问题,应暂停拆模.经妥善处理,实际强度达到要求后,方可继续拆除。4) 已拆除模板及其支架的混凝土结构,应混凝土强

9、度达到设计的混凝土强度标准值后,才允许承受全部设计的使用荷载,当承受施工荷载的效应比使用荷载更为不利时,必须经过核算,加设临时支撑。5) 拆除芯模或预留孔的内模,应在混凝土强度能保证不发生塌陷和裂缝时,方可拆除。2、拆模之前必须有拆模申请,并根据同条件养护试块强度记录达到规定时,经技术负责人批准方可拆模。3、冬期施工模板的拆除应遵守冬期施工的有关规定,其中主要是要考虑混凝土模板拆除后的保温养护,如果不能进行保温养护,必须暴露在大气中,要考虑混凝土受冻的临界强度。4、对于大体积混凝土,除应满足混凝土强度要求外,还应考虑保温措施,拆模之后要保证混凝土内外温差不超过20,以免发生温差裂缝。5、各类模

10、板拆除的顺序和方法,应根据模板设计的规定进行。如果模板设计无规定时,可按先支的后拆,后支的先拆顺序进行。先拆非承重的模板,后拆承重的模板,及支架的顺序进行拆除。6、拆除的模板必须随拆随清理,以免钉子扎脚、阻碍通行发生事故。7、拆模时下方不能有人,拆模区应设警戒线,以防有人误入被砸伤。8、拆除的模板向下运送传递,一定要上下呼应,不能采取猛撬,以致大片塌落的方法拆除。用起重机吊运拆除的模板时,模板应堆码整齐并捆牢,才可吊装,否则在空中“天女散花”是很危险的。9、拆除作业必须在白天进行,宜采用分段整体拆除,在地面解体。拆除的部件及操作平台上的一切物品,均不得从高空抛下,并做好工完场清工作。10、当遇

11、到雷、雨、雪或风力达到五级以上的天气时,不得进行模板的拆除工作。五、成品保护按施工方案施工成型的砼成品,其棱角完整,确保砼成品棱角不受损坏,应做好以下几点:1)拆模时间:应在混凝土强度能保证其表面及棱角不因拆除模板而损坏时方可拆除(承重模板应在与结构同条件养护的试块达到规定强度方可拆除)。2)模板施工时要轻拿轻放,不准碰撞已完成的楼板、墙、柱等处。3)拆除模板时,不得使用大外向锤硬砸或撬棍硬撬,以免损伤混凝土表面和棱角。4)拆下的墙柱模板,应及时清理干净,如发现不平时或肋过损坏变形需及时修理。5)保持模板配套设备零件的齐全;吊运要防止碰撞,堆放要合理,保持板面不变形。同时模板吊运时要平衡、准确

12、,不得碰砸楼板及其他已施工完成的部位,不得兜挂钢筋。6)拆除梁柱模时禁止使用大锤敲击,防止混凝土柱墙面及门窗洞口等处出现裂纹。7)拆下的顶板、梁、柱模板要堆放整齐,拆除的支撑架钢管、扣件、对拉螺栓、木方等材料要按型号分类码放,不得乱扔,以利于下次使用。六、模板施工安全技术措施1、模板施工前的安全技术准备工作1) 模板构件进场后,要认真检查构件和材料是否符合设计要求,特别是承重构件其检查验收手续要齐全。2) 保证运输道路畅通,现场有安全防护保护措施。3) 夜间施工要做好夜间施工照明的准备工作。4) 检查木工施工机具运转是否正常,电源线的漏电保护装置要齐全。5) 模板施工作业前,现场施工人员(负责

13、人)要认真向有关人员作安全技术交底,特别是新的模板工艺,必须通过试验,编制详细的作业指导书,并组织人员进行操作培训。2、模板施工的安全要求2.1 模板施工安全的基本要求1) 模板工程作业高度在2m以上时,要严格按“高处作业安全技术规范”的要求进行操作和防护。2) 采用全封闭施工,模板施工作业区,周围应设安全网、防护栏杆。3) 操作人员上下通行,必须由施工电梯,上人扶梯或马道等上下,不许攀登模板或脚手架上下。4) 不许在墙顶、独立梁及其他狭窄而无防护栏的模板上行走。5) 不得在作业架子上,平台上堆放模板料。6) 高处支模工人所用工具不用时,要放在工具袋内,不能随意将工具、模板零件放在脚手架上,以

14、免坠落伤人。7) 木料及易燃材料要远离火源堆放。8) 模板吊运必须采取防护措施,增设屏障、遮拦、围护或保护网,并悬挂醒目的警告标志牌。9) 夜间施工,必须有足够的照明,各种电源线应用绝缘线,不允许直接固定在模板上。10) 模板支撑不能固定在脚手架或门窗上,避免发生倒塌或模板位移。2.2 模板安装的安全技术要求1) 操作人员上下基坑要设扶梯。2) 基坑上口边缘1米以内,不允许堆放模板构件和材料。3) 模板支撑在土壁上,应在支点加垫板。地基土上立柱应垫通长垫板。4) 采用起重机吊运模板等材料,要有专人指挥,被吊的模板构件和材料要捆牢,避免散落伤人,重物下的操作人员要避开起重臂的下方。5) 分层、分阶的柱基支模,要待下层模板移正好,并支撑牢固之后,再支上一层的模板。6) 柱模板支撑时,四周必须设牢固支撑或用钢筋、钢丝拉结牢固。避免柱模整体歪斜,发生涨模现象。7) 柱箍的间距设置必须依据模板的设计要求做。8) 梁或整体楼盖支模,应搭设牢固的操作平台,要避免上下同时作业。9) 楼层支模架采用整体排架,各层支架的立柱应垂直,支架的层间垫板应平整,上下层立柱应在同一条直线上。

展开阅读全文
相关资源
猜你喜欢
相关搜索

当前位置:首页 > 建筑/环境 > 设计及方案

copyright@ 2008-2023 1wenmi网站版权所有

经营许可证编号:宁ICP备2022001189号-1

本站为文档C2C交易模式,即用户上传的文档直接被用户下载,本站只是中间服务平台,本站所有文档下载所得的收益归上传人(含作者)所有。第壹文秘仅提供信息存储空间,仅对用户上传内容的表现方式做保护处理,对上载内容本身不做任何修改或编辑。若文档所含内容侵犯了您的版权或隐私,请立即通知第壹文秘网,我们立即给予删除!