住宅工程地下车库基础底板混凝土浇筑施工交底.doc

上传人:p** 文档编号:954244 上传时间:2024-05-28 格式:DOC 页数:6 大小:156.50KB
下载 相关 举报
住宅工程地下车库基础底板混凝土浇筑施工交底.doc_第1页
第1页 / 共6页
住宅工程地下车库基础底板混凝土浇筑施工交底.doc_第2页
第2页 / 共6页
住宅工程地下车库基础底板混凝土浇筑施工交底.doc_第3页
第3页 / 共6页
住宅工程地下车库基础底板混凝土浇筑施工交底.doc_第4页
第4页 / 共6页
住宅工程地下车库基础底板混凝土浇筑施工交底.doc_第5页
第5页 / 共6页
住宅工程地下车库基础底板混凝土浇筑施工交底.doc_第6页
第6页 / 共6页
亲,该文档总共6页,全部预览完了,如果喜欢就下载吧!
资源描述

《住宅工程地下车库基础底板混凝土浇筑施工交底.doc》由会员分享,可在线阅读,更多相关《住宅工程地下车库基础底板混凝土浇筑施工交底.doc(6页珍藏版)》请在第壹文秘上搜索。

1、工程名称某某村还迁住宅工程交底部位14#18#楼及地下车库基础底板混凝土浇筑工程编号日期某某-05-08交底内容:基础底板混凝土浇筑施工1 材料要求1.1基础底板混凝土采用预拌混凝土,混凝土标号C35S6,塌落度160180mm。1.2混凝土工长依据设计图纸计算施工部位混凝土方量并提前向搅拌站提前1天预订。1.3材料要求必须符合预拌混凝土技术规程要求的内容。2 主要机具 地泵两2台、混凝土搅拌运输车12辆;插入式振动棒6台;柴油磨光机两台;大小平锹30把等;3 作业条件 3.1 混凝土配浇灌申请书已批准。 3.2 各种机械设备已经安装、就位、维修保养和试运转,处于完好状态,电源满足需要。 3.

2、3 钢筋办完隐检手续。3.4 底板钢筋内的垃圾、木屑、泥土和钢筋上的油污等已清除干净。3.5 浇筑混凝土用的架子已安装完毕,临边四周提前做好防护并经检查符合施工和安全要求。3.6 混凝土浇筑标高控制点设置完毕并经质检员复核。3.7 地泵泵管、橡胶圈等更换部件配备齐全,泵管敷设完毕并做好节点的加固。3.8 搅拌站现场指挥人员在岗,协调混凝土的运输车辆。3.9 提前1天掌握天气情况,如下雨、刮风等恶劣天气。3.10 混凝土专业工长等各岗位管理人员值班部署完毕,特别是前台与后台的协调工作预先统一。3.11 夜间照明工具准备充足。3.12 钢筋值班人员4名、木工值班人员4名。3.13 混凝土浇筑人员须

3、配备两班不阶段施工。4 操作工艺 4.1 工艺流程: 作业准备混凝土运输混凝土浇筑、振捣混凝土养护4.2 混凝土运输: 4.2.1 混凝土自搅拌机卸出后,应及时运至浇筑现场。运送混凝土时,应防止水泥浆流失。若有离析现象,应经项目部技术组会同搅拌站技术共同处理后方可试使用,严禁向罐车内直接加水。 4.2.2 混凝土以搅拌机卸出后到浇筑完毕的延续时间,不得大于60min。 4.3 混凝土浇筑、振捣: 4.3.1 后浇带加强带施工缝处,在浇筑前宜先铺5cm厚与混凝土配合比相同的水泥砂浆。 4.3.2 浇筑底板板混凝土,虚铺厚度略大于板厚50mm,钢筋密集处采用小直径振动棒从上部钢筋较少处插入振捣。

4、4.4.3 混凝土振捣:插入式振动器振捣应快插慢拔,插点均匀排列,逐点移动,顺序进行,均匀振实,不得遗漏、过振。移动间距不大于振捣棒半径的1.5倍,一般为30cm。振捣上一层混凝土时,应插入下层50mm,以消除两层间的接茬。4.4.4 浇筑混凝土时,应注意保护钢筋位置及水电预埋管线等,不使其损害,专人检查模板、钢筋是否变形、移位;螺栓、拉杆是否松动、脱落;发现漏浆等现象,指派专人检修。4.4.5浇筑须连续进行,如有间歇应在混凝土初凝前接缝,一般不超过2h,否则应按施工缝进行处理。4.4.6电梯井等局部大体积混凝土浇筑必须分二次浇筑,以有效释放水泥的初期的水化热,减少裂缝的产生。4.4.7 导墙

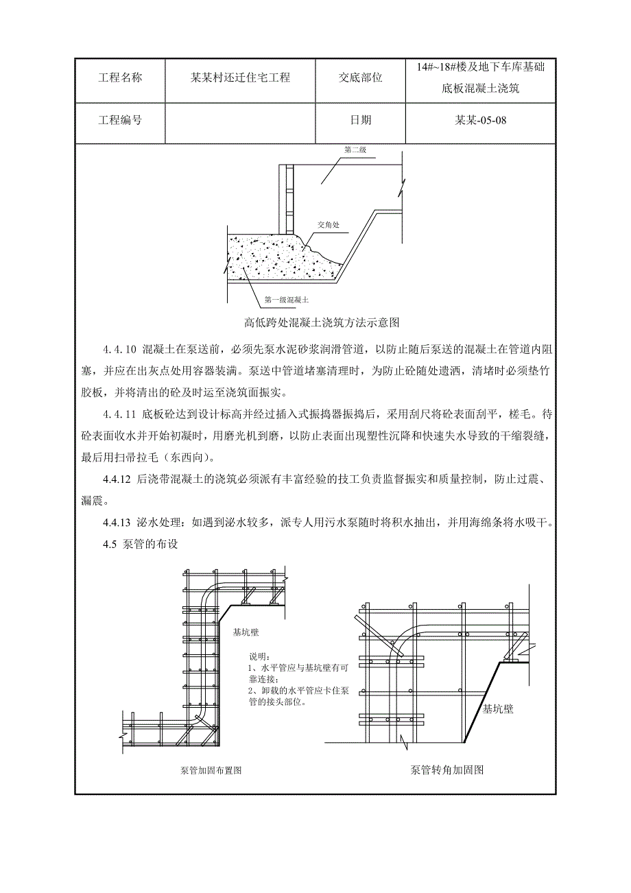
5、部位振捣棒移动间距应小于50cm,每一振点的延续时间以表面呈现浮浆为度,为使上下层混凝土结合成整体,振捣器应插入下层混凝土5cm。振捣时注意钢筋密集及洞口部位,为防止出现漏振。混凝土墙体浇筑完毕之后,将上口甩出的钢筋加以整理,用木抹子按标高线将墙上表面混凝土找平。4.4.8 电梯坑两侧混凝土浇筑时两侧同时放灰,同时震捣,避免因单侧浇筑导致模板偏移,模板上口加固牢固,防止震捣底部混凝土时模板上涨。4.4.9 在保证混凝土不出现冷缝的前提下,浇筑电梯、楼梯坑等高低跨混凝土时,低跨混凝土先浇,待低跨混凝土接近初凝时,再浇筑高跨混凝土。4.4.10 混凝土在泵送前,必须先泵水泥砂浆润滑管道,以防止随后

6、泵送的混凝土在管道内阻塞,并应在出灰点处用容器装满。泵送中管道堵塞清理时,为防止砼随处遗洒,清堵时必须垫竹胶板,并将清出的砼及时运至浇筑面振实。4.4.11 底板砼达到设计标高并经过插入式振捣器振捣后,采用刮尺将砼表面刮平,槎毛。待砼表面收水并开始初凝时,用磨光机到磨,以防止表面出现塑性沉降和快速失水导致的干缩裂缝,最后用扫帚拉毛(东西向)。4.4.12 后浇带混凝土的浇筑必须派有丰富经验的技工负责监督振实和质量控制,防止过震、漏震。4.4.13 泌水处理:如遇到泌水较多,派专人用污水泵随时将积水抽出,并用海绵条将水吸干。4.5 泵管的布设泵管接头部位如漏浆应用灰斗接上,主干管应用草帘覆盖,防

7、止管内气温过高堵泵。 4.6 混凝土养护:混凝土浇筑完12h以内,应对混凝土加以覆盖并浇水养护。常温时每日至少浇水五次,养护时间不得少于14d。混凝土未达到1.2N/mm2前,不得在其上踩踏或安装模板及支架。 4.7 填写混凝土施工记录,制作混凝土试块。5 质量标准 5.1 主控项目; 5.1.l 外观质量不应严重缺陷。 5.1.2 现浇结构不应有影响结构性能和使用功能的尺寸偏差。 5.1.3 按标准对混凝土进行取样、制作、养护和试验,评定混凝上强度并符合设计要求。5.2 一般项目:混凝土应振捣密实,不得有蜂窝、孔洞露筋、缝隙、夹渣。5.3 允许偏差项:板面平整度小于+5mm。6 成品保护 6

8、.1 浇筑混凝土时,应用模板铺设临时道路。 6.2 振捣混凝土时,不得碰动钢筋、埋件,防止移位。 6.3 钢筋有踩弯、移位或脱扣时,及时调整、补好。 6.4 散落在模板上的混凝土应及时清理干净。7 安全措施7.1 浇注混凝土前,应对振动棒进行试运转,振动操作人员应穿胶鞋、戴绝缘手套;振动器不能挂在钢筋上,湿手不能接触电源开关。7.2 施工前劳务班组必须提前组织人员做好安全交底及班前交底。7.3 劳务班组管理人员及兼职安全员须全程跟踪,发现问题及时向项目部汇报不得盲目施工。7.4 提前组织好木工、钢筋工值班人员。7.5 施工人员必须戴好安全帽、严禁酒后上班。7.6泵送混凝土车、管道接头,安全阀必

9、须完好,管道的架子必须牢固,输送前必须试送,检修必须卸压。7.7使用振动棒的工人应穿胶鞋,戴绝缘手套,湿手不得接触开关,电源线不得有破皮漏电。7.8下雨施工时对现场所有的施工机械、机具做好覆盖和保护,由临电负责人定期对现场工具进行检查、修理、保养。7.9后浇带上口用竹胶板覆盖,上部铺设塑料布,最后浇筑40厚细石混凝土,具体做法见下图:8 应注意的质量问题 8.1 蜂窝:原因是混凝土一次下料过厚,振捣不实或漏振,模板有缝隙使水泥浆流失,钢筋较密而混凝土坍落度过小或石子过大,柱、墙根部模板有缝隙,以致混凝土中的砂浆从下部涌出而造成。 8.2 露筋:原因是钢筋垫块位移、间距过大、漏放、钢筋紧贴模板、造成露筋,或梁、板底部振捣不实,也可能出现露筋。 8.3 麻面:拆模过早或模板表面漏刷隔离剂或模板湿润不够,构件表面混凝土易粘附在模板上造成麻面脱皮。 8.4 孔洞:原因是钢筋较密的部位混凝土被卡,未经振捣就继续浇筑上层混凝土。 8.5 缝隙与夹渣层:施工缝处杂物清理不净或未浇底浆等原因,易造成缝隙、夹渣层。8.6 基础表面平整度偏差太大:主要原因是混凝土浇筑后,表面不用抹子认真抹平。技术负责人: 交底人: 接交人:

展开阅读全文
相关资源
猜你喜欢
相关搜索

当前位置:首页 > 建筑/环境 > 设计及方案

copyright@ 2008-2023 1wenmi网站版权所有

经营许可证编号:宁ICP备2022001189号-1

本站为文档C2C交易模式,即用户上传的文档直接被用户下载,本站只是中间服务平台,本站所有文档下载所得的收益归上传人(含作者)所有。第壹文秘仅提供信息存储空间,仅对用户上传内容的表现方式做保护处理,对上载内容本身不做任何修改或编辑。若文档所含内容侵犯了您的版权或隐私,请立即通知第壹文秘网,我们立即给予删除!