住宅楼模板施工技术交底2.doc

上传人:p** 文档编号:954728 上传时间:2024-05-29 格式:DOC 页数:16 大小:1.06MB
下载 相关 举报
住宅楼模板施工技术交底2.doc_第1页
第1页 / 共16页
住宅楼模板施工技术交底2.doc_第2页
第2页 / 共16页
住宅楼模板施工技术交底2.doc_第3页
第3页 / 共16页
住宅楼模板施工技术交底2.doc_第4页
第4页 / 共16页
住宅楼模板施工技术交底2.doc_第5页
第5页 / 共16页
住宅楼模板施工技术交底2.doc_第6页
第6页 / 共16页
住宅楼模板施工技术交底2.doc_第7页
第7页 / 共16页
住宅楼模板施工技术交底2.doc_第8页
第8页 / 共16页
住宅楼模板施工技术交底2.doc_第9页
第9页 / 共16页
住宅楼模板施工技术交底2.doc_第10页
第10页 / 共16页
亲,该文档总共16页,到这儿已超出免费预览范围,如果喜欢就下载吧!
资源描述

《住宅楼模板施工技术交底2.doc》由会员分享,可在线阅读,更多相关《住宅楼模板施工技术交底2.doc(16页珍藏版)》请在第壹文秘上搜索。

1、1、施工准备 1.1、技术准备 1.1.1、技术人员熟悉、审查图纸,清楚各部位的尺寸关系,收集、学习相关规程、规范、标准及参考书等,为模板的选型和方案选择备齐相应技术资料。对本工程的特点、难点部位引起足够重视,并针对本工程实际情况确定施工方案、施工方法、技术措施。1.1.2、认真考虑施工方案,通过对施工进度、质量、经济效益等方面的综合分析来确定模板及支撑体系的选型。1.1.3、技术人员在施工前对施工班组进行详细技术交底。1.2、施工机具及材料准备 1.2.1、木工圆锯、木工平刨、压刨、手提电锯、手提压刨、打眼电钻、线坠、靠尺板、方尺、铁水平、撬棍等。1.2.2、支撑体系:柱箍、钢管支柱、钢管脚

2、手架等。1.2.3、脱模剂:甲基硅树脂、水溶性脱模剂等。 模板:竹胶合板、木胶合板、木板、50*100mm木方(无50*100mm木方,可适当调整为40*80mm)、100*100mm木方(可用50*100mm木方合并代替)。 配品配件:扣件、对拉螺杆、止水对拉螺杆、竹管撑头、蝴蝶扣(3型卡)、螺母和垫片、地模用红砖和水泥砂浆。1.3、劳动力组织该工程工期较为紧张,施工周期较短,质量要求较高,因此务必保证人力物力充足,满足施工进度计划要求,其对木工人数要求较多,按照施工楼号分区和流水段组织人员,住宅楼模板分项工程高峰期木工施工人员达到200人,保证现场木工人数必须保证满足施工进度,其余类同。1

3、.4现场准备1.4.1、施工前按照临设施工方案进行场地平整和硬化,划出材料堆放区域,钢管、卡子、U托、螺杆、电梯井定型平台模板、方木、模板等周转材料按要求码放在项目指定的区域内,分类码放整齐,便于吊装和运输。1.4.2、材料码放位置按照施工总平面图规定位置码放整齐,符合规范要求。2、模板选型2.1、 基础筏板2.1.1、基础筏板与车库底板交接部位采用50x100mm木方进行拦边;筏板边放坡部位采用120mm砖砌筑斜坡砖胎模施工;基础筏板内电梯坑、集水坑使用12mm厚的多层板,50x100mm方木间距150mm做次龙骨,做定型巨型模板,采用双钢管间距400mm做主龙骨,然后用钢管和方木做斜撑,以

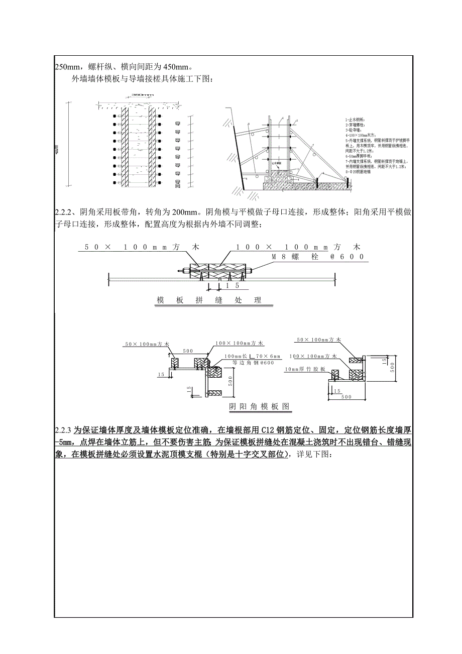
4、对边做支撑点水平和斜向下加固侧壁模板,如下图:2.2、墙体模板2.2.1、采用12mm厚多层板作为模板,背面用50100mm方木作次龙骨,龙骨净距不大于150mm;采用双钢管做主龙骨,间距450mm,用穿墙螺杆及3形卡固定,墙体下部第一道螺杆距地不大于250mm,螺杆纵、横向间距为450mm。外墙墙体模板与导墙接槎具体施工下图:2.2.2、阴角采用板带角,转角为200mm。阴角模与平模做子母口连接,形成整体;阳角采用平模做子母口连接,形成整体,配置高度为根据内外墙不同调整;2.2.3为保证墙体厚度及墙体模板定位准确,在墙根部用C12钢筋定位、固定,定位钢筋长度墙厚-5mm,点焊在墙体立筋上,但

5、不要伤害主筋;为保证模板拼缝处在混凝土浇筑时不出现错台、错缝现象,在模板拼缝处必须设置水泥顶模支棍(特别是十字交叉部位),详见下图:2.2.4、为保证墙体下部混凝土水泥浆不外流,在墙体模板下部采用水泥砂浆进行封堵,局部过大部位可采用红砖和水泥砂浆砌筑地模,严禁模板下部露浆、跑浆。2.2.5、门窗洞模采用多层板、方木加工定型模板,以保证混凝土外观效果。门窗洞口跨度小于或等于1.2m时使用木方对撑;大于1.2m时采用水平钢管、十字扣件加固;标准层门、窗洞口及空调板、阳台板边线应保证上、下贯通,在一条垂直线上。2.3、顶板模板2.3.1、采用12mm厚多层板做模板,采用硬拼缝,拼缝不大于2mm,用4

6、0mm铁钉固定于次龙骨(50100mm方木)上,所有拼缝位置必须设置次龙骨。2.3.2、主龙骨采用100100mm方木或钢管,间距为1000mm,距墙边距离不大于200mm,通过扣件或U型托固定在立杆上,根据楼板标高进行高度调整。2.3.3、次龙骨为50100mm方木,方木间距不大于200mm。2.3.4、立杆采用钢管,搭设满樘脚手架架,立杆纵向、横向间距L1.0m,距墙边距离不大于300mm,并根据开间尺寸调整边立管间距,立杆下铺设300*50*100mm厚的垫木。2.3.5、水平杆采用钢管,步距h不大于1500,扫地杆距地不大于300mm,纵横不同方向根据采用的支撑体系尽可能错开一定高度,

7、以增加整体稳定性。2.3.6、为保证立杆上、下层受力传递一致,上、下层立杆位置应对应布置。采用钢管做主龙骨、扣件固定立杆示意图 采用方木做主龙骨、可调U型托支撑示意图2.4、柱模板立柱模板采用12mm厚多层板做模板,50100mm的方木做次龙骨,间距300mm;柱箍采用48X3.5双钢管,间距450mm,第一道距地200mm;14高强螺栓配置3形卡加固,用钢管做3道斜撑。2.5、梁模板梁的底模采用12mm厚多层板制作,梁底采用四根50100mm的方木做龙骨,通过扣件钢管架支撑;梁邦采用12mm厚木胶合板和50100mm方木加工、制作,用50100mm方木、卡子及钢管扣件加固梁邦;梁高大于700

8、mm需采用14高强螺栓配置3形卡加固,用钢管做3道斜撑。,2.6、楼梯模板平台梁和平台板模板的构造与顶板、梁模板相同,楼梯段模板是由底模、搁栅、牵杠、牵杠撑、外邦板、踏步侧板、反三角木等组成。梯段侧板的宽度至少要等于梯段板厚及踏步高,长度按梯段长度确定。反三角木是由若干三角木块钉在方木上,三角木块两直角边长分别各等于踏步的高和宽,方木断面为50100mm。每一梯段反三角木至少要配一块,楼梯较宽时可多配。反三角木用横楞及立木支吊。吊踏步板时,装修面层按30mm厚考虑。底模采用12mm多层板,龙骨采用50100mm方木,间距300mm,支撑采用钢管、十字扣件。2.7、电梯坑、集水坑及筏板边坡模板1

9、、工艺流程:作业准备砂浆搅拌砌胎膜验收;2、作业条件:电梯井、集水坑土方开挖、清槽完毕,测量放线工作完成后;3、施工要点:1)、 砂浆拌制:砂浆拌制应采用机械搅拌,投料顺序为:砂水泥掺合料水,搅拌时间不少于1.5min。2)、粘土砖必须在砌筑前一天浇水润湿,一般以水浸入砖四边1.5cm为宜,含水率为10%15%,不得使用干砖上墙;砖胎膜砌筑时,要求砂浆饱满,砌筑牢固,砌筑完成后要求面层抹灰处理,要求顶标高与相对应垫层顶标高相同。3)、胎膜选择:电梯井、集水坑斜坡均采用120厚砖胎模,筏板及抗水板封边部位采用240厚砖砌筑,砌筑高度低于筏板2皮砖,防水施工完成后,再进行压2皮砖处理,具体做法如下

10、图所示; 4)、质量要求:a、砖砌体上下错缝,每处无四皮砖通缝;b、砖砌体接槎处灰缝砂浆密实,缝、砖应平直;每处接槎部位水平灰缝厚度不小于5mm。c、砌体砂浆必须饱满密实,实心砖砌体水平灰缝的砂浆饱满度不小于80%。2.8、后浇带模板1、底板后浇带构造如下图:(2)楼层后浇带构造楼层后浇带构造如下图:2、地下室底板处后浇带施工措施底板处后浇带模板支撑底板厚度大部分为0.8m,后浇带采用2C25钢筋作骨架,在后浇带设置钢网作侧模支护,绑扎在钢筋骨架上。竖向立筋采用C 25250.为保证结构施工质量,后浇带钢筋骨架不得焊于底板钢筋上。由于后浇带有一定的侧压力,模板固定可采用如下图所示的固定方式,以

11、抵抗混凝土的侧压力,保证模板位置和几何尺寸的准确。两侧接缝收口控制采用快易收口网时,混凝土振捣宜控制在距快易收口网 450mm 左右,振捣时聚集到混凝土表面的泌水应尽快排除,要保证快易收口网后面没有空隙产生,也不可让混凝土浆沿网下流;在地下室底板施工时监理应要求快易收口网的上、下边界距底板上下表面各 50mm,以免快易收口网形成贯穿底板通缝,为渗水提供通道。3、顶板后浇带施工措施:模板支撑体系控制要求其模板支模架子一次性安装成型,待混凝土浇筑好以后再进行拆除回撑,确保板底平整。在后浇带混凝土二次浇筑前,在后浇带跨内的梁板两侧结构长期处于悬臂受力状态,因此要求在施工期间本跨内的模板支撑随拆随回顶

12、支撑,否则可能引起各部分结构的承载能力和稳定问题。这部分模板在后浇带达到可施工要求时,重新用满堂架支撑体系支模,等后浇带混凝土二次浇筑并养护28天后,才可以拆除。按由上向下顺序拆除。后浇带处梁板模板安装工艺流程弹出梁轴线及水平线并复核搭设梁板模支架安装梁底模板安装后浇带两侧模板及钢筋混凝土浇筑养护先浇砼强度达到拆模要求后拆模换撑施工缝凿毛清理保潮安装梁底模板调整标高安装侧梁模安装另一侧梁模安装梁上下锁口楞、斜撑楞及腰楞和对拉螺栓检查模板上皮标高、平整度与相邻模板连固、顶板后浇带回顶支撑示意图:4、阳台模板需配备四层材料,模板拆除时及时回撑,最低保证三层支撑体系。3、模板加工3.1、材料要求 3.1.1、多层板进场时厂家出具其检测报告,材料员进行进场检验,板厚度不得小于12mm,且同一批的厚度均匀,相差不得大于1.2mm,模板对角线尺寸偏差不得大于3mm。3.1.2、所采用

展开阅读全文
相关资源
猜你喜欢
相关搜索

当前位置:首页 > 建筑/环境 > 设计及方案

copyright@ 2008-2023 1wenmi网站版权所有

经营许可证编号:宁ICP备2022001189号-1

本站为文档C2C交易模式,即用户上传的文档直接被用户下载,本站只是中间服务平台,本站所有文档下载所得的收益归上传人(含作者)所有。第壹文秘仅提供信息存储空间,仅对用户上传内容的表现方式做保护处理,对上载内容本身不做任何修改或编辑。若文档所含内容侵犯了您的版权或隐私,请立即通知第壹文秘网,我们立即给予删除!