学校深基坑支护安全专项施工方案#广东#节点图.doc

上传人:p** 文档编号:995612 上传时间:2024-06-11 格式:DOC 页数:62 大小:1.18MB
下载 相关 举报
学校深基坑支护安全专项施工方案#广东#节点图.doc_第1页
第1页 / 共62页
学校深基坑支护安全专项施工方案#广东#节点图.doc_第2页
第2页 / 共62页
学校深基坑支护安全专项施工方案#广东#节点图.doc_第3页
第3页 / 共62页
学校深基坑支护安全专项施工方案#广东#节点图.doc_第4页
第4页 / 共62页
学校深基坑支护安全专项施工方案#广东#节点图.doc_第5页
第5页 / 共62页
学校深基坑支护安全专项施工方案#广东#节点图.doc_第6页
第6页 / 共62页
学校深基坑支护安全专项施工方案#广东#节点图.doc_第7页
第7页 / 共62页
学校深基坑支护安全专项施工方案#广东#节点图.doc_第8页
第8页 / 共62页
学校深基坑支护安全专项施工方案#广东#节点图.doc_第9页
第9页 / 共62页
学校深基坑支护安全专项施工方案#广东#节点图.doc_第10页
第10页 / 共62页
亲,该文档总共62页,到这儿已超出免费预览范围,如果喜欢就下载吧!
资源描述

《学校深基坑支护安全专项施工方案#广东#节点图.doc》由会员分享,可在线阅读,更多相关《学校深基坑支护安全专项施工方案#广东#节点图.doc(62页珍藏版)》请在第壹文秘上搜索。

1、 编制说明及依据1.1 编制说明为指导本工程项目全过程各项施工活动的技术、经济、组织、协调和控制,根据现有国家相关法律法规、文件精神、规范工法,在工程开始施工前编制本深基坑支护专项方案并经专家论证审查通过后用于指导工程全面施工。1.2 编制依据本施工组织设计主要编制依据为:1、深圳地区建筑深基坑支护技术规范SJG 05-96;2、建筑基坑支护技术规程 JGJ120-99;3、混凝土结构工程施工质量验收规范GB50204-2002;4、建筑边坡工程技术规范GB50330-20025、锚杆喷射砼支护技术规范GB50086-20016、建筑地基基础设计规范GB50007-20027、混凝土结构设计规

2、范GB50010-20027、建筑地基基础工程施工质量验收规范GB50202-20028、岩土锚杆(索)技术规程CECS22:20059、深圳市第六高级中学基坑工程基坑支护工程设计图(施工图),深圳市勘察研究院有限公司,2010年1月;10、深圳市第六高级中学场边坡支所工程岩土工程详细勘察报告 深圳市勘察研究院有限公司,2009年10月11、深圳市第六高级中学土石方及边坡支护工程施工组织设计,深圳市工勘岩土工程有限公司,2011年2月;14、现场踏勘情况以及我公司以往类似工程的施工经验。2 工程概况及特点2.1 工程简介该工程位于龙岗区坂田街道扬美村,整个场地全、强风化基岩起伏变化大在,场地线

3、路穿越丘陵一洼地,有洼地内分布有乱搭建的猪棚和临时建筑物,上万伏高压电线,果木树等,需对场地进行平整,有挖方和填方,挖方最大高度约30米,挖方量约70多万方立方,填方最大深度约26m以上,填方量约60多万立方,需对填方区进行地基强夯处理。四周红线与相邻东南侧为建好佳兆业上品住宅小区,南侧规划为坂田三号路,西侧为规划环城东路。东侧为规划中的旱坑路,北侧规划龙颈岭路,场地总占地面积.12m2,建筑基底面积16490.84m2,总建筑面积79130.3m2,按照场地设计要求及周边道路规划设计、地形条件,场地平整后四周均形成高边坡。边坡类型有挖方及填方边坡,设计针对场地周边的边坡进行支护设计。场坪设计

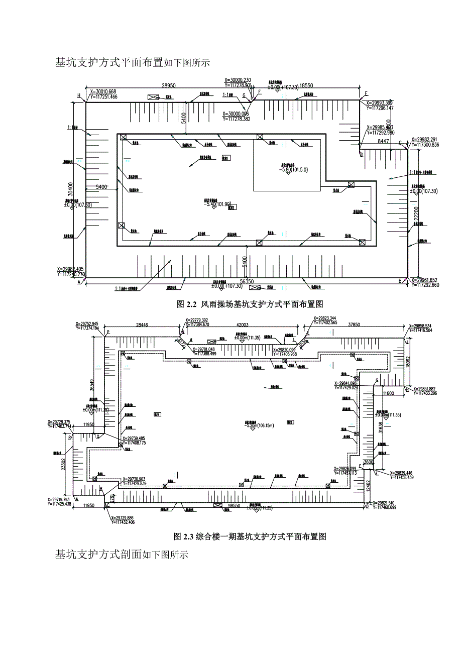
4、标高105.4m一111.15m,边坡支护高度0一17.118m。场地平整后有风雨操场及综合楼一期两处基坑,基坑处有挖方和填方区,风雨操场基坑支护周长123m,面积积693,基坑深度5.45.8 m,综合楼一期基坑支护工程周长332 m,面积4474,基坑深度为5.2 m,安全等级为三级本工程主要包括以下两部分支护内容:(2) 风雨操场基坑、综合楼一期基坑采用“放坡+钢花管支护+挂网喷射砼”(填土区)和放坡+打入式土钉+挂网喷射砼(非填土区)两种支护形式,风雨操场基坑深5.4m5.8 m,基坑支护底标高-5.4 m(101.9m)。综合楼一期基坑5.2 m5.8 m,基坑支护底标高-5.2 m

5、(106.15m)。基坑支护位置的平面布置如下图所示。图2.1 基坑支护位置平面布置总平面图基坑支护方式平面布置如下图所示图2.2 风雨操场基坑支护方式平面布置图图2.3综合楼一期基坑支护方式平面布置图基坑支护方式剖面如下图所示图2.4 1:1放坡+注浆钢花管土钉+挂网喷射砼支护形式图2.5 1:1放坡+打入式土钉+挂网喷射砼支护形式本工程建设单位为深圳市龙岗区建筑工务局,设计单位为深圳市勘察研究院有限公司,由深圳市东部建设监理有限责任公司承担工程建设监理工作,由深圳市勘察测绘研究院有限公司承担本基坑支护施工。2.2 工程地质及水文地质2.2.1 工程地质深圳市第六高级中学场地原始地貌单元为低

6、丘陵-洼地地貌,丘陵坡面植被发育,原有地貌大部分保持良好,局部己被破坏,西南角及北部山间洼地内为乱搭建的养猪棚。场地东侧为佳兆业,上品临时租用地,坡面受雨水冲刷发生崩塌现象。孔口地面标高介于84.45-133.54M,最大相对高差为49.09M。场内分布的地层有; 人工填土(QMI),第四系全新统冲洪积层(Q4AIPI),第四系全新统坡洪积层(Q4DI十PI,)第四系残积层(QEI)场地下伏基岩为中生代燕山期粗粒花岗岩(Y53)。2.2.2 地下水条件场地地下水主要有二种类型。一是地表水,场地貌属于低丘陵-洼地地貌,勘察期间场地内西南有洼地表层有少量污水外,其它区域未见有地表水,但在雨季,尤其

7、在暴雨季节,洼地内形成临时性洪流。二是地下水,场地内含粗砂粉粘土层,有机质粉质粘土、含角砾粘土层、砾质粉质粘土层及全风化粗粒花岗层可视为弱适透水层或相对隔水层,人工填土层含水性及透水性一般,属弱含水,弱透水性地层,地下不类型为孔隙水。场地砾砂层为强透水层,赋存于其中的地下水具微承压性,强风化粗粒花岗岩、微风化粗粒花岗岩为弱含水、弱透水层,赋存于其中的地下水基岩裂隙水,亦具有微承压性。场地地下水主要受大气候渗水补给,径流方向大体由北向南,由高向低,水位变化因季节而异,勘察期间,地下水位变化较大,测得稳定水位埋深0.87.8m,标高83.4592.25 m。2.2.3 不良地质现象本基坑工程在施工

8、过程正逢深圳地区雨季,在施工中若遇到暴雨或连续降雨,会对基坑边坡造成一定的不良影响,易诱发灾害,必须及时进行基坑支护。施工中在暴雨来临之前,要及时采用塑料布等不透明材料、遮雨棚等覆盖基坑顶部薄弱区,设置截水设施,避免雨水对基坑支护的施工造成影响。2.3 主要设计参数2.3.1 设计原则1、本工程基坑开挖部分位于填土层内,开挖深度较深,基坑设计安全等级定为三级。2、基坑加固支护体为临时性工程,设计应用时间为1自然年。2.3.2 结构形式1、 本工程基坑包括两部分,即:风雨操场基坑、综合楼基坑。风雨操场基坑深5.4m5.8 m,综合楼基坑深5.2m5.8 m m。2、 风雨操场基坑、综合楼一期基坑

9、采用“放坡+钢花管支护+挂网喷射砼”和放坡+打入式土钉+挂网喷射砼两种支护形式。2.3.2 基坑支护设计方案本项目根据基坑周边的地质条件、地形条件,本着经济性、安全性、施工方便可行性及环保考虑,形成本基坑支护的设计方案具体如下:本项目基坑根据现状地形、地层情况和基坑深度采用复合土钉墙和坡率法相结合的支护型式,具体如下(图示见2.4、2.5):(1)风雨操场1-1剖面(ABCDE段)基坑支护深度5.4m,采用“1:1放坡+483.0注浆钢花管支护 L=4.06.支护。(2)风雨操场2-2剖面(EFGHA段)基坑支护深度5.45.8m,采用“1:1放坡+16打入式土钉 L=1.*1.3m支护。(3

10、)综合楼一期1-1剖面(ABCD与MNPQ段)基坑支护深度5.2m, 采用“1:1放坡+483.0注浆钢花管支护 L=4.06.支护。(4)综合楼一期场2-2剖面(DEFGHJKLM段)基坑支护深度5.2m,采用“1:1放坡+16打入式土钉 L=1.*1.3m支护。2.4 主要工程量本工程主要工程量见表2.1。表2.1 主要工程量统计表序号项目名称计量单位工程量1钢花管土钉支护m 456.732锚筋土钉支护吨2.3363挂网喷射砼m24072.634排水沟砌筑m1022.825地面硬地化m2 306.856集水池座68基坑土方开挖与外运m3363502.5 主要施工技术要求2.5.1一般要求1

11、) 图中尺寸除特别说明外,标高、坐标单位以m计,其余均以为mm计,施工前应仔细查明基坑周边管线布置情况,根据实际情况对支护设计进行必要的调整。基坑四周地面附加荷载不得超过10Kpa,且附加荷载离开基坑坑顶距离不得少于3.0 m2) 土方开挖应严格按规范执行,原则上采用机械与人工开挖相结合,土方分层分段开挖,分段开挖长度约3050m,且应根据土钉布置对应设置分层厚度,采用机械开挖,应在基坑坑壁留150300厚土层由人工挖掘修整,坑底留400厚土层,待施工完成再进行开挖,并由人工挖掘修整。2.5.2 钢筋土钉与注浆钢花管1) 采用土钉16打入式土钉,直接用大锤打入成型2) 采用注浆钢花管采用地质钻

12、机成孔,孔径不小于130mm,注浆钢花管注浆压力2.0MPa,每米水泥用量35kg。3) P.O用纯水泥浆灌注,水泥可采用P.O 42.5R水泥,水灰比0.500.6,且保证浆体强度不低于M20。4) 土钉设计抗拔力在填土中为3kN/m,抗拔力检验值为设计值的1.2倍。5) 孔口采取有效措施(编制袋)封堵,采用带压注浆工艺,确保注浆体饱满。图2.6 钢花管土钉大样图2.5.3 喷射混凝土1)喷射混凝土厚度80mm。2)喷射混凝土强度C20,水泥、砂、石子配合比例为122.5或根据配合比试验进行。3)土钉墙面层钢筋网按6200200布置,在土钉端头设水平向216加强钢筋,以固定钢筋网片。图2.1

13、0 挂网喷锚大样图2.5.6 排水系统1)基坑支护长度较长,故坡顶截水沟和坡底排水沟排水坡率不小于0.1%。2)在拐角处设集水坑,集水坑内径1000800800,其他位置按30m间距设集水坑。基坑内水通过集水坑抽排至坑顶排水沟,流经沉淀池后排入市政排水系统。3)本基坑原则上不采取止水措施,在出水严重部位可设置泄水孔,泄水孔以2m(竖向距)3m(水平距)间距设置,泄水孔深400mm,孔径100,排水管材为内径40PVC管,开孔率不少于25,外包2层滤网。图2.11 排水系统结构图3 施工管理重点、难点及保证措施3.1 工程的重点和难点通过对施工图纸、地质勘察报告及现场的踏勘及目前工程的进展情况,

14、我公司认为,本工程的施工重点、难点多,难度较大。3.1. 1本工程的施工重点由于本基坑支护形式较简单,但是工程量不大,其中有钢花管土钉456.73m,挂网喷射砼4072.63,但是整个项目总工期为150天,由于工序较多,既有边坡又有基坑,且分段分区施工,这样分配给每个区的具体项目时间并不多,显得前期的基坑工期非常紧张。边坡支护结构的施工若有滞后,则必然影响到基坑施工工期,因此保证边坡工程的进度是一个施工重点。根据该3个节点工程,本工程的施工重点有以下几点。(1)人工挖孔、沉管素砼桩及扶壁式挡墙的施工,如果施工不当,会影响整个边坡支护结构的工期,进而影响到基坑施工工期;(2)边坡部分锚索的施工,

15、由于框架梁部分还是桩锚部分锚索施工均在较为松散的粉砂岩残积土层或破碎的强风化、中风化粉砂岩层中施工,一旦遇到诸多问题,锚索不能及时完工,直接影响整个边坡工程的工期,进而影响基坑施工工期。(3)场内土石方的挖运,进而影响基坑施工工期因此该3项子项工程为本次基坑施工的重点,如果该3项工程都能顺利进行,则整个基坑支护工程将控制在规定的计划工期保质保量完成。3.1.2 本工程的施工难点根据对场地研究,本工程施工难点有以下几个方面。(1)场地面土石方的挖运,西侧环侧东路高压电线,北侧龙颈岭房子、东侧佳兆业临时项目部、花场房子未拆迁的影响也是本工程一大难点。(2)基坑场地每个区挖运土方量均不少,高边坡坡脚(填方区)需要大规模填方、挖方区需要大规模挖方,但是基坑的施工在前,因此开始施工的场地内土方挖运多余土方需要外运弃置和场内平衡也是本工程一大难点。(3)由于部分锚索在松散和裂隙发育的岩体内成孔,极易引起漏

展开阅读全文
相关资源
猜你喜欢
相关搜索

当前位置:首页 > 建筑/环境 > 设计及方案

copyright@ 2008-2023 1wenmi网站版权所有

经营许可证编号:宁ICP备2022001189号-1

本站为文档C2C交易模式,即用户上传的文档直接被用户下载,本站只是中间服务平台,本站所有文档下载所得的收益归上传人(含作者)所有。第壹文秘仅提供信息存储空间,仅对用户上传内容的表现方式做保护处理,对上载内容本身不做任何修改或编辑。若文档所含内容侵犯了您的版权或隐私,请立即通知第壹文秘网,我们立即给予删除!