临时活动板房防台风加固方案-最新.docx

上传人:p** 文档编号:1011981 上传时间:2024-06-15 格式:DOCX 页数:6 大小:159.77KB
下载 相关 举报
临时活动板房防台风加固方案-最新.docx_第1页
第1页 / 共6页
临时活动板房防台风加固方案-最新.docx_第2页
第2页 / 共6页
临时活动板房防台风加固方案-最新.docx_第3页
第3页 / 共6页
临时活动板房防台风加固方案-最新.docx_第4页
第4页 / 共6页
临时活动板房防台风加固方案-最新.docx_第5页
第5页 / 共6页
临时活动板房防台风加固方案-最新.docx_第6页
第6页 / 共6页
亲,该文档总共6页,全部预览完了,如果喜欢就下载吧!
资源描述

《临时活动板房防台风加固方案-最新.docx》由会员分享,可在线阅读,更多相关《临时活动板房防台风加固方案-最新.docx(6页珍藏版)》请在第壹文秘上搜索。

1、活动板房防台风加固方案一、工程概况项目名称:某某(某#某#住宅楼、某栋及某期地下室);建设地点:某某;建设单位:某某房地产开发有限公司;施工单位:某某建筑工程有限责任公司;设计单位:某某设计(集团)有限公司;监理单位:某某工程咨询有限公司;勘察单位:某某勘察设计有限公司;建设规模:总建筑面积约为*m,其中某#住宅楼,地上32层,框剪结构,高度96.9米,建筑面积*平方米;某#住宅楼,地上32层,框剪结构,高度96.6米,建筑面积*平方米;某栋,地上3层,框架结构,高度12米,建筑面积XX平方米;地下2层,框剪结构,建筑面积*平方米。本工程因办公、生活需要需搭设临时活动板房供项目部管理人员及劳务

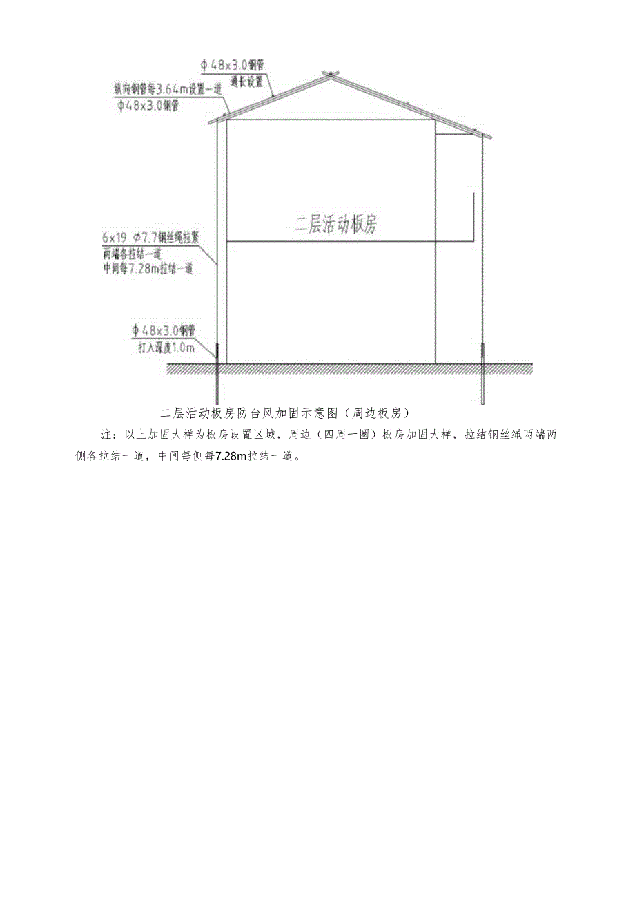
2、人员使用。办公、生活区工人宿舍、管理人员宿舍为双层临时活动板房,活动板房房间基本尺寸3.6m5.4m,采用的轻钢组合板房为标准型中档房,屋面形式为双坡型。办公、生活区平面布置图如下所示。某市地处某省南端,某东北岸,在夏秋季节,台风登陆的概率较大。某某(某#-某#住宅楼、某栋及某期地下室)工程地处某市市区沿海地段,对于临时活动板房(生活区、办公区与施工现场),需要考虑在台风来之前,采取防台风加固措施,确保在暴雨及台风天气来临之际,活动板房的整体安全性。活动板房的具体加固做法为:在板房屋面,采取648X3.0钢管,竖向设3.64m-道,横向在屋面顶部、坡屋面中部及屋面檐口处各一道,采用扣件搭设钢管

3、网格架,在板房四角部位及纵向两侧边中部,采用地锚与地面拉结加固,拉结采用6X1907.7钢丝绳进行拉结加固,钢丝绳拉结时必须拉紧(采用葫芦拉紧,或采用M12花篮螺栓调节拉紧)。具体做法详见下图:二层活动板房防台风加固示意图(周边板房)注:以上加固大样为板房设置区域,周边(四周一圈)板房加固大样,拉结钢丝绳两端两侧各拉结一道,中间每侧每7.28m拉结一道。M83C噪筲隘冬株3.64m涯-44置科8x3.哪,:1.卜”解冬麟T中购破笫二番48x3.0M1.Cm二层活动板房防台风加固示意图(中间板房)单层活动板房防台风加固示意图注:以上加固大样为板房设置区域,中部(中间区域)板房加固大样,当板房长度

4、222.00m时,拉结钢丝绳两端两侧各拉结一道,中间每侧拉结两道;当板房长度V22.00m时,拉结钢丝绳两端两侧各拉结一道,中间每侧拉结一道。注:以上加固大样,当板房长度222.00m时,拉结钢丝绳两端两侧各拉结一道,中间每侧拉结两道;当板房长度V22.0Om时,拉结钢丝绳两端两侧各拉结一道,中间每侧拉结一道。048x3.0Fi1.三30脑普SMM1000活动板房加固地锚大样示意图钢丝绳卡扣布置大样三、施工安全注意事项(1)本着“安全第一、预防为主、综合治理”的指导原则,为确保整个工程的安全目标实现,在活动板房加固施工过程中,应加强安全技术管理措施的落实和实施。(2)钢管网格架搭设人员必须是经

5、过现行国家标准特种作业人员安全技术培训考核管理规定考核合格的专业架子工。上岗人员应进行体检,合格者方可持证上岗作业。(3)搭设人员必须戴安全帽、系安全带、穿防滑鞋。(4)各构配件质量与搭设质量,按规范规定进行检查验收,合格后方可使用。(5)当有六级级六级以上大风和雾、雨等天气时,应停止高处施工作业。(6)雨天后作业,必须进行检查和验收,合格后方可进行作业。(7)高处作业人员应做好分工和配合,不得一人单独作业,传递杆件应掌握好重心,平稳传递。不要用力过猛,以免引起人身或杆件失衡。对每完成的一道工序,要相互询问并确认才能进行下一道工序。(8)作业人员应佩戴工具袋,工具用后装于袋中,以免掉落伤人。架设材料要随上随用,以免放置不当时掉落。(9)作业前应注意检查作业环境是否可靠,安全防护设施是否齐全有效,确认无误后方可作业。(10)活动板房加固地锚,必须牢固可靠,钢丝绳拉紧,钢丝绳应采用铁丝等辅助绑扎固定牢固,防止其沿钢管纵向滑动。(11)进行电、气焊作业时,必须有防火措施和专人监护。(12)钢管网格架搭设时,地面应设围栏和警戒标志,并派专人监守,严禁非操作人员入内。

展开阅读全文
相关资源
猜你喜欢
相关搜索

当前位置:首页 > 办公文档 > 解决方案

copyright@ 2008-2023 1wenmi网站版权所有

经营许可证编号:宁ICP备2022001189号-1

本站为文档C2C交易模式,即用户上传的文档直接被用户下载,本站只是中间服务平台,本站所有文档下载所得的收益归上传人(含作者)所有。第壹文秘仅提供信息存储空间,仅对用户上传内容的表现方式做保护处理,对上载内容本身不做任何修改或编辑。若文档所含内容侵犯了您的版权或隐私,请立即通知第壹文秘网,我们立即给予删除!