配水井计算书.docx

上传人:p** 文档编号:456651 上传时间:2023-09-01 格式:DOCX 页数:12 大小:95.16KB
下载 相关 举报
配水井计算书.docx_第1页
第1页 / 共12页
配水井计算书.docx_第2页
第2页 / 共12页
配水井计算书.docx_第3页
第3页 / 共12页
配水井计算书.docx_第4页
第4页 / 共12页
配水井计算书.docx_第5页
第5页 / 共12页
配水井计算书.docx_第6页
第6页 / 共12页
配水井计算书.docx_第7页
第7页 / 共12页
配水井计算书.docx_第8页
第8页 / 共12页
配水井计算书.docx_第9页
第9页 / 共12页
配水井计算书.docx_第10页
第10页 / 共12页
亲,该文档总共12页,到这儿已超出免费预览范围,如果喜欢就下载吧!
资源描述

《配水井计算书.docx》由会员分享,可在线阅读,更多相关《配水井计算书.docx(12页珍藏版)》请在第壹文秘上搜索。

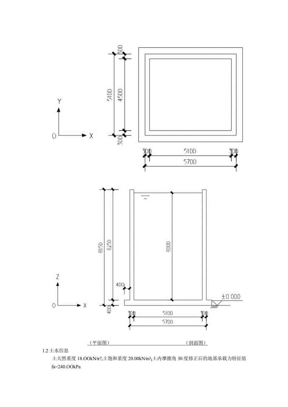
1、矩形水池设计(JSC-I)项目名称构件编号B期设计校对审核执行规范:混凝土结构设计规范(GB50010-2010),本文简称混凝土规范建筑地基基础设计规范(GB50007-2011),本文简称地基规范建筑结构荷载规范(GB50009-2012),本文简称荷载规范给水排水工程构筑物结构设计规范(GB50069-2002),本文简称给排水结构规范给水排水工程钢筋混凝土水池结构设计规程(CECSI38-2002),本文简称水池结构规程钢筋:d-HPB300;D-HRB335;E-HRB400;F-RRB400;G-HRB500;Q-HRBF400;R-HRBF5001基本资料1. 1几何信息水池类型

2、:无顶盖全地上长度L=5.700m,宽度B=5.100m,高度H=8.650m,底板底标高=0.OOOm池底厚h3=400mm,池壁厚tl=300mm,底板外挑长度t2=400mm注:地面标高为0.000。(平面图)(剖面图)1.2土水信息土天然重度18.OOkN?,土饱和重度20.00kNm土内摩擦角30度修正后的地基承载力特征值fa=240.OOkPa地下水位标高-2.OOOm,池内水深8.000m,池内水重度10.00kNm浮托力折减系数1.00,抗浮安全系数Kf=I.051. 3荷载信息活荷载:地面20.OOkN/m)组合值系数0.90恒荷载分项系数:水池自重L30,其它1.30活荷载

3、分项系数:地下水压L50,其它1.50活载调整系数:地下水压LO0,其它LOO活荷载准永久值系数:顶板L00,地面LO0,地下水L00,温湿度1.00考虑温湿度作用:池内外温差10.0度,内力折减系数065,舱线膨胀系数LoO(I(T7C)考虑温度材料强度折减:受热温度10O0C1.4钢筋碎信息混凝土:等级C30,重度25.OOkN/m*泊松比0.20纵筋保护层厚度(mm):池壁(内35,外35),底板(上35,下35)钢筋级别:HRB400,裂缝宽度限值:0.20mm,配筋调整系数:1.00按裂缝控制配筋计算构造配筋采用混凝土规范GB50010-20102计算内容(1)地基承载力验算(2)抗

4、浮验算(3)荷载计算(4)内力(考虑温度作用)计算(5)配筋计算(6)裂缝验算(7)混凝土工程量计算3计算过程及结果单位说明:弯矩:kN.m/m钢筋面积:m/裂缝宽度:mm计算说明:双向板计算按查表恒荷载:水池结构自重,土的竖向及侧向压力,内部盛水压力.活荷载:顶板活荷载,地面活荷载,地下水压力,温湿度变化作用.裂缝宽度计算按长期效应的准永久组合.水池方位定义如下:水池方位示意图3.1地基承载力验算3.1.1基底压力计算(1)水池自重GC计算池壁自重G2=1262.25kN底板自重G3=383.50kN水池结构自重Gc=G2+G3=1645.75kN(2)池内水重GW计算池内水重GW=I836

5、.00kN(3)覆土重量计算池顶覆土重量Gtl=0kN池顶地下水重量GSI=0kN底板外挑覆土重量Gt2=0.00kN基底以上的覆盖土总重量Gt=Gtl+Gt2=0.00kN基底以上的地下水总重量GS=Gsl+Gs2=0.00kN(4)活荷载作用Gh地面活荷载作用力Gh2=185.60kN活荷载作用力总和Gh=Gh2=185.60kN(5)基底压力Pk基底面积:A=(L+2Xt2)(B+2t2)=6.500X5.900=38.35m基底压强:Pk=(Gc+Gw+Gt+Gs+Gh)/A=(1645.75+1836.00+0.00+0.00+185.60)/38.350=95.63Wm3.1.2结

6、论:Pk=95.63fa=240.00kPa,地基承载力满足要求。3.2抗浮验算由于地下水位低于池底标高,不需要进行本项验算3.3荷载计算3.3.1池壁荷载计算:池外荷载:静止土压力系数Ka=0.50侧向土压力荷载组合(kN?):部位(标高)土压力标准值水压力标准值活载标准值基本组合准永久组合池壁顶端(8.650)0.000.000.000.000.00底板顶面(0.400)0.000.000.000.000.00地面(0.000)0.000.000.000.000.00(2)池内底部水压力:标准值=80.00kN2,基本组合设计值=104.00kNm23.3.2 底板荷载计算(池内无水,池外

7、填土):水池结构自重标准值GC=1645.75kN基础底面以上土重标准值Gt=0.OOkN基础底面以上水重标准值GS=0.OOkN基础底面以上活载标准值Gh=185.60kN水池底板以上全部竖向压力基本组合:Qb=(1645.751.30+0.001.30+0.001.501.00+185.60X1.50X0.90X1.00)/38.350=62.32kNm2水池底板以上全部竖向压力准永久组合:Qbc=(1645.75+0.00+0.001.00+20.009.280X1.00)/38.350=47.75kNm2板底均布净反力基本组合:Q=62.32-0.400X25.00X1.30=49.3

8、2kNm2板底均布净反力准永久组合:Qe=47.75-0.400X25.00=37.75Wm3.3.3 底板荷载计算(池内有水,池外无土):水池底板以上全部竖向压力基本组合:Qb=1645.751.30+(5.100X4.500X8.000)X10.001.3038.350=118.03kNm2板底均布净反力基本组合:Q=118.03-(0.400X25.001.30+8.00010.00X1.30)=1.03kNm2水池底板以上全部竖向压力准永久组合:Qbe=1645.75+(5.100X4.500X8.000)10.00/38.350=90.79kNm2板底均布净反力准永久组合:Qc=90

9、.79-(0.400X25.00+8.OOOX10.00)=0.79kNm23.4内力,配筋及裂缝计算弯矩正负号规则:池壁:内侧受拉为正,外侧受拉为负底板:上侧受拉为正,下侧受拉为负荷载组合方式:1.池外土压力作用(池内无水,池外填土)2 .池内水压力作用(池内有水,池外无土)3 .池壁温湿度作用(池内外温差=池内温度-池外温度)(1) XZ(前后)侧池壁内力:厂I-*出*Mxz弯矩示意图MI一平行于L方向板中心点的弯矩;MZ一平行于IZ方向板中心点的弯矩;M0x一一平行于L方向板边缘弯矩;Mz一平行于L方向板边缘弯矩。计算跨度:Ix=5.400m,IZ=8.250m,三边固定,顶边自由池壁类

10、型:普通池壁,按双向板计算1.池外填土,池内无水时,荷载组合作用弯矩表(kN.m)基本组合作用弯矩表(kN.mm)池外土内力组合跨中MX跨中Mz边缘嚷边缘MN底)边缘MOZ(顶)M0.000.000.000.000.00池外土+温湿度作用内力组合跨中MX跨中虬边缘牝边缘Ml),(底)边缘MoZ(顶)池外土压力0.000.000.000.000.00温湿度作用-22.12-22.18-24.69-23.52-0.00M-22.12-22.18-24.69-23.52-0.00准永久组合作用弯矩表(kN.mm)池外土内力组合跨中MX跨中Mx边缘MoX边缘Mz(底)边缘MOZ(顶)M0.000.00

11、0.000.000.00池外+温湿度作用内力组合跨中Mx跨中Mz边缘址边缘MN底)边缘MoZ(顶)池外土压力0.000.000.000.000.00温湿度作用-16.39-16.43-18.29-17.430.00M-16.39-16.43-18.29-17.43-0.002.池内有水,池外无土时,荷载组合作用弯矩表(kN.mm)基本组合作用弯矩表(kN.mm)池内水内力组合跨中MX跨中Mz边缘MoX边缘M02(JS)边缘MoZ(顶)M-56.61-22.96118.00128.38-0.00池内水+温湿度作用内力组合跨中MX跨中MZ边缘M0x边缘MOZ(底)边缘MOZ(顶)池内水压力-56.

12、61-22.96118.00128.38-0.00温湿度作用-22.12-22.18-24.69-23.52-0.00M-78.73-45.1593.31104.860.00准永久组合作用弯矩表(kN.mm)池内水内力组合跨中MX跨中Mz边缘Ml)X边缘Mz(底)边缘MoZ(顶)M-43.55-17.6690.7798.76-0.00池内水+温湿度作用内力组合跨中MX跨中电边缘址边缘MN底)边缘MoZ(顶)池内水压力-43.55-17.6690.7798.760.00温湿度作用-16.39-16.43-18.29-17.43-0.00M-59.93-34.1072.4881.330.00(2)

13、YZ(左右)侧池壁内力:弯矩示意图My平行于1,方向板中心点的弯矩;Mz平行于IZ方向板中心点的弯矩;M0y平行于L方向板边缘弯矩;MoZ平行于L方向板边缘弯矩。计算跨度:Iy=4.800叫I2=8.250m,三边固定,顶边自由池壁类型:普通池壁,按双向板计算1.池外填土,池内无水时,荷载组合作用弯矩表(kN.m)基本组合作用弯矩表(kN.m)池外土内力组合跨中My跨中Mz边缘MOy边缘(底)边缘MoZ(顶)M0.000.000.000.000.00池外土+温湿度作用内力组合跨中My跨中Mz边缘M0y边缘MN底)边缘MoZ(顶)池外土压力0.000.000.000.000.00温湿度作用-22.28-22.60-24.42-23.33-0.00M-22.28-22.60-24.42-23.33-0.00准永久组合作用弯矩表(kN.mm)池外土内力组合跨中My跨中Mz边缘M0y边缘Mz(底)边缘MoZ(顶)M0.000.000.000.000.00池外土+温湿度作用内力组合跨中My跨中Mx边缘MOy边缘M晨底)边缘MoZ(顶)池外土压力

展开阅读全文
相关资源
猜你喜欢
相关搜索

当前位置:首页 > 建筑/环境 > 水利工程

copyright@ 2008-2023 1wenmi网站版权所有

经营许可证编号:宁ICP备2022001189号-1

本站为文档C2C交易模式,即用户上传的文档直接被用户下载,本站只是中间服务平台,本站所有文档下载所得的收益归上传人(含作者)所有。第壹文秘仅提供信息存储空间,仅对用户上传内容的表现方式做保护处理,对上载内容本身不做任何修改或编辑。若文档所含内容侵犯了您的版权或隐私,请立即通知第壹文秘网,我们立即给予删除!