地下室外墙计算(污泥).docx

上传人:p** 文档编号:556181 上传时间:2023-11-01 格式:DOCX 页数:9 大小:72.67KB
下载 相关 举报
地下室外墙计算(污泥).docx_第1页
第1页 / 共9页
地下室外墙计算(污泥).docx_第2页
第2页 / 共9页
地下室外墙计算(污泥).docx_第3页
第3页 / 共9页
地下室外墙计算(污泥).docx_第4页
第4页 / 共9页
地下室外墙计算(污泥).docx_第5页
第5页 / 共9页
地下室外墙计算(污泥).docx_第6页
第6页 / 共9页
地下室外墙计算(污泥).docx_第7页
第7页 / 共9页
地下室外墙计算(污泥).docx_第8页
第8页 / 共9页
地下室外墙计算(污泥).docx_第9页
第9页 / 共9页
亲,该文档总共9页,全部预览完了,如果喜欢就下载吧!
资源描述

《地下室外墙计算(污泥).docx》由会员分享,可在线阅读,更多相关《地下室外墙计算(污泥).docx(9页珍藏版)》请在第壹文秘上搜索。

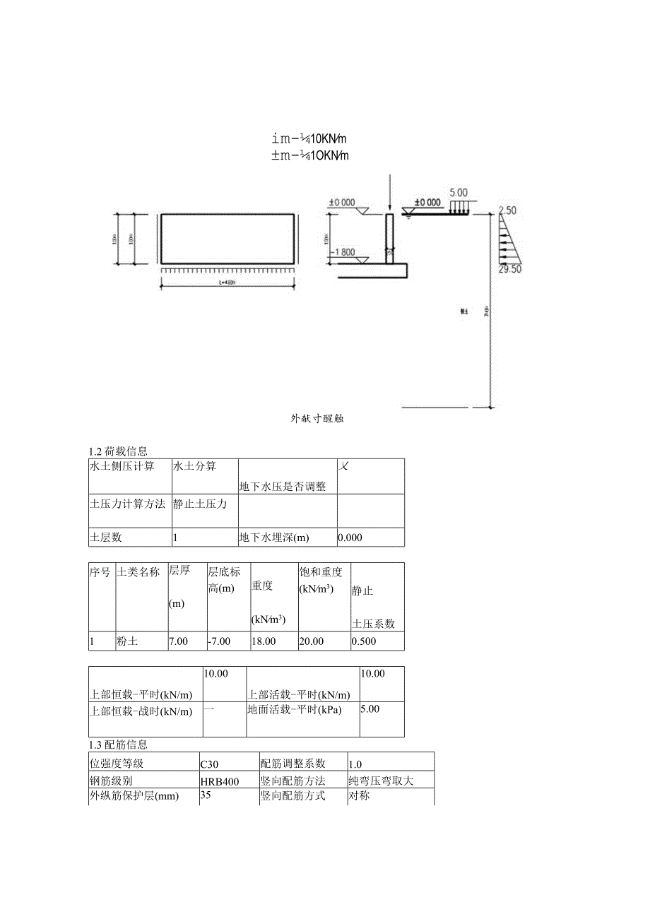
1、地下室外墙计算(污泥)项目名称构件编号日期设计校对审核执行规范:混凝土结构通用规范(GB55008-2021),本文简称混凝土通用规范混凝土结构设计规范98500102010(2015年版),本文简称混凝土规范工程结构通用规范(GB55001-2021)建筑结构荷载规范(GB50009-2012),本文简称荷载规范人民防空地下室设计规范(GB50038-2005),本文简称人防规范钢筋:d-HPB3(M);D-HRB335;E-HRB400;F-RRB400;G-HRB500;Q-HRBF400;R-HRBF5(X)1基本资料1.1儿何信息地下室层数1地下室顶标高(111)0.000墙宽L(m

2、)4.800外地坪标高(m)0.000层高表层层高(m)外墙厚(mm)T层1.800250板边支撑条件表板边顶边底边侧边支承方式自由固定简支im-10KNmm-1OKNm外献寸醒触1.2荷载信息水土侧压计算水土分算地下水压是否调整乂土压力计算方法静止土压力土层数1地下水埋深(m)0.000序号土类名称层厚(m)层底标高(m)重度(kNm3)饱和重度(kNm3)静止土压系数1粉土7.00-7.0018.0020.000.500上部恒载-平时(kN/m)10.00上部活载-平时(kN/m)10.00上部恒载-战时(kN/m)一地面活载-平时(kPa)5.001.3配筋信息位强度等级C30配筋调整系

3、数1.0钢筋级别HRB400竖向配筋方法纯弯压弯取大外纵筋保护层(mm)35竖向配筋方式对称内纵筋保护层(mm)35裂缝限值(mm)0.30裂缝最大保护层(mm)35裂缝控制配筋泊松比0.20考虑P-效应.乂1.4计算选项信息竖向弯矩计算方法连续梁板计算类型平时组合弹性板支座弯矩调幅幅度(%)0.0塑性板B活载准永久值系数0.50水压准永久值系数0.50活载调整系数YL1.002计算(1)荷载计算(2)内力计算(3)配筋计算(4)裂缝验算荷载说明:永久荷载:土压力荷载,上部恒载-平时,可变荷载:地下水压力,地面活载,上部活载-平时平时组合:平时荷载基本组合战时组合:战时荷载基本组合准永久组合:

4、平时荷载准永久组合(用于裂缝计算)2.1 荷载计算2.1.1 墙上竖向压力平时组合(kN/m):1.30010.000+1.50010.000=28.000准永久组合(kN/m):10.000+0.50010.000=15.0002.1.2 侧压荷载计算(1)上侧压力采用静止土压力、水土分算,任意深度处土侧压力计算P=kJiji=1式中:p土压力(kN?)k土压力系数,静止土压力取静止土压力系数,主动土压力取主动土压力系数k=tan2(450-/2)土的容重,地下水以上取天然容重,地下水以下水土分算时取浮容重,合算时取饱和容重(kN?)hi计算深度以上各土层厚度(m)50(2)荷载组合系数表组

5、合土压力水压力平时地面活我上部恒载上部活载平时组合1.301.501.501.301.50(3)侧压力荷载组合计算(kPa):位置标高土压力水压力地面活载等效平时组合准永久组合-1层顶0.000.000.002.503.751.25-1层底-1.809.0018.002.5042.4519.25(4)侧压荷教分解结果表(kPa):平时组合准永久组合地下室层号均布荷载三角荷载均布荷载三角荷载-13.75038.7001.25018.000注:表中所列三角荷载值是对应于各层底的荷载值(最大)2.2内力计算按连续梁计算竖向弯矩按连续梁模型计算,水平向弯矩仍按板块模型计算调幅前(kN.mm)层部位平时

6、组合准永久组合水平向T层顶边左0.000.00顶边中3.951.70顶边右0.000.00左边0.000.00跨中1.370.60右边0.000.00竖向T层顶边0.000.00跨中-4.13-1.72底边-26.97-11.74结果不进行调幅平时组合弯矩图竖向弯死图一平时组合(kN.m)竖向弯矩图一准永久组合(kN.m/m)准永久组合弯矩图Oo004沏考受日一平时纵仪kN.mm)2.3配筋及配筋成果表2.3.1 配筋说明:(1)配筋方法水平按纯弯配筋,竖向取压弯与纯弯配筋的大值(2)单位说明:以下各表格中单位除说明外,配筋面积单位:mm2/m,裂缝宽度单位:mm,弯矩单位kN.mm,轴力单位

7、kNm,配筋率:2.3.2平时组合计算配筋表部位M(kN.mm)N(kNm)As(mm2m)配筋率先T层水平向顶边左-内侧0.005000.20顶边左-外侧0.005000.20顶边中-内侧3.955000.20顶边中-外侧3.955000.20顶边右-内侧0.005000.20顶边右-外侧0.005000.20左边-内侧0.005000.20左边-外侧0.005000.20跨中-内侧1.375000.20跨中-外侧1.375000.20右边-内侧0.005000.20右边-外侧0.005000.20竖向顶边-内侧0.0028.05000.20顶边-外侧0.0028.05000.20跨中-内侧

8、-4.1328.05000.20跨中-外侧-4.1328.05000.20底边-内侧-26.9728.05000.20底边-外侧-26.9728.05000.202.3.3控制情况计算配筋表层部位计算AS选筋实配AS实配筋率控制组合水平向顶边左-内侧500E143005130.21平时组合顶边左-外侧500E143005130.21平时组合顶边中-内侧500E143005130.21平时组合顶边中-外侧500E143005130.21平时组合顶边右-内侧500E143005130.21平时组合顶边右-外侧500E143005130.21平时组合左边-内侧500E14()3005130.21平时

9、组合左边-外侧500EI43005130.21平时组合跨中-内侧500E143005130.21平时组合跨中-外侧500EI43005130.21平时组合右边-内侧500E143005130.21平时组合右边-外侧500E143005130.21平时组合竖向顶边-内侧500E143005130.21平时组合顶边-外侧500E143005130.21平时组合跨中-内侧500E143005130.21平时组合跨中-外侧500E143005130.21平时组合底边-内侧500E143005130.21平时组合底边-外侧500E143005130.21平时组合注:表中“计算As”取平时组合与战时组合计

10、算配筋的较大值2.4裂缝验算按实际配筋,及相应于准永久组合的弹性内力进行计算裂缝宽度限值030Omm层部位MqNq选筋实配AS裂缝(mm)结论T层水平向顶边左-内f0.0E143005130.000满足顶边左-外0.0E143005130.000满足侧顶边中-内侧1.7E143OO5130.006满足顶边中-外侧1.7E143005130.000满足顶边右-内f0.0E143005130.000满足顶边右-外侧0.0E143(X)5130.000满足左边-内侧0.0E143005130.000满足左边-外侧0.0E143005130.000满足跨中-内侧0.6E143005130.002满足跨

11、中-外侧0.6E143005130.000满足右边-内侧0.0E143005130.000满足右边-外侧0.0E143005130.000满足竖向顶边-内侧0.015.0E143005130.000满足顶边-外侧0.015.0E143005130.000满足跨中-内侧-1.715.0E143(X)5130.000满足跨中-外侧-1.715.0E143005130.003满足底边-内侧-11.715.0E143(M)5130.000满足底边-外侧-11.715.0E143005130.038满足最大裂缝宽度0038v=0.300,满足要求。2.5实际配筋表层部位选筋实配面积配筋率配筋控制T层水平向顶边左-内侧E143005130.21平时组合顶边左-外侧E143005130.21平时组合顶边中-

展开阅读全文
相关资源
猜你喜欢
相关搜索

当前位置:首页 > 建筑/环境 > 环保行业

copyright@ 2008-2023 1wenmi网站版权所有

经营许可证编号:宁ICP备2022001189号-1

本站为文档C2C交易模式,即用户上传的文档直接被用户下载,本站只是中间服务平台,本站所有文档下载所得的收益归上传人(含作者)所有。第壹文秘仅提供信息存储空间,仅对用户上传内容的表现方式做保护处理,对上载内容本身不做任何修改或编辑。若文档所含内容侵犯了您的版权或隐私,请立即通知第壹文秘网,我们立即给予删除!