施工电梯预留孔技术交底调整技术交底.docx

上传人:p** 文档编号:937175 上传时间:2024-04-21 格式:DOCX 页数:3 大小:95.66KB
下载 相关 举报
施工电梯预留孔技术交底调整技术交底.docx_第1页
第1页 / 共3页
施工电梯预留孔技术交底调整技术交底.docx_第2页
第2页 / 共3页
施工电梯预留孔技术交底调整技术交底.docx_第3页
第3页 / 共3页
亲,该文档总共3页,全部预览完了,如果喜欢就下载吧!
资源描述

《施工电梯预留孔技术交底调整技术交底.docx》由会员分享,可在线阅读,更多相关《施工电梯预留孔技术交底调整技术交底.docx(3页珍藏版)》请在第壹文秘上搜索。

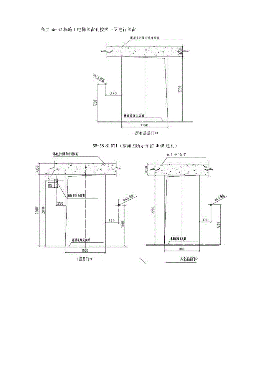
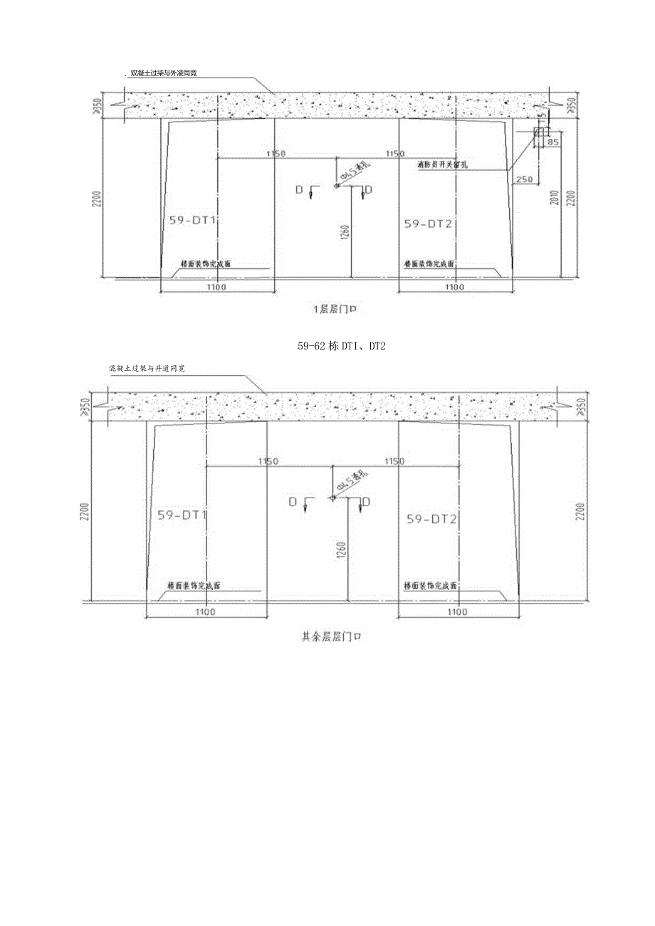
高层55-62栋施工电梯预留孔按照下图进行预留:55-58栋DTl(按如图所示预留45通孔)瓶1股部宽、双凝土过柒与外凌同竞59-62栋DTI、DT2混凝土过桀与并道同宽技术交底记录表 C2-1工程名称交底日期施工单位分项工程名称交底提要58栋北侧桩位调整做法交底编号交底内容:交底审核人交底人专业工长质检员交底时间架子队接受交底人班组长质检员接受交底时间操作人员签字:审核人I交底人接受交底人1、本表由施工单位填写,交谕单位与接受底单位各保存一不。2、分项工程施工技术交底时,应填写“分项工程名称”栏,其他技术交底可不填写。

展开阅读全文
相关资源
猜你喜欢
相关搜索

当前位置:首页 > 办公文档 > 往来文书

copyright@ 2008-2023 1wenmi网站版权所有

经营许可证编号:宁ICP备2022001189号-1

本站为文档C2C交易模式,即用户上传的文档直接被用户下载,本站只是中间服务平台,本站所有文档下载所得的收益归上传人(含作者)所有。第壹文秘仅提供信息存储空间,仅对用户上传内容的表现方式做保护处理,对上载内容本身不做任何修改或编辑。若文档所含内容侵犯了您的版权或隐私,请立即通知第壹文秘网,我们立即给予删除!