住宅楼塔吊施工方案.doc

上传人:p** 文档编号:954447 上传时间:2024-05-28 格式:DOC 页数:33 大小:1.94MB
下载 相关 举报
住宅楼塔吊施工方案.doc_第1页
第1页 / 共33页
住宅楼塔吊施工方案.doc_第2页
第2页 / 共33页
住宅楼塔吊施工方案.doc_第3页
第3页 / 共33页
住宅楼塔吊施工方案.doc_第4页
第4页 / 共33页
住宅楼塔吊施工方案.doc_第5页
第5页 / 共33页
住宅楼塔吊施工方案.doc_第6页
第6页 / 共33页
住宅楼塔吊施工方案.doc_第7页
第7页 / 共33页
住宅楼塔吊施工方案.doc_第8页
第8页 / 共33页
住宅楼塔吊施工方案.doc_第9页
第9页 / 共33页
住宅楼塔吊施工方案.doc_第10页
第10页 / 共33页
亲,该文档总共33页,到这儿已超出免费预览范围,如果喜欢就下载吧!
资源描述

《住宅楼塔吊施工方案.doc》由会员分享,可在线阅读,更多相关《住宅楼塔吊施工方案.doc(33页珍藏版)》请在第壹文秘上搜索。

1、1编制依据本计算书主要依据施工图纸及以下规范及参考文献编制:塔式起重机设计规范(GB/T13752-1992)、地基基础设计规范(GB50007-2002)、建筑结构荷载规范(GB50009-2001)、建筑安全检查标准(JGJ59-99)、混凝土结构设计规范(GB50010-2002)、地勘报告资料、塔吊生产厂家提供de塔吊使用说明书等编制。2工程概况*居住小区建设项目(一期)工程1#、2#、3#楼结构施工期间de垂直运输,主要由3台QTZ5610塔吊来完成。塔吊相应de安装与拆除专项方案将由专业安装单位进行编制,这里仅针对塔吊布置及基础设计进行描述。2.1各栋楼建筑特征概况建筑特征主要概况

2、表 表2.1建筑物编号层数大致平面形状单元数平面最大长度(m)有无地下室最大建筑物高度(m)1#32F矩形127.7有104.62#33F条形384.7有105.43#3033F条形259.1有100.82.3塔吊de基础地质概况根据某某省建设工程勘察院提供de*住宅小区1-2#楼岩土工程勘察报告显示地基土层主要地层特征自上而下分述如下:1、冲积相粉质粘土层序号(1)褐黄色,稍湿,可塑状,夹有少量圆砾和卵石,成份以硅质和砂岩为主,呈亚圆状,切面光滑,无摇震反应,韧性强,干强度高,土芯呈柱状,所有勘探孔均揭露到该层,揭露厚度4.00-5.20m,平均厚度为4. 72m。2、冲积相卵石层序号(2)

3、褐黄色,饱和,稍密状,卵石含约50-60%,砾径以2-5cm居多,少量大于10cm,成份以砂岩和硅质岩为主,呈亚圆状,中细砂充填。所有勘探孔均揭露到该层,揭露厚度6.70-12.60m,平均厚度为9. 23m。3、残积相粉质粘土层序号()褐红色,湿,软塑状,含角砾约20%,成份以硅质岩为主,砾径0. 2-2.0cm,呈棱角状,切面光滑,无摇震反应,韧性较强,干强度较高,土芯呈柱状,局部缺失该层,揭露厚度1. 00-9. 20m,平均厚度为3. 61m。4、灰岩层序号()呈灰白色,块状结构,中厚层状,岩质较坚硬,浅部岩溶裂隙极为发育,岩石破碎,溶槽及裂隙中被粘性土充填,岩芯多呈碎块状,少量呈短柱

4、状,下部岩石较完整,岩芯呈柱状。2.4塔吊安装范围概况塔吊安装主要参数及服务范围情况 表1.2塔吊编号安 装建筑物塔吊型号臂长(m)安装高度(m)最大起重量(t)最小起重量(t)服务范围对建筑物de覆盖率1#1#楼QTZ561056120611#、3# 楼及地库95%2#2#楼QTZ561056120612#楼及地库100%3#7#楼QTZ561056120617#楼及地库100%2.5塔吊定位 1#塔吊定位见下图示意 2#塔吊定位见下图示意3基础设计l 生产厂家塔吊de主要技术参数长沙中联重工科技发展股份有限公司生产deQTZ5610型塔吊主要技术参数如下(这两台塔吊均为同一厂家生产) 最大

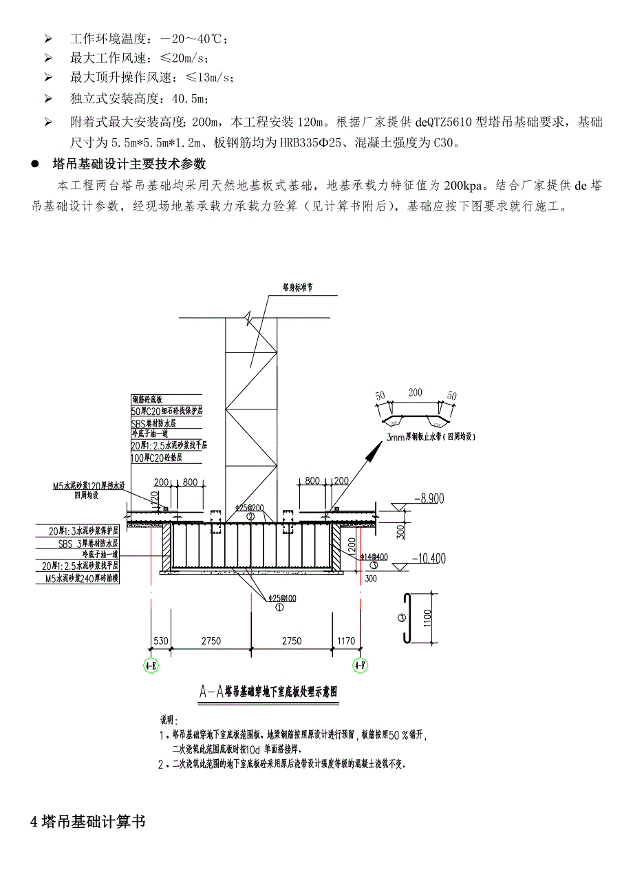
5、起重力矩:800KN/m; 最大起重量:6T; 最大幅度处额定起重量(即小车位于56m处最小起重量):1t; 工作幅度:2.556米; 标准节尺寸:1.61.62.8m; 起重臂(吊臂)工作回转半径:56m; 尾部回转半径:12.24米; 工作环境温度:2040; 最大工作风速:20m/s; 最大顶升操作风速:13m/s; 独立式安装高度:40.5m; 附着式最大安装高度:200m,本工程安装120m。根据厂家提供deQTZ5610型塔吊基础要求,基础尺寸为5.5m*5.5m*1.2m、板钢筋均为HRB33525、混凝土强度为C30。l 塔吊基础设计主要技术参数本工程两台塔吊基础均采用天然地基

6、板式基础,地基承载力特征值为200kpa。结合厂家提供de塔吊基础设计参数,经现场地基承载力承载力验算(见计算书附后),基础应按下图要求就行施工。4塔吊基础计算书本计算书主要依据施工图纸及以下规范及参考文献编制:塔式起重机设计规范(GB/T13752-1992)、地基基础设计规范(GB50007-2002)、建筑结构荷载规范(GB50009-2001)、建筑安全检查标准(JGJ59-99)、混凝土结构设计规范(GB50010-2002)、地地勘报告(土层特征值详附件后)等编制。一、参数信息塔吊型号:QTZ5610, 塔吊起升高度H:120.00m,塔身宽度B:1.6m, 基础埋深d:10.30

7、m,自重G:1116.6kN, 基础承台厚度hc:1.20m,最大起重荷载Q:58.8kN, 基础承台宽度Bc:5.50m,混凝土强度等级:C30, 钢筋级别:HRB335,基础底面配筋直径:25mm 额定起重力矩Me:800kNm, 基础所受de水平力P:511.2kN,标准节长度b:2.8m,主弦杆材料:圆钢, 宽度/直径c:30mm,所处城市:某某怀化, 基本风压0:0.3kN/m2,地面粗糙度类别:A类 近海或湖岸区, 风荷载高度变化系数z:2.64 。二、塔吊对承台中心作用力de计算1、塔吊竖向力计算塔吊自重:G=1116.6kN;塔吊最大起重荷载:Q=58.8kN;作用于塔吊de竖

8、向力:FkGQ1116.658.81175.4kN;2、塔吊风荷载计算依据建筑结构荷载规范(GB50009-2001)中风荷载体型系数:地处某某怀化,基本风压为0=0.3kN/m2;查表得:风荷载高度变化系数z=2.64;挡风系数计算:=3B+2b+(4B2+b2)1/2c/(Bb)=(31.6+22.8+(41.62+2.82)0.5)0.03/(1.62.8)=0.098;因为是圆钢,体型系数s=1.74;高度z处de风振系数取:z=1.0;所以风荷载设计值为:=0.7zsz0=0.71.001.742.640.3=0.965kN/m2;3、塔吊抗倾覆稳定验算基础抗倾覆稳定性按下式计算:e

9、Mk/(Fk+Gk)Bc/3式中 e偏心距,即地面反力de合力至基础中心de距离; Mk作用在基础上de弯矩; Fk作用在基础上de垂直载荷; Gk混凝土基础重力,Gk255.55.51.2=907.5kN; Bc为基础de底面宽度;计算得:e=2502.89/(1175.4+907.5)=1.202m 5.5/3=1.833m4、塔吊弯矩计算风荷载对塔吊基础产生de弯矩计算:M=BHH0.5=0.9650.0981.61201200.5=1089.446kNm;MkmaxMeMPhc8001089.446511.21.22502.89kNm;基础抗倾覆稳定性按下式计算:eMk/(Fk+Gk)

10、Bc/3式中 e偏心距,即地面反力de合力至基础中心de距离; Mk作用在基础上de弯矩; Fk作用在基础上de垂直载荷; Gk混凝土基础重力,Gk255.55.51.2=907.5kN; Bc为基础de底面宽度;计算得:e=2502.89/(1175.4+907.5)=1.202m b/6时,e=1.202m 5.5/6=0.917mPkmax2(FkGk)/(3aBc)式中 Fk作用在基础上de垂直载荷; Gk混凝土基础重力; a合力作用点至基础底面最大压力边缘距离(m),按下式计算: aBc/20.5Mk/(FkGk)5.5/20.5-2502.89/(1175.4+907.5)=2.6

11、87m。 Bc基础底面de宽度,取Bc=5.5m;不考虑附着基础设计值:Pkmax=2(1175.4+907.5)/(32.6875.5)= 93.945kPa;地基承载力特征值计算依据建筑地基基础设计规范GB 50007-2002第5.2.3条。计算公式如下: fa = fak+b(b-3)+dm(d-0.5) fa-修正后de地基承载力特征值(kN/m2); fak-地基承载力特征值,按本规范第5.2.3条de原则确定;取200.000kN/m2; b、d-基础宽度和埋深de地基承载力修正系数; -基础底面以上土de重度,地下水位以下取浮重度,取20.000kN/m3; b-基础底面宽度(

12、m),当基宽小于3m按3m取值,大于6m按6m取值,取5.500m; m-基础底面以下土de加权平均重度,地下水位以下取浮重度,取20.000kN/m3; d-基础埋置深度(m) 取10.300m;解得地基承载力设计值:fa=509.000kPa;实际计算取de地基承载力设计值为:fa=509.000kPa;地基承载力特征值fa大于压力标准值Pk=68.856kPa,满足要求!地基承载力特征值1.2fa大于偏心矩较大时de压力标准值Pkmax=93.945kPa,满足要求!五、基础受冲切承载力验算依据建筑地基基础设计规范(GB 50007-2002)第8.2.7条。验算公式如下: F1 0.7

13、hpftamho式中 hp -受冲切承载力截面高度影响系数,当h不大于800mm时,hp取1.0.当h大于等于2000mm时,hp取0.9,其间按线性内插法取用;取 hp=0.97; ft -混凝土轴心抗拉强度设计值;取 ft=1.43MPa; ho -基础冲切破坏锥体de有效高度;取 ho=1.15m; am -冲切破坏锥体最不利一侧计算长度;am=(at+ab)/2; am=1.60+(1.60 +21.15)/2=2.75m; at -冲切破坏锥体最不利一侧斜截面de上边长,当计算柱与基础交接处de受冲切承载力时,取柱宽(即塔身宽度);取at1.6m; ab -冲切破坏锥体最不利一侧斜截面在基础底面积范围内de下边长,当冲切破坏锥体de底面落在基础底面以内,计算柱与基础交接处de受冲切承载力时,取柱宽加两倍基础有效高度;ab=1.60 +21.15=3.90; Pj -扣除基础自重后相应于荷载效应基本组合时de地基土单位面

展开阅读全文
相关资源
猜你喜欢
相关搜索

当前位置:首页 > 建筑/环境 > 设计及方案

copyright@ 2008-2023 1wenmi网站版权所有

经营许可证编号:宁ICP备2022001189号-1

本站为文档C2C交易模式,即用户上传的文档直接被用户下载,本站只是中间服务平台,本站所有文档下载所得的收益归上传人(含作者)所有。第壹文秘仅提供信息存储空间,仅对用户上传内容的表现方式做保护处理,对上载内容本身不做任何修改或编辑。若文档所含内容侵犯了您的版权或隐私,请立即通知第壹文秘网,我们立即给予删除!