楼梯口、电梯井口防护检查标准.docx

上传人:p** 文档编号:408974 上传时间:2023-08-10 格式:DOCX 页数:3 大小:164.18KB
下载 相关 举报
楼梯口、电梯井口防护检查标准.docx_第1页
第1页 / 共3页
楼梯口、电梯井口防护检查标准.docx_第2页
第2页 / 共3页
楼梯口、电梯井口防护检查标准.docx_第3页
第3页 / 共3页
亲,该文档总共3页,全部预览完了,如果喜欢就下载吧!
资源描述

《楼梯口、电梯井口防护检查标准.docx》由会员分享,可在线阅读,更多相关《楼梯口、电梯井口防护检查标准.docx(3页珍藏版)》请在第壹文秘上搜索。

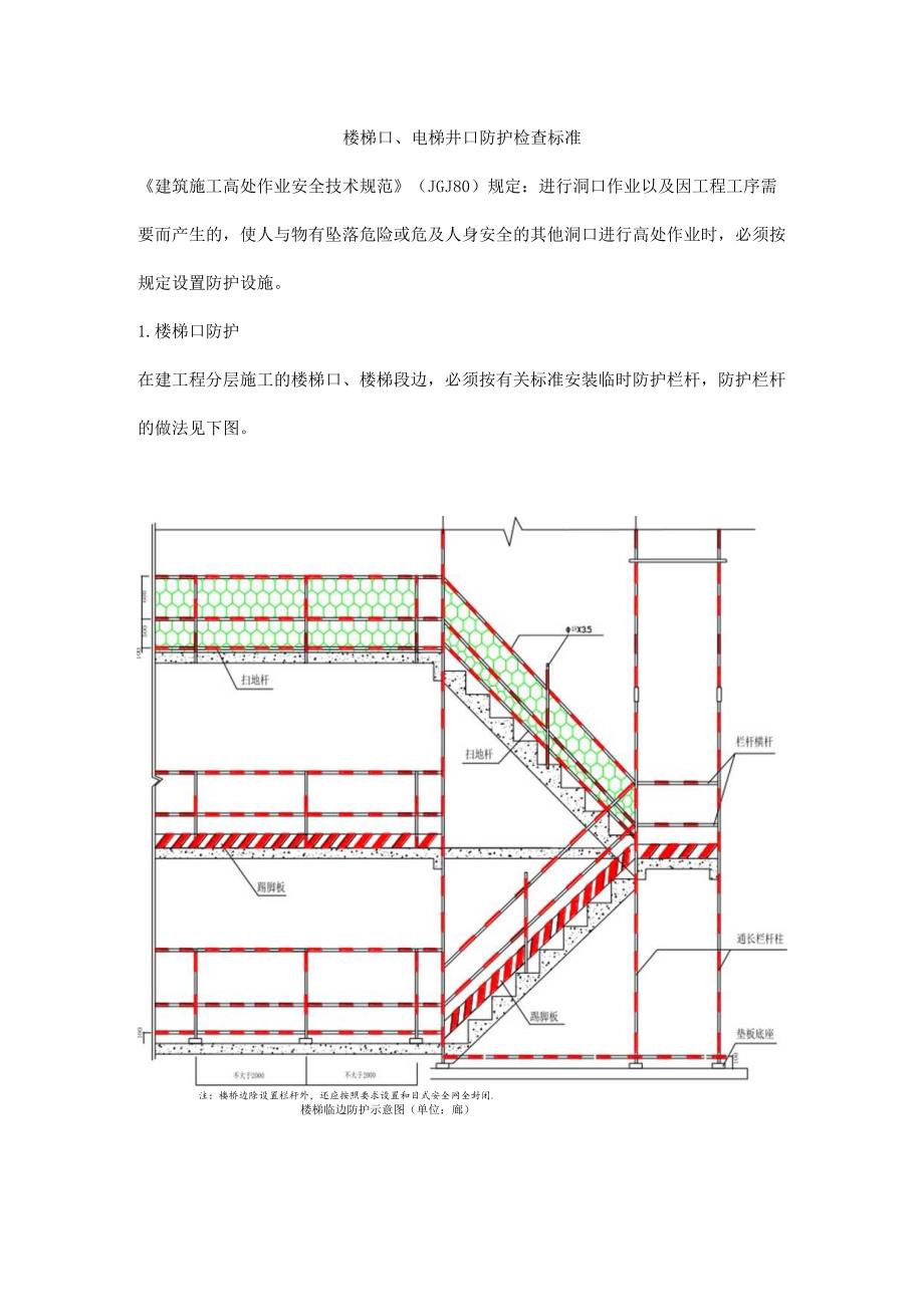
1、楼梯口、电梯井口防护检查标准建筑施工高处作业安全技术规范(JGJ80)规定:进行洞口作业以及因工程工序需要而产生的,使人与物有坠落危险或危及人身安全的其他洞口进行高处作业时,必须按规定设置防护设施。1.楼梯口防护在建工程分层施工的楼梯口、楼梯段边,必须按有关标准安装临时防护栏杆,防护栏杆的做法见下图。注:楼桥边除设置栏杆外,还应按照要求设置和目式安全网全封闭.楼梯临边防护示意图(单位:廊)2 .电梯井口的防护电梯井口除设置固定栅门(门栅网格的间距不应大于15Cm)做立面封闭防护外,还应在电梯井内每隔两层(不大于Iom)设置一道安全平网。平网内无杂物,网与井壁间隙不大于10cm。当防护高度超过一

2、个标准层时,不得采用脚手板等硬质材料做水平防护。3 .防护栏杆、防护栅门应符合规范规定,整齐牢固,与现场规范化管理相适应。防护设施应在施工组织设计中有设计、有图纸,并经验收形成工具化、定型化的防护用具,安全可靠、整齐美观,周转使用。C J 电梯井口、内防剪门*4.x.jM,k汇/xM*kfx.3/五、预留洞口、坑、井防护1.按照建筑施工高处作业安全技术规范规定,对孔洞口(水平孔洞短边尺寸大于2.5Cm的,竖向孔洞高度大于75Cm的)都要进行防护。2 .各类洞口的防护具体做法,应针对洞口大小及作业条件,在施工组织设计中分别进行设计规定,并在一个单位或在一个施工现场中形成定型化,不允许由作业人员随意找材料盖上的临时做法,防止由于不严密不牢固而存在事故隐患。3 .较小的洞口可临时砌死或用定型盖板盖严;较大的洞口可采用贯穿于混凝土板内的钢筋构成防护网,上面满铺竹笆或脚手板;边长在L5m以上的洞口,张挂安全平网并在四周设防护栏杆或按作业条件设计更合理的防护措施。(D边长1500-2000的洞注:所有栏杆刷红白漆相间均为300,栏杆的立面除用踢脚板外也可以用密目网围挡。(2)边长20007000的洞口洞口防护图(单位:mm)

展开阅读全文
相关资源
猜你喜欢
相关搜索

当前位置:首页 > 建筑/环境 > 建筑图集

copyright@ 2008-2023 1wenmi网站版权所有

经营许可证编号:宁ICP备2022001189号-1

本站为文档C2C交易模式,即用户上传的文档直接被用户下载,本站只是中间服务平台,本站所有文档下载所得的收益归上传人(含作者)所有。第壹文秘仅提供信息存储空间,仅对用户上传内容的表现方式做保护处理,对上载内容本身不做任何修改或编辑。若文档所含内容侵犯了您的版权或隐私,请立即通知第壹文秘网,我们立即给予删除!